HU
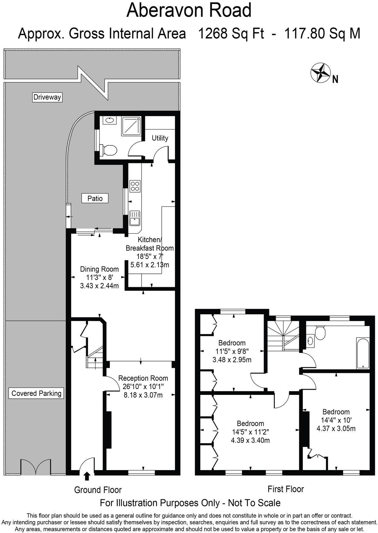
Aberavon Road, Bow, E3
By Huttons & Partners
£ 1,250,000
Reviews
3 out of 5 stars
Huttons & Partners says ..
A charming three-bedroom Georgian terraced house, recently refurbished, and in a prime East London location. It benefits from a large, private, SW-facing garden.
Property Oracle says ..
Therefore, we give this property 7 / 10. *Disclaimer: This is our option and does constitute a recommendation or financial advice. Do your own research. *
- Price
- 6
- Condition
- 8
- Location
- 8
- Land
- 7
- Bedrooms
- 3
- Bathrooms
- 2
- Sqft (est)
- 1,268.00
The heatmap indicates the level of crime in the area. The color of the heatmap indicates the crime severity and recency.
Metrics Year-on-Year
- Average area value
- 1,191,667.00 £Increased by 41.72 %
- Est sale value
- 1,061,316.00 £Decreased by 13.08 %
- Average area rental value
- 2,142.00 £/moDecreased by 20.75 %
- Est letting value
- 1,268.00 £/moDecreased by 66.67 %
- Est rental Yield
- 2.16 %Decreased by 44.04 %
- Crime Rate
- 6.00 %Unchanged by 0.00 %
from 840,833.00 £
from 1,221,084.00 £
from 2,703.00 £/mo
from 3,804.00 £/mo
from 3.86 %
from 6.00 %
Agent Activity
Huttons & Partners created the listing.
Nearby Schools
| Name | Type | Ofsted | Distance |
|---|---|---|---|
| Olga Children'S Centre | Children's Centre Linked Site | 0.51 KM | |
| Olga Primary School | Community School | Good | 0.51 KM |
| Solebay Primary - A Paradigm Academy | Free Schools | Good | 0.55 KM |
| Beatrice Tate School | Community Special School | Outstanding | 0.57 KM |
| Malmesbury Primary School | Community School | Good | 0.62 KM |
Images
Nearby Streets
| Name | Average Price | Average Sqft | Distance |
|---|---|---|---|
| Rhondda Grove | £ 0 | 0 | 0.00 KM |
| Maplin Street | £ 0 | 0 | 0.00 KM |
| Whitman Road | £ 0 | 0 | 0.00 KM |
| Nailsea Square | £ 0 | 0 | 0.00 KM |
| Malmesbury Road | £ 475,000 | 0 | 0.00 KM |
Nearby Transport
| Name | NLC | TLC | Distance |
|---|---|---|---|
| Limehouse | 7491 | LHS | 1.63 KM |
| Hackney Wick | 6978 | HKW | 2.20 KM |
| Homerton | 6979 | HMN | 2.44 KM |
| Cambridge Heath | 6962 | CBH | 2.55 KM |
| Bethnal Green Rail | 6961 | BET | 2.74 KM |
Nearby Listings
| Address | Price | Type | Score | Distance |
|---|---|---|---|---|
| Aberavon Road, Bow, E3 | £ 1,250,000 | BUY | 7 / 10 | 0.00 KM |
| Grove Road, London, E3 | £ 700,000 | BUY | Unknown | 0.06 KM |
| Grove Road, London, E3 | £ 775,000 | BUY | 6 / 10 | 0.06 KM |
| Eaton Terrace, Aberavon Road, Bow, London, E3 | £ 1,000,000 | BUY | 6 / 10 | 0.09 KM |
| Rhondda Grove, Mile End London E3 | £ 635,000 | BUY | 7 / 10 | 0.10 KM |
Nearby Properties
| Address | Price | Distance |
|---|---|---|
| 3 Aberavon Road | £ 685,000 | 0.02 KM |
| 12 Aberavon Road | £ 950,000 | 0.02 KM |
| 41 Aberavon Road | £ 910,000 | 0.02 KM |
| 11 Aberavon Road | £ 820,000 | 0.02 KM |
| 32 Aberavon Road | £ 1,375,000 | 0.02 KM |