AB
Burnt Common Lane, Ripley, GU236HD
By Abri Group Limited
£ 380,000
Reviews
3 out of 5 stars
Abri Group Limited says ..
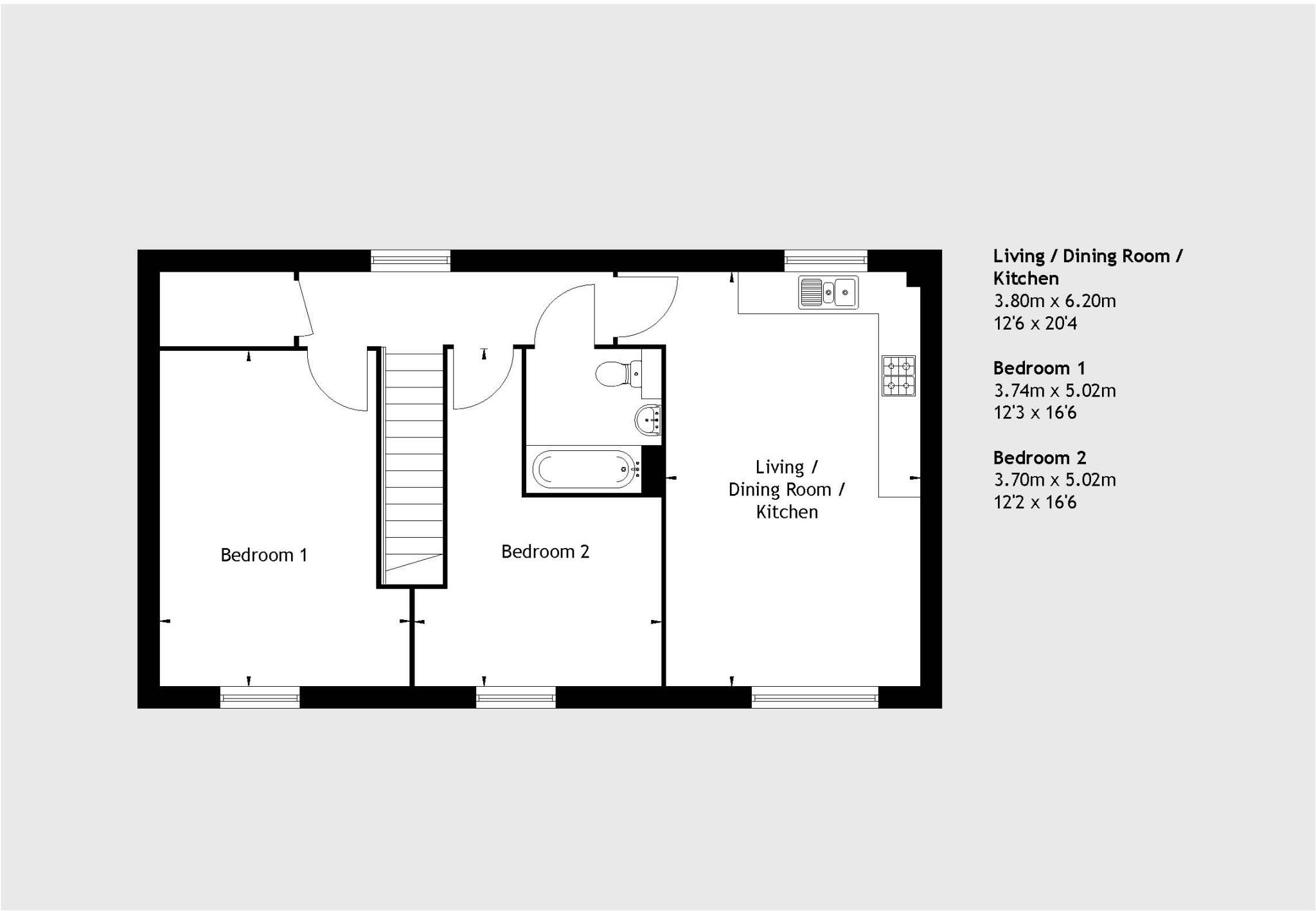
*** Shared Ownership *** Featuring an open-plan living / dining room. The kitchen is fitted with an oven, hob and washing machine. On this floor, you'll also find a WC and storage cupboard.
Property Oracle says ..
Therefore, we give this property 7 / 10. *Disclaimer: This is our option and does constitute a recommendation or financial advice. Do your own research. *
- Price
- 8
- Condition
- 9
- Location
- 7
- Land
- 5
- Bedrooms
- 2
- Bathrooms
- 0
- Sqft (est)
- 655.52
The heatmap indicates the level of crime in the area. The color of the heatmap indicates the crime severity and recency.
Metrics Year-on-Year
- Average area value
- 757,475.00 £Decreased by 11.96 %
- Est sale value
- 639,787.52 £Increased by 66.84 %
- Average area rental value
- 2,675.00 £/moIncreased by 11.74 %
- Est letting value
- 1,966.56 £/moIncreased by 200.00 %
- Est rental Yield
- 4.24 %Increased by 26.95 %
- Crime Rate
- 101.00 %Unchanged by 0.00 %
from 860,390.00 £
from 383,479.20 £
from 2,394.00 £/mo
from 655.52 £/mo
from 3.34 %
from 101.00 %
Agent Activity
Abri Group Limited created the listing.
Nearby Schools
| Name | Type | Ofsted | Distance |
|---|---|---|---|
| Send Cofe Primary School | Voluntary Aided School | Good | 1.57 KM |
| Ripley Court School | Other Independent School | 2.73 KM | |
| Clandon Cofe Aided Primary School | Voluntary Aided School | Requires improvement | 3.06 KM |
| Hoe Bridge School | Other Independent School | 4.07 KM | |
| Merrow Cofe Controlled Infant School | Voluntary Controlled School | Outstanding | 4.25 KM |
Images
Nearby Streets
| Name | Average Price | Average Sqft | Distance |
|---|---|---|---|
| Oldlands Drive | £ 1,450,000 | 0 | 0.00 KM |
| Oldlands Drive | £ 975,000 | 0 | 0.00 KM |
| Chestnut Close | £ 0 | 0 | 0.00 KM |
| Portsmouth Road | £ 0 | 0 | 0.00 KM |
| Burnt Common Cottages | £ 0 | 0 | 0.00 KM |
Nearby Transport
| Name | NLC | TLC | Distance |
|---|---|---|---|
| Clandon | 5555 | CLA | 2.27 KM |
| West Byfleet | 5684 | WBY | 6.27 KM |
| Woking | 5685 | WOK | 6.52 KM |
| London Road (Guildford) | 5632 | LRD | 7.70 KM |
| Chilworth | 5296 | CHL | 7.72 KM |
Nearby Listings
| Address | Price | Type | Score | Distance |
|---|---|---|---|---|
| Burnt Common Lane, Ripley, GU236HD | £ 126,875 | BUY | 6 / 10 | 0.00 KM |
| Burnt Common Lane, Ripley, GU236HD | £ 380,000 | BUY | 6 / 10 | 0.00 KM |
| Burnt Common Lane, Ripley, GU236HD | £ 208,250 | BUY | 8 / 10 | 0.00 KM |
| Burnt Common Lane, Ripley, GU236HD | £ 363,500 | BUY | 6 / 10 | 0.00 KM |
| Burnt Common Lane, Ripley, GU236HD | £ 210,000 | BUY | 7 / 10 | 0.00 KM |
Nearby Properties
| Address | Price | Distance |
|---|---|---|
| The Birches | £ 185,000 | 0.00 KM |
| Birchwood | £ 760,000 | 0.00 KM |
| The Florrie | £ 499,950 | 0.00 KM |
| Nut Tree House | £ 345,000 | 0.00 KM |
| Brambles | £ 240,000 | 0.00 KM |