QU
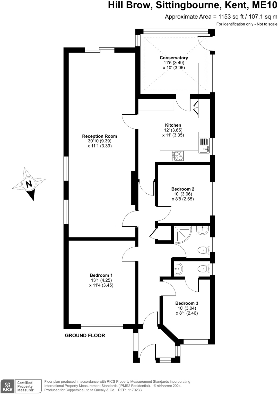
Hill Brow, Sittingbourne, Kent, ME10
By Quealy & Co
£ 500,000
Reviews
3 out of 5 stars
Quealy & Co says ..
RARELY AVAILABLE THREE BEDROOM DETACHED BUNGALOW | AMPLE DRIVEWAY PARKING | GARAGE | SOUTH FACING GARDEN | CUL-DE-SAC LOCATION | POPULAR SOUTH SITTINGBOURNE!
Property Oracle says ..
Therefore, we give this property 6 / 10. *Disclaimer: This is our option and does constitute a recommendation or financial advice. Do your own research. *
- Price
- 5
- Condition
- 7
- Location
- 7
- Land
- 8
- Bedrooms
- 3
- Bathrooms
- 1
- Sqft (est)
- 905.37
The heatmap indicates the level of crime in the area. The color of the heatmap indicates the crime severity and recency.
Metrics Year-on-Year
- Average area value
- 294,000.00 £Decreased by 0.87 %
- Est sale value
- 309,636.54 £Increased by 15.54 %
- Average area rental value
- 1,000.00 £/moDecreased by 19.35 %
- Est letting value
- 905.37 £/moUnchanged by 0.00 %
- Est rental Yield
- 4.08 %Decreased by 18.73 %
- Crime Rate
- 3.00 %Unchanged by 0.00 %
from 296,578.00 £
from 267,989.52 £
from 1,240.00 £/mo
from 905.37 £/mo
from 5.02 %
from 3.00 %
Agent Activity
Quealy & Co marked this listing as sold.
Quealy & Co created the listing.
Nearby Schools
| Name | Type | Ofsted | Distance |
|---|---|---|---|
| Minterne Junior School | Academy Converter | Good | 0.42 KM |
| Westlands Primary School | Academy Converter | Good | 0.44 KM |
| St Peter'S Catholic Primary School | Academy Converter | 0.50 KM | |
| The Oaks Infant School | Academy Converter | 0.59 KM | |
| Woodgrove Children'S Centre | Children's Centre | 0.90 KM |
Images
Nearby Streets
| Name | Average Price | Average Sqft | Distance |
|---|---|---|---|
| Graylings Court | £ 0 | 0 | 0.00 KM |
| Chaucer Road | £ 0 | 0 | 0.00 KM |
| London Road | £ 0 | 0 | 0.00 KM |
| Valenciennes Road | £ 375,000 | 0 | 0.00 KM |
| London Road | £ 243,000 | 0 | 0.00 KM |
Nearby Transport
| Name | NLC | TLC | Distance |
|---|---|---|---|
| Sittingbourne | 5187 | SIT | 1.86 KM |
| Kemsley | 5205 | KML | 3.59 KM |
| Newington | 5175 | NGT | 6.07 KM |
| Swale | 5249 | SWL | 6.84 KM |
| Queenborough | 5176 | QBR | 9.65 KM |
Nearby Listings
| Address | Price | Type | Score | Distance |
|---|---|---|---|---|
| Hill Brow, Sittingbourne, Kent, ME10 | £ 500,000 | BUY | 6 / 10 | 0.00 KM |
| College Road, Sittingbourne, Kent, ME10 | £ 450,000 | BUY | 6 / 10 | 0.05 KM |
| Hill Brow, SITTINGBOURNE, ME10 | £ 425,000 | BUY | Unknown | 0.06 KM |
| Kent Avenue, Sittingbourne | £ 550,000 | BUY | 7 / 10 | 0.11 KM |
| Minterne Avenue, Sittingbourne, Kent | £ 310,000 | BUY | Unknown | 0.12 KM |
Nearby Properties
| Address | Price | Distance |
|---|---|---|
| 93 College Road | £ 295,000 | 0.05 KM |
| 91 College Road | £ 337,500 | 0.05 KM |
| 95 College Road | £ 487,500 | 0.05 KM |
| 97 College Road | £ 275,000 | 0.05 KM |
| 93 Kent Avenue | £ 188,500 | 0.10 KM |