Milner Street, Acomb, York
By Ashtons Estate Agents
£ 249,950
Reviews
3 out of 5 stars
Ashtons Estate Agents says ..
Situated to the west of York in the popular suburb of Acomb, this charming property lies just a short walk from the wide range of amenities on York Road and Front Street. With a bus stop at the end of the road, the home offers convenient access to York city centre, the train station, and beyond v...
Property Oracle says ..
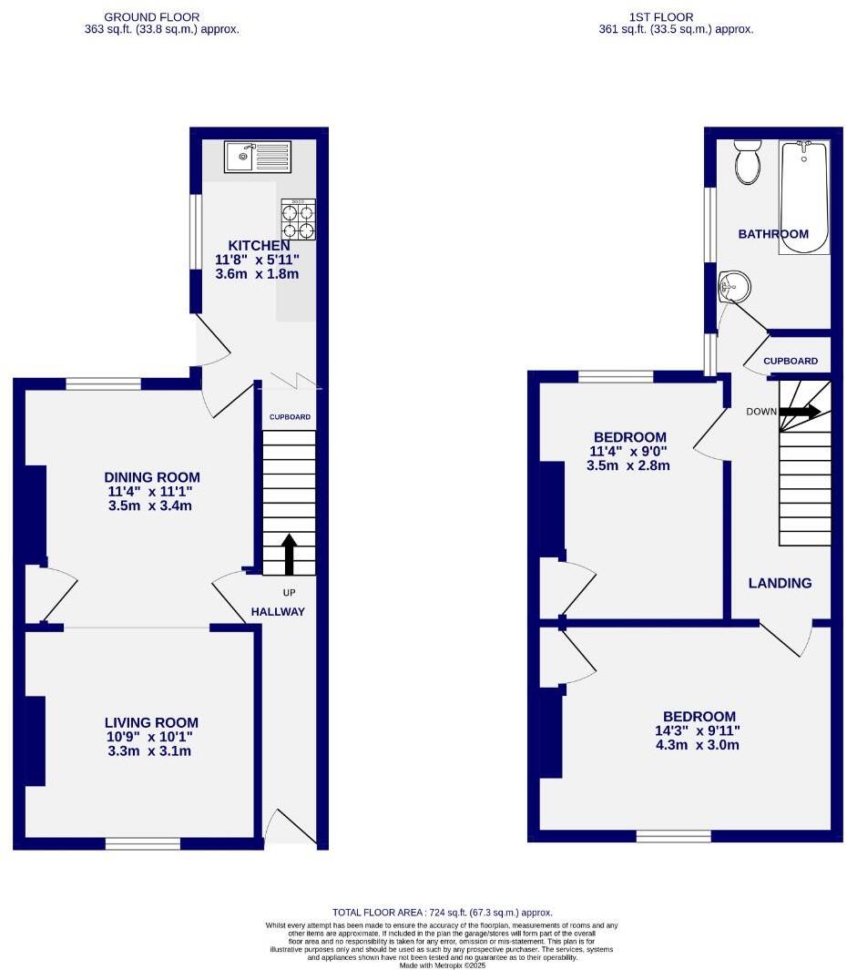
This is a two-bedroom terraced property located in Acomb, York. The property is in reasonable condition but would benefit from some modernisation. It features a rear garden. The property is located close to local amenities and schools, and is within easy reach of York city centre. The listing price seems reasonable for the area and the property’s condition.
Therefore, we give this property 6 / 10. *Disclaimer: This is our option and does constitute a recommendation or financial advice. Do your own research. *
- Price
- 7
- Condition
- 6
- Location
- 7
- Land
- 5
- Bedrooms
- 2
- Bathrooms
- 1
- Sqft (est)
- 724.00
The heatmap indicates the level of crime in the area. The color of the heatmap indicates the crime severity and recency.
Metrics Year-on-Year
- Average area value
- 282,914.00 £Increased by 0.69 %
- Est sale value
- 249,780.00 £Increased by 15.77 %
- Average area rental value
- 1,047.00 £/moDecreased by 2.70 %
- Est letting value
- 724.00 £/moUnchanged by 0.00 %
- Est rental Yield
- 4.44 %Decreased by 3.48 %
- Crime Rate
- 8.00 %Unchanged by 0.00 %
Agent Activity
Ashtons Estate Agents created the listing.
Nearby Schools
| Name | Type | Ofsted | Distance |
|---|---|---|---|
| Hob Moor Children'S Centre | Children's Centre | 0.52 KM | |
| Hob Moor Oaks Academy | Academy Special Converter | 0.53 KM | |
| Hob Moor Community Primary Academy | Academy Converter | 0.53 KM | |
| Acomb Primary School | Academy Converter | 0.73 KM | |
| Poppleton Road Primary School | Community School | Good | 1.11 KM |
Images
Nearby Streets
| Name | Average Price | Average Sqft | Distance |
|---|---|---|---|
| School Street | £ 0 | 0 | 0.00 KM |
| Fairfax Close | £ 120,000 | 0 | 0.00 KM |
| Hamilton Drive West | £ 0 | 0 | 0.00 KM |
| Moss Bank Court | £ 368,000 | 0 | 0.00 KM |
| Blossom Court | £ 323,333 | 0 | 0.00 KM |
Nearby Transport
| Name | NLC | TLC | Distance |
|---|---|---|---|
| York | 8263 | YRK | 3.18 KM |
| Poppleton | 8254 | POP | 3.79 KM |
Nearby Listings
| Address | Price | Type | Score | Distance |
|---|---|---|---|---|
| Milner Street, Acomb, York | £ 249,950 | BUY | 6 / 10 | 0.00 KM |
| Milner Street, Acomb, York, YO24 | £ 280,000 | BUY | 6 / 10 | 0.03 KM |
| School Street, Acomb | £ 200,000 | BUY | Unknown | 0.06 KM |
| Milner Street, York | £ 280,000 | BUY | Unknown | 0.07 KM |
| Gladstone Street, Acomb, YO24 | £ 240,000 | BUY | 6 / 10 | 0.08 KM |
Nearby Properties
| Address | Price | Distance |
|---|---|---|
| 2 School Street | £ 156,000 | 0.05 KM |
| 6b School Street | £ 186,000 | 0.05 KM |
| 1a School Street | £ 124,500 | 0.05 KM |
| 6a School Street | £ 82,500 | 0.05 KM |
| 7 Howe Street | £ 158,350 | 0.08 KM |