Sears Property says ..
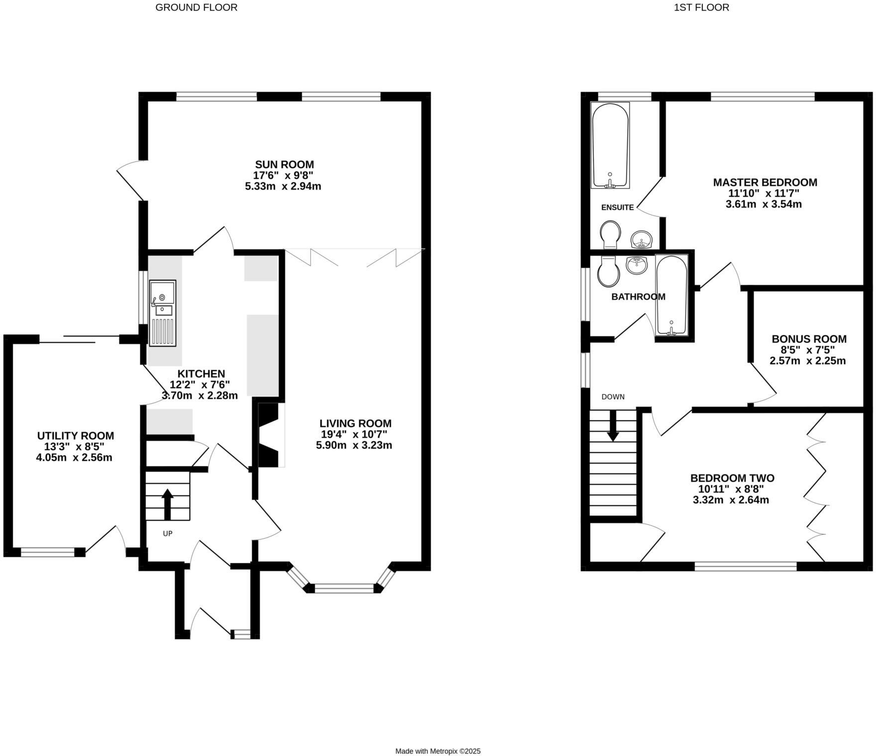
** NO ONWARD CHAIN ** Located a short distance to the local shops and schools, this two bedroom end of terrace was extended by the owner offering fantastic sized rooms and two bathrooms.
Property Oracle says ..
The property is located in Old Bracknell, Bracknell Forest, Berkshire. The area benefits from relatively close proximity to Bracknell train station (1.14 KM), providing convenient access to London and other areas. Several primary schools are within a short distance, including St Michael’s Easthampstead Church of England Voluntary Aided Primary School and Fox Hill Primary School, both rated ‘Good’ by Ofsted. The presence of these amenities contributes to a positive location score.
Based on the provided images, the property appears to be in generally good condition, though some minor cosmetic updates might enhance its presentation. The kitchen and bathrooms show signs of age, with some areas needing attention. However, the overall structure seems sound, and the property appears well-maintained.
The property includes a garden, which adds to its appeal. The garden is of a reasonable size and includes a patio area, a shed, and a greenhouse. This is a positive feature for potential buyers, particularly families.
The list price of £375,000 is slightly below the average price of £378,333 for the area. Considering the property’s condition and the inclusion of a garden, the price appears reasonable, especially when compared to similar properties in the area. Nearby properties on Rectory Lane are listed at higher prices, suggesting that the list price could be considered competitive. However, the lack of square footage data prevents a precise price-per-square-foot comparison.
Therefore, we give this property 7 / 10. *Disclaimer: This is our option and does constitute a recommendation or financial advice. Do your own research. *
- Price
- 7
- Condition
- 7
- Location
- 8
- Land
- 7
- Bedrooms
- 2
- Bathrooms
- 2
The heatmap indicates the level of crime in the area. The color of the heatmap indicates the crime severity and recency.
Metrics Year-on-Year
- Average area value
- 260,000.00 £Decreased by 33.37 %
- Average area rental value
- 1,598.00 £/moDecreased by 1.84 %
- Est rental Yield
- 7.38 %Increased by 47.31 %
- Crime Rate
- 7.00 %Unchanged by 0.00 %
Agent Activity
Sears Property created the listing.
Nearby Schools
| Name | Type | Ofsted | Distance |
|---|---|---|---|
| Rowans And Sycamores Children'S Centre | Children's Centre | 0.46 KM | |
| St Michael'S Easthampstead Church Of England Voluntary Aided Primary School | Voluntary Aided School | Good | 0.47 KM |
| Fox Hill Primary School | Community School | Good | 0.50 KM |
| Wildridings Primary School | Community School | Requires improvement | 0.64 KM |
| The Brakenhale School | Academy Sponsor Led | Good | 0.71 KM |
Images
Nearby Streets
| Name | Average Price | Average Sqft | Distance |
|---|---|---|---|
| Rainforest Walk | £ 0 | 0 | 0.00 KM |
| Milton Close | £ 0 | 0 | 0.00 KM |
| Bagshot Road | £ 296,000 | 0 | 0.00 KM |
| Bagshot Road | £ 0 | 0 | 0.00 KM |
| Crowthorne Road North | £ 0 | 0 | 0.00 KM |
Nearby Transport
| Name | NLC | TLC | Distance |
|---|---|---|---|
| Bracknell | 5693 | BCE | 1.14 KM |
| Martins Heron | 5692 | MAO | 3.55 KM |
| Camberley | 5682 | CAM | 7.64 KM |
| Crowthorne | 5628 | CRN | 8.10 KM |
| Sandhurst (Berks) | 5646 | SND | 8.29 KM |
Nearby Listings
| Address | Price | Type | Score | Distance |
|---|---|---|---|---|
| Rectory Lane, Bracknell | £ 225,000 | BUY | 6 / 10 | 0.00 KM |
| Rectory Lane, Bracknell | £ 375,000 | BUY | 7 / 10 | 0.00 KM |
| Rectory Lane, Bracknell, Berkshire, RG12 | £ 375,000 | BUY | 6 / 10 | 0.00 KM |
| Lancaster House, South Lynn Crescent, Bracknell, Berkshire, RG12 | £ 155,000 | BUY | 5 / 10 | 0.15 KM |
| Crowthorne Road, Bracknell | £ 475,000 | BUY | 5 / 10 | 0.15 KM |
Nearby Properties
| Address | Price | Distance |
|---|---|---|
| 120 Rectory Lane | £ 180,000 | 0.01 KM |
| 31 Rectory Lane | £ 207,500 | 0.04 KM |
| 29 Rectory Lane | £ 209,000 | 0.04 KM |
| 22 Rectory Row | £ 116,500 | 0.08 KM |
| 15 Rectory Row | £ 110,000 | 0.08 KM |