Barkers says ..
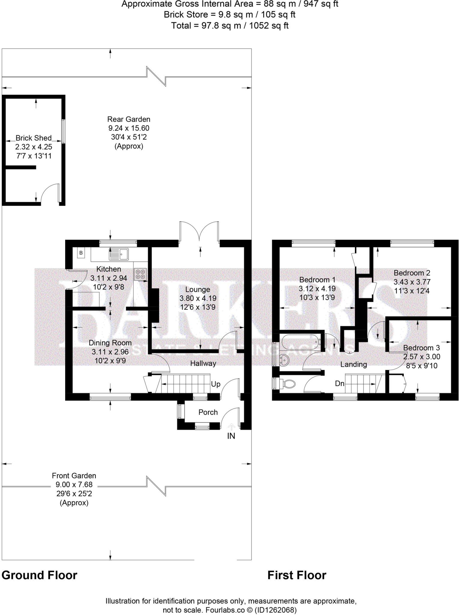
A three-bedroom semi-detached house IN NEED OF MODERNISATION, on a spacious plot & with POTENTIAL TO EXTEND STPP. Ideally positioned close to local shops, bus stop and conveniently accessible of local schools, parks, Elstree & Borehamwood station and high street. Spacious garden with brick built ...
Property Oracle says ..
This semi-detached property on Hartforde Road, Borehamwood, presents a good opportunity for buyers looking for a home with potential. The location is convenient, with nearby schools and transportation links. The property itself requires modernisation, particularly in the kitchen and bathroom. The garden offers a good amount of outdoor space. While the asking price is reasonable, the condition of the property should be taken into consideration.
Therefore, we give this property 6 / 10. *Disclaimer: This is our option and does constitute a recommendation or financial advice. Do your own research. *
- Price
- 6
- Condition
- 5
- Location
- 7
- Land
- 7
- Bedrooms
- 3
- Bathrooms
- 1
The heatmap indicates the level of crime in the area. The color of the heatmap indicates the crime severity and recency.
Metrics Year-on-Year
- Average area value
- 389,998.00 £Decreased by 21.89 %
- Average area rental value
- 1,617.00 £/moDecreased by 8.80 %
- Est rental Yield
- 4.98 %Increased by 16.90 %
- Crime Rate
- 1.00 %Unchanged by 0.00 %
Agent Activity
Barkers created the listing.
Nearby Schools
| Name | Type | Ofsted | Distance |
|---|---|---|---|
| Cowley Hill School | Community School | Good | 0.25 KM |
| Woodlands Primary School | Community School | Good | 0.26 KM |
| St Teresa Catholic Primary School | Voluntary Aided School | Good | 0.49 KM |
| Hertswood Academy | Academy Converter | Requires improvement | 0.57 KM |
| H5 Borehamwood Link Family Centre | Children's Centre | 0.76 KM |
Images
Nearby Streets
| Name | Average Price | Average Sqft | Distance |
|---|---|---|---|
| Northfield Road | £ 0 | 0 | 0.00 KM |
| Meadow Road | £ 0 | 0 | 0.00 KM |
| Baker Court | £ 0 | 0 | 0.00 KM |
| Reston Close | £ 397,475 | 0 | 0.00 KM |
| Gregson Close | £ 0 | 0 | 0.00 KM |
Nearby Transport
| Name | NLC | TLC | Distance |
|---|---|---|---|
| Elstree And Borehamwood | 1542 | ELS | 1.62 KM |
| Radlett | 1546 | RDT | 5.60 KM |
| Mill Hill Broadway | 1527 | MIL | 6.22 KM |
| Potters Bar | 6022 | PBR | 9.40 KM |
| Brookmans Park | 6074 | BPK | 9.67 KM |
Nearby Listings
| Address | Price | Type | Score | Distance |
|---|---|---|---|---|
| Hartforde Road, Borehamwood, WD6 | £ 550,000 | BUY | 6 / 10 | 0.00 KM |
| Brodewater Road, Borehamwood, Hertfordshire, WD6 | £ 565,000 | BUY | 6 / 10 | 0.17 KM |
| Brodewater Road, Borehamwood | £ 595,000 | BUY | 7 / 10 | 0.18 KM |
| Brodewater Road, Borehamwood, Hertfordshire, WD6 | £ 425,000 | BUY | 7 / 10 | 0.19 KM |
| Northfield Road, Borehamwood | £ 500,000 | BUY | 5 / 10 | 0.20 KM |
Nearby Properties
| Address | Price | Distance |
|---|---|---|
| 32 Hartforde Road | £ 350,500 | 0.01 KM |
| 34 Hartforde Road | £ 550,000 | 0.01 KM |
| 74 Hartforde Road | £ 472,000 | 0.01 KM |
| 28 Hartforde Road | £ 249,950 | 0.01 KM |
| 62 Hartforde Road | £ 275,000 | 0.01 KM |