MA
Heather Brow, Prenton, Wirral, Merseyside, CH43
By Market St Homes
£ 385,000
Reviews
3 out of 5 stars
Market St Homes says ..
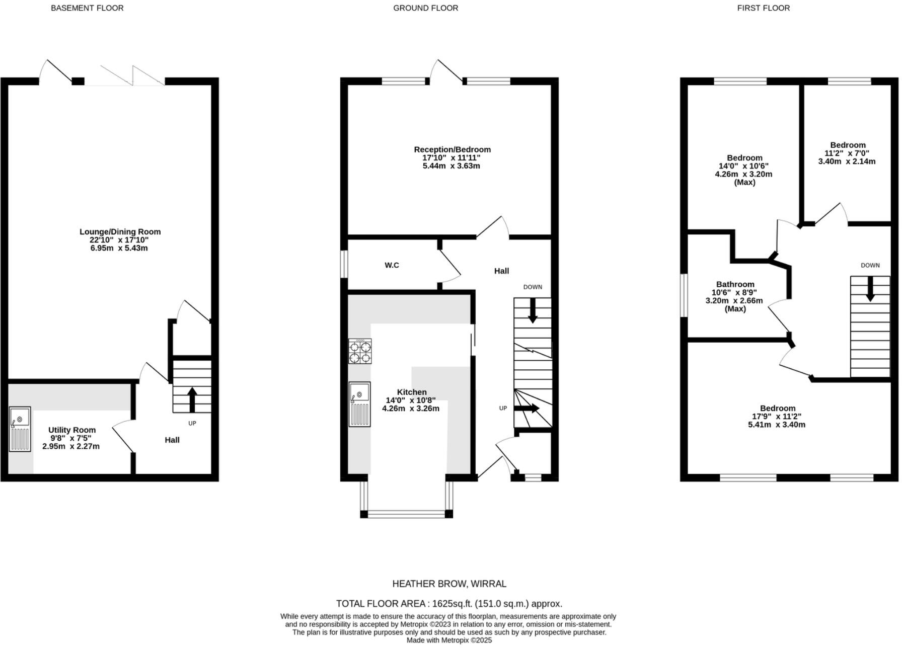
Superb home that could be used in a variety of ways. The property has a very large lounge to the basement that would be perfect as a teenage suite or dependent relative living area.The property is finished to a very high standard and has a lovely landscaped rear garden.
Property Oracle says ..
Therefore, we give this property 7 / 10. *Disclaimer: This is our option and does constitute a recommendation or financial advice. Do your own research. *
- Price
- 6
- Condition
- 8
- Location
- 8
- Land
- 7
- Bedrooms
- 4
- Bathrooms
- 1
- Sqft (est)
- 1,625.35
The heatmap indicates the level of crime in the area. The color of the heatmap indicates the crime severity and recency.
Metrics Year-on-Year
- Average area value
- 326,923.00 £Increased by 8.27 %
- Est sale value
- 541,241.55 £Increased by 23.79 %
- Average area rental value
- 756.00 £/moIncreased by 3.42 %
- Est letting value
- 0.00 £/mo
- Est rental Yield
- 2.77 %Decreased by 4.81 %
- Crime Rate
- 12.00 %Unchanged by 0.00 %
from 301,961.00 £
from 437,219.15 £
from 731.00 £/mo
from 0.00 £/mo
from 2.91 %
from 12.00 %
Agent Activity
Market St Homes created the listing.
Nearby Schools
| Name | Type | Ofsted | Distance |
|---|---|---|---|
| Wirral Hospitals' School | Community Special School | Outstanding | 0.37 KM |
| Birkenhead Sixth Form College | Academy 16-19 Converter | Outstanding | 0.39 KM |
| Bidston Avenue Primary School | Community School | Good | 0.55 KM |
| Co-Op Academy Portland | Academy Sponsor Led | 0.85 KM | |
| Bidston And St James Children'S Centre | Children's Centre Linked Site | 0.90 KM |
Images
Nearby Streets
| Name | Average Price | Average Sqft | Distance |
|---|---|---|---|
| Broom Hill | £ 0 | 0 | 0.00 KM |
| St. Aidans Court | £ 0 | 0 | 0.00 KM |
| Saint Aidan's Terrace | £ 50,000 | 0 | 0.00 KM |
| Lansdowne Road | £ 80,000 | 0 | 0.00 KM |
| Gilbrook Square | £ 0 | 0 | 0.00 KM |
Nearby Transport
| Name | NLC | TLC | Distance |
|---|---|---|---|
| Birkenhead North | 2145 | BKN | 1.22 KM |
| Birkenhead Park | 2220 | BKP | 2.14 KM |
| Bidston | 2136 | BID | 2.86 KM |
| Upton (Merseyside) | 2141 | UPT | 2.99 KM |
| Wallasey Village | 2265 | WLV | 3.49 KM |
Nearby Listings
| Address | Price | Type | Score | Distance |
|---|---|---|---|---|
| Heather Brow, Prenton, Wirral, Merseyside, CH43 | £ 385,000 | BUY | 7 / 10 | 0.00 KM |
| Lingdale Road, Claughton, CH43 | £ 350,000 | BUY | 7 / 10 | 0.05 KM |
| Lingdale Road, Claughton Village | £ 189,950 | BUY | 6 / 10 | 0.07 KM |
| Lingdale Road, Claughton Village, Merseyside, CH43 | £ 190,000 | BUY | 7 / 10 | 0.08 KM |
| Heather Brow, Prenton, Merseyside, CH43 | £ 190,000 | BUY | 7 / 10 | 0.08 KM |
Nearby Properties
| Address | Price | Distance |
|---|---|---|
| 37 Heather Brow | £ 207,000 | 0.00 KM |
| 39 Heather Brow | £ 92,500 | 0.00 KM |
| 31 Heather Brow | £ 214,950 | 0.00 KM |
| 35 Heather Brow | £ 177,500 | 0.00 KM |
| 11 Heather Brow | £ 120,000 | 0.00 KM |