Mimms Place, Potters Bar, En6
By Barnard Marcus
£ 485,000
Reviews
4 out of 5 stars
Barnard Marcus says ..
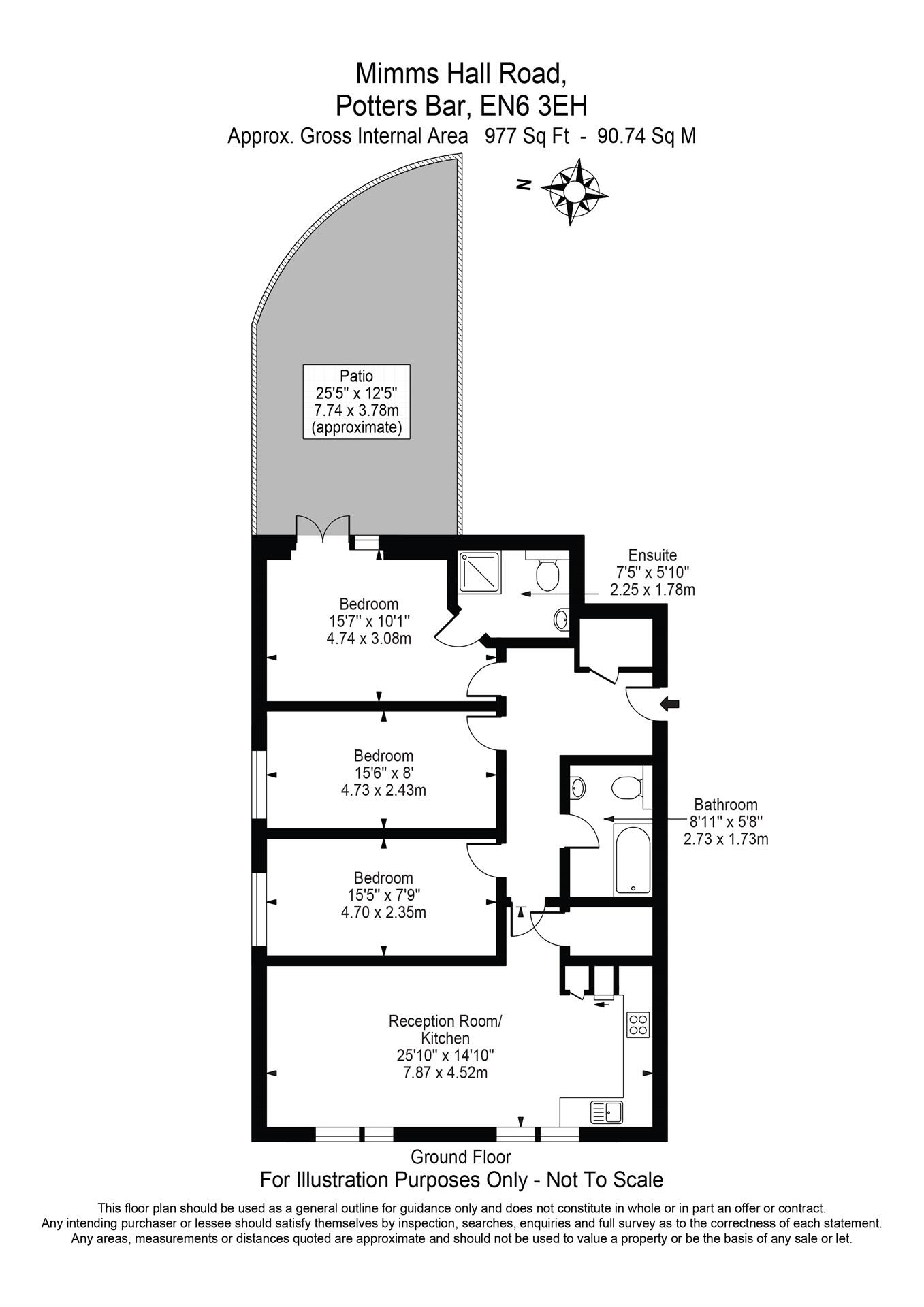
45% RESERVED & READY TO MOVE IN. Set within a boutique luxury development, is this gorgeous 3 bedroom 2 bathroom 977 sqft apartment, with a private terrace & a parking space. Benefiting a share of freehold, 10 year build warranty & finished to a high specification throughout.
Property Oracle says ..
The property is a modern 3-bedroom, 2-bathroom apartment in Potters Bar, Hertfordshire. It is in excellent condition with high-quality finishes and benefits from a patio area. The location is convenient, with nearby transportation and schools. The list price seems reasonable compared to other properties in the area, although more data on comparable properties would be helpful for a more definitive conclusion.
Therefore, we give this property 8 / 10. *Disclaimer: This is our option and does constitute a recommendation or financial advice. Do your own research. *
- Price
- 8
- Condition
- 10
- Location
- 8
- Land
- 0
- Bedrooms
- 3
- Bathrooms
- 2
- Sqft (est)
- 977.00
The heatmap indicates the level of crime in the area. The color of the heatmap indicates the crime severity and recency.
Metrics Year-on-Year
- Average area value
- 503,980.00 £Decreased by 0.52 %
- Est sale value
- 528,557.00 £Increased by 3.24 %
- Average area rental value
- 2,848.00 £/moIncreased by 56.83 %
- Est letting value
- 2,931.00 £/moIncreased by 200.00 %
- Est rental Yield
- 6.78 %Increased by 57.67 %
- Crime Rate
- 5.00 %Unchanged by 0.00 %
Agent Activity
Barnard Marcus created the listing.
Nearby Schools
| Name | Type | Ofsted | Distance |
|---|---|---|---|
| Dame Alice Owen'S School | Academy Converter | 0.53 KM | |
| H2 Furzefield Family Centre | Children's Centre | 0.67 KM | |
| The Wroxham School | Academy Converter | Outstanding | 0.78 KM |
| Cranborne Primary School | Foundation School | Good | 1.12 KM |
| Pope Paul Catholic Primary School | Voluntary Aided School | Good | 1.21 KM |
Images
Nearby Streets
| Name | Average Price | Average Sqft | Distance |
|---|---|---|---|
| Archers Close | £ 0 | 0 | 0.00 KM |
| Suffolk Road | £ 660,000 | 0 | 0.00 KM |
| Sawyers Lane | £ 0 | 0 | 0.00 KM |
| Elmfield Close | £ 849,950 | 0 | 0.00 KM |
| Mutton Lane | £ 0 | 0 | 0.00 KM |
Nearby Transport
| Name | NLC | TLC | Distance |
|---|---|---|---|
| Potters Bar | 6022 | PBR | 1.73 KM |
| Brookmans Park | 6074 | BPK | 2.88 KM |
| Welham Green | 6073 | WMG | 4.57 KM |
| Hadley Wood | 6075 | HDW | 4.63 KM |
| New Barnet | 6018 | NBA | 6.50 KM |
Nearby Listings
| Address | Price | Type | Score | Distance |
|---|---|---|---|---|
| Mimms Place, Potters Bar, En6 | £ 425,000 | BUY | 7 / 10 | 0.00 KM |
| Mimms Place, Potters Bar, En6 | £ 485,000 | BUY | 8 / 10 | 0.00 KM |
| Mimms Place, Potters Bar, En6 | £ 400,000 | BUY | 5 / 10 | 0.00 KM |
| Mimms Hall Road, Potters Bar, EN6 | £ 425,000 | BUY | 6 / 10 | 0.01 KM |
| Mimms Hall Road, Potters Bar, EN6 | £ 475,000 | BUY | 8 / 10 | 0.02 KM |
Nearby Properties
| Address | Price | Distance |
|---|---|---|
| 97 Mimms Hall Road | £ 285,000 | 0.09 KM |
| 108 Mimms Hall Road | £ 255,000 | 0.09 KM |
| 118 Mimms Hall Road | £ 470,000 | 0.09 KM |
| 107 Mimms Hall Road | £ 495,000 | 0.09 KM |
| 93 Mimms Hall Road | £ 820,000 | 0.09 KM |