Lyddicleave, Bickington, Barnstaple, Devon, EX31
By Chequers
£ 550,000
Reviews
4 out of 5 stars
Chequers says ..
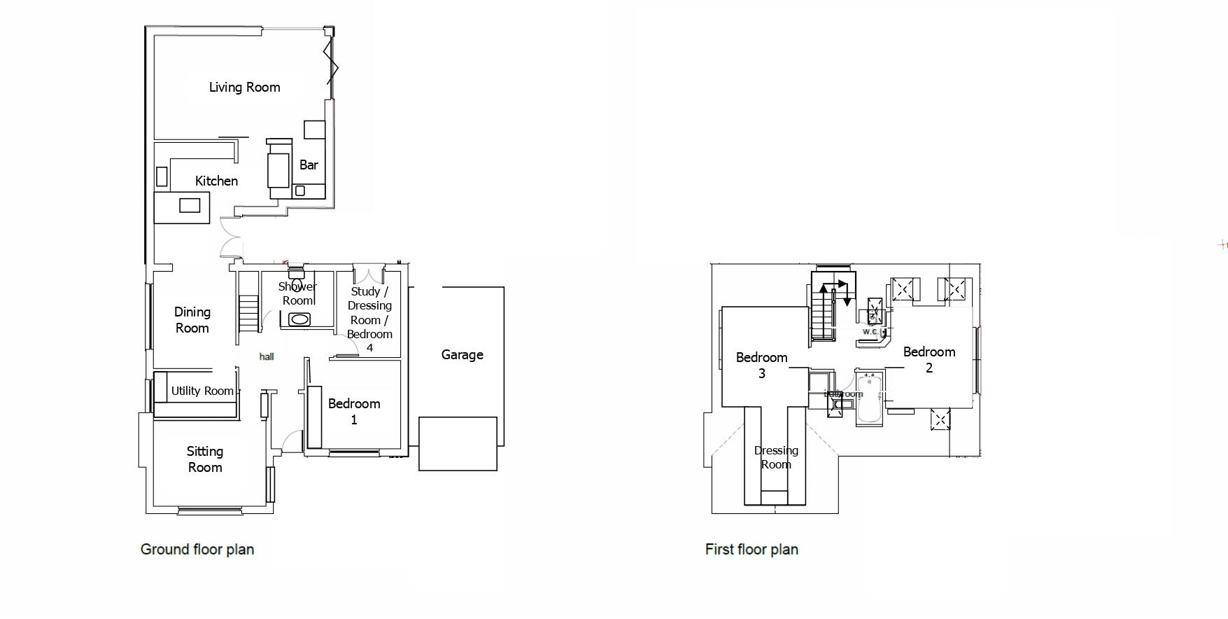
A fabulous detached chalet bungalow residence offering a stylish and modern interior throughout. The property benefits from a brick-paved driveway providing ample parking space. Inside, the light and attractive accommodation comprises 3 to 5 bedrooms, offering flexibility and space to suit a wide...
Property Oracle says ..
This property is a beautifully presented bungalow located in the desirable Bickington area of Barnstaple, North Devon. The property boasts a modern, stylish interior with high-quality finishes throughout. The open-plan kitchen/dining area is particularly impressive, featuring modern appliances and ample space for entertaining. The garden is a key feature, with a large paved patio area perfect for outdoor dining and relaxation, and a swimming pool. The property also includes a garage and ample off-street parking. The location is convenient, with easy access to local amenities and transport links. While the lack of specific information on bedrooms and bathrooms prevents a complete assessment, the images suggest a well-maintained and spacious property. The list price is slightly above the average for the area, but the high-quality finishes, modern amenities and desirable location could justify the premium.
Therefore, we give this property 8 / 10. *Disclaimer: This is our option and does constitute a recommendation or financial advice. Do your own research. *
- Price
- 7
- Condition
- 9
- Location
- 8
- Land
- 8
- Bedrooms
- 0
- Bathrooms
- 0
- Sqft (est)
- 1,525.00
The heatmap indicates the level of crime in the area. The color of the heatmap indicates the crime severity and recency.
Metrics Year-on-Year
- Average area value
- 661,000.00 £Increased by 29.29 %
- Est sale value
- 826,550.00 £Increased by 47.28 %
- Average area rental value
- 2,410.00 £/moIncreased by 120.90 %
- Est letting value
- 1,525.00 £/mo
- Est rental Yield
- 4.38 %Increased by 71.09 %
- Crime Rate
- 13.00 %Unchanged by 0.00 %
Agent Activity
Chequers created the listing.
Nearby Schools
| Name | Type | Ofsted | Distance |
|---|---|---|---|
| Roundswell Community Primary Academy | Free Schools | 0.43 KM | |
| The Shoreline Academy | Academy Alternative Provision Sponsor Led | 0.88 KM | |
| Sticklepath Community Primary Academy | Academy Converter | 1.52 KM | |
| Barnstaple (Sticklepath) | Children's Centre | 1.65 KM | |
| Petroc | Further Education | Good | 2.94 KM |
Images
Nearby Streets
| Name | Average Price | Average Sqft | Distance |
|---|---|---|---|
| Old Bakery Cottages | £ 0 | 0 | 0.00 KM |
| The Orchard | £ 0 | 0 | 0.00 KM |
| Muddle Brook | £ 0 | 0 | 0.00 KM |
| Spinney Close | £ 393,000 | 0 | 0.00 KM |
| Honeysuckle Close | £ 0 | 0 | 0.00 KM |
Nearby Transport
| Name | NLC | TLC | Distance |
|---|---|---|---|
| Barnstaple | 5725 | BNP | 3.66 KM |
| Chapelton (Devon) | 5820 | CPN | 9.94 KM |
Nearby Listings
| Address | Price | Type | Score | Distance |
|---|---|---|---|---|
| Lyddicleave, Bickington, Barnstaple, Devon, EX31 | £ 550,000 | BUY | 8 / 10 | 0.00 KM |
| Brookside, Bickington, Barnstaple, EX31 | £ 260,000 | BUY | 6 / 10 | 0.11 KM |
| Barnstaple, North Devon, EX31 2JL | £ 422,500 | BUY | Unknown | 0.12 KM |
| Barnstaple, North Devon, EX31 2JL | £ 349,000 | BUY | Unknown | 0.12 KM |
| Barnstaple, North Devon, EX31 2JL | £ 355,000 | BUY | Unknown | 0.12 KM |
Nearby Properties
| Address | Price | Distance |
|---|---|---|
| 4 Hele Close | £ 246,000 | 0.15 KM |
| 18 Hele Close | £ 169,950 | 0.15 KM |
| 13 Hele Close | £ 315,000 | 0.15 KM |
| 2 Hele Close | £ 340,000 | 0.15 KM |
| 14 Hele Close | £ 159,950 | 0.15 KM |