Bennett & Hall says ..
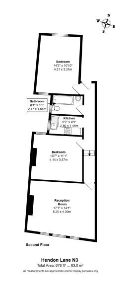
TWO DOUBLE BEDROOM 2nd (top) floor flat above shopping parade, close to buses & moments from Finchley Central underground station. * TWO DOUBLE BEDROOMS * LARGE RECEPTION ROOM * FITTED KITCHEN * BATHROOM/WC * DOUBLE GLAZED * GAS CENTRAL HEATING * 97 YEAR LEASE * CHAIN FREE
Property Oracle says ..
Therefore, we give this property 6 / 10. *Disclaimer: This is our option and does constitute a recommendation or financial advice. Do your own research. *
- Price
- 9
- Condition
- 8
- Location
- 7
- Land
- 1
- Bedrooms
- 2
- Bathrooms
- 1
- Sqft (est)
- 678.13
The heatmap indicates the level of crime in the area. The color of the heatmap indicates the crime severity and recency.
Metrics Year-on-Year
- Average area value
- 1,216,667.00 £Increased by 18.81 %
- Est sale value
- 657,107.97 £Increased by 46.37 %
- Average area rental value
- 2,646.00 £/moIncreased by 2.16 %
- Est letting value
- 1,356.26 £/moIncreased by 100.00 %
- Est rental Yield
- 2.61 %Decreased by 13.86 %
- Crime Rate
- 12.00 %Unchanged by 0.00 %
from 1,024,083.00 £
from 448,922.06 £
from 2,590.00 £/mo
from 678.13 £/mo
from 3.03 %
from 12.00 %
Agent Activity
Bennett & Hall created the listing.
Nearby Schools
| Name | Type | Ofsted | Distance |
|---|---|---|---|
| Pardes House Grammar School | Other Independent School | Good | 0.13 KM |
| Pardes House Primary School | Voluntary Aided School | Good | 0.13 KM |
| Finchley And Acton Yochien School | Other Independent School | Good | 0.46 KM |
| St Mary'S Cofe Primary School | Voluntary Aided School | Outstanding | 0.55 KM |
| Akiva School | Voluntary Aided School | Good | 0.97 KM |
Images
Nearby Streets
| Name | Average Price | Average Sqft | Distance |
|---|---|---|---|
| Albert Place | £ 565,000 | 0 | 0.00 KM |
| Wootton Grove | £ 0 | 0 | 0.00 KM |
| Popes Drive | £ 0 | 0 | 0.00 KM |
| Hervey Close | £ 699,500 | 0 | 0.00 KM |
| Chaville Way | £ 0 | 0 | 0.00 KM |
Nearby Transport
| Name | NLC | TLC | Distance |
|---|---|---|---|
| Cricklewood | 1519 | CRI | 4.96 KM |
| Hendon | 1522 | HEN | 5.15 KM |
| Oakleigh Park | 6020 | OKL | 5.38 KM |
| Finchley Road And Frognal | 1445 | FNY | 5.74 KM |
| West Hampstead Thameslink | 1525 | WHP | 5.76 KM |
Nearby Listings
| Address | Price | Type | Score | Distance |
|---|---|---|---|---|
| HENDON LANE, FINCHLEY, N3 | £ 300,000 | BUY | 6 / 10 | 0.00 KM |
| Hendon Lane, Finchley, N3 | £ 300,000 | BUY | Unknown | 0.01 KM |
| Hendon Lane, Finchley Central, N3 | £ 800,000 | BUY | 4 / 10 | 0.02 KM |
| College Terrace, Finchley | £ 600,000 | BUY | 6 / 10 | 0.07 KM |
| College Terrace, Finchley Central, N3 | £ 575,000 | BUY | Unknown | 0.07 KM |
Nearby Properties
| Address | Price | Distance |
|---|---|---|
| 16b Hendon Lane | £ 143,000 | 0.01 KM |
| 14a Hendon Lane | £ 163,000 | 0.01 KM |
| 2b Hendon Lane | £ 284,000 | 0.01 KM |
| 16a Hendon Lane | £ 128,750 | 0.01 KM |
| 12a Hendon Lane | £ 175,000 | 0.01 KM |