Old School Lane, Osbaldwick, York
By Quantum Estate Agents
£ 310,000
Reviews
3 out of 5 stars
Quantum Estate Agents says ..
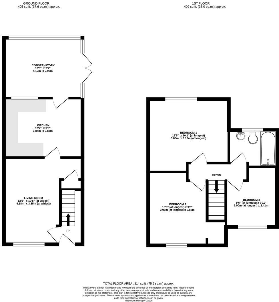
We are delighted to bring to market this super three bedroom town house situated off Osbaldwick Lane. There is a lot to like about the house with a few stand out features including garage and off street parking for two cars! The property is well maintained has been rented out for the last 17 year...
Property Oracle says ..
This is a three-bedroom terraced house in Osbaldwick, York. The property benefits from a conservatory and a well-maintained garden. While the interiors are generally in good condition, some areas like the bathroom and kitchen could use modernization. The location is convenient, with proximity to schools and transportation links. Considering the size, location, and condition, the asking price of £310,000 appears to be a reasonable investment. It would particularly suit a small family or first-time buyers looking for a home in a good school district and with easy access to York city center.
Therefore, we give this property 7 / 10. *Disclaimer: This is our option and does constitute a recommendation or financial advice. Do your own research. *
- Price
- 8
- Condition
- 7
- Location
- 7
- Land
- 7
- Bedrooms
- 3
- Bathrooms
- 1
- Sqft (est)
- 814.00
The heatmap indicates the level of crime in the area. The color of the heatmap indicates the crime severity and recency.
Metrics Year-on-Year
- Average area value
- 591,875.00 £Increased by 5.13 %
- Est sale value
- 388,278.00 £Decreased by 6.47 %
- Average area rental value
- 1,194.00 £/moDecreased by 3.63 %
- Est letting value
- 0.00 £/moDecreased by 100.00 %
- Est rental Yield
- 2.42 %Decreased by 8.33 %
- Crime Rate
- 13.00 %Unchanged by 0.00 %
Agent Activity
Quantum Estate Agents created the listing.
Nearby Schools
| Name | Type | Ofsted | Distance |
|---|---|---|---|
| Osbaldwick Primary Academy | Academy Converter | 0.57 KM | |
| Archbishop Holgate'S School, A Church Of England Academy | Academy Converter | Outstanding | 0.62 KM |
| St Aelred'S Catholic Primary School - A Catholic Voluntary Academy | Academy Converter | 0.67 KM | |
| Badger Hill Primary Academy | Academy Converter | Good | 0.81 KM |
| Applefields School | Community Special School | Good | 0.90 KM |
Images
Nearby Streets
| Name | Average Price | Average Sqft | Distance |
|---|---|---|---|
| Old School Close | £ 0 | 0 | 0.00 KM |
| Mallard Close | £ 475,000 | 0 | 0.00 KM |
| Seaton Close | £ 0 | 0 | 0.00 KM |
| Derwent Valley & Foss Islands Track | £ 0 | 0 | 0.00 KM |
| Saint Aelreds Mews | £ 320,450 | 0 | 0.00 KM |
Nearby Transport
| Name | NLC | TLC | Distance |
|---|---|---|---|
| York | 8263 | YRK | 5.45 KM |
Nearby Listings
| Address | Price | Type | Score | Distance |
|---|---|---|---|---|
| Old School Lane, Osbaldwick, York | £ 310,000 | BUY | 7 / 10 | 0.00 KM |
| Osbaldwick Lane, York | £ 325,000 | BUY | 5 / 10 | 0.02 KM |
| Mallard Close, York | £ 475,000 | BUY | 6 / 10 | 0.04 KM |
| Mallard Close, York, YO10 | £ 475,000 | BUY | 7 / 10 | 0.06 KM |
| Osbaldwick Lane, York, YO10 3AX | £ 250,000 | BUY | 6 / 10 | 0.06 KM |
Nearby Properties
| Address | Price | Distance |
|---|---|---|
| 3 Mallard Close | £ 228,000 | 0.06 KM |
| 12 Mallard Close | £ 315,000 | 0.06 KM |
| 5 Mallard Close | £ 240,000 | 0.06 KM |
| 8 Mallard Close | £ 340,000 | 0.06 KM |
| 6 Mallard Close | £ 250,000 | 0.06 KM |