GE
Neville Road, King's Lynn, PE31
By Geoffrey Collings & Co
£ 425,000
Reviews
3 out of 5 stars
Geoffrey Collings & Co says ..
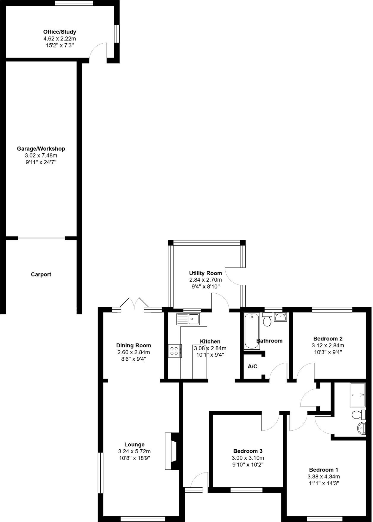
Spacious 3-Bedroom Detached Bungalow with Garage, Workshop & Generous Plot
Property Oracle says ..
Therefore, we give this property 6 / 10. *Disclaimer: This is our option and does constitute a recommendation or financial advice. Do your own research. *
- Price
- 6
- Condition
- 7
- Location
- 7
- Land
- 7
- Bedrooms
- 3
- Bathrooms
- 2
The heatmap indicates the level of crime in the area. The color of the heatmap indicates the crime severity and recency.
Metrics Year-on-Year
- Average area value
- 245,074.00 £Decreased by 15.93 %
- Average area rental value
- 1,254.00 £/moDecreased by 5.43 %
- Est rental Yield
- 6.14 %Increased by 12.45 %
- Crime Rate
- 15.00 %Unchanged by 0.00 %
from 291,529.00 £
from 1,326.00 £/mo
from 5.46 %
from 15.00 %
Agent Activity
Geoffrey Collings & Co created the listing.
Nearby Schools
| Name | Type | Ofsted | Distance |
|---|---|---|---|
| Heacham Junior School | Academy Converter | Good | 0.62 KM |
| Heacham Infant And Nursery School | Academy Converter | Good | 0.91 KM |
| Hunstanton Primary School | Foundation School | Good | 2.64 KM |
| Hunstanton Children'S Centre | Children's Centre | 3.02 KM | |
| Smithdon High School | Academy Sponsor Led | Requires improvement | 3.06 KM |
Images
Nearby Streets
| Name | Average Price | Average Sqft | Distance |
|---|---|---|---|
| The Drift | £ 0 | 0 | 0.00 KM |
| Malthouse Close | £ 0 | 0 | 0.00 KM |
| Blackthorn Close | £ 0 | 0 | 0.00 KM |
| Butterfield Meadow | £ 485,000 | 0 | 0.00 KM |
| Lapwing Lane | £ 0 | 0 | 0.00 KM |
Nearby Listings
| Address | Price | Type | Score | Distance |
|---|---|---|---|---|
| Neville Road, King's Lynn, PE31 | £ 425,000 | BUY | 6 / 10 | 0.00 KM |
| Neville Road, Heacham | £ 350,000 | BUY | 7 / 10 | 0.04 KM |
| Neville Road, Heacham, PE31 | £ 355,000 | BUY | 7 / 10 | 0.04 KM |
| Heacham | £ 399,995 | BUY | 7 / 10 | 0.09 KM |
| Station Road, Heacham, King's Lynn | £ 155,000 | BUY | Unknown | 0.12 KM |
Nearby Properties
| Address | Price | Distance |
|---|---|---|
| 21 Neville Road | £ 400,000 | 0.05 KM |
| 2 Neville Road | £ 155,000 | 0.05 KM |
| 15 Neville Road | £ 437,000 | 0.05 KM |
| 8 Neville Road | £ 59,000 | 0.05 KM |
| 32 Station Road | £ 36,000 | 0.09 KM |