Jacobs Steel says ..
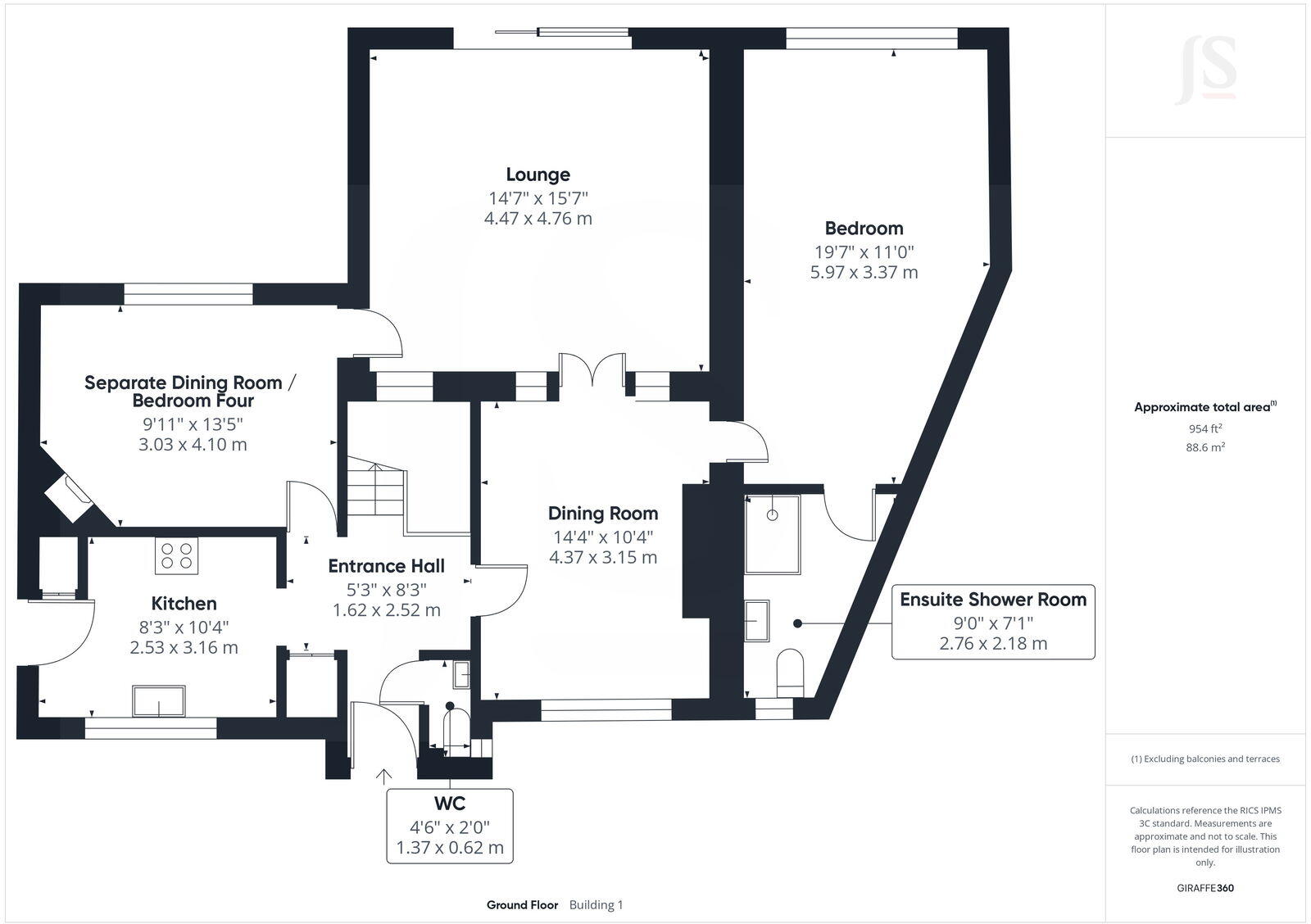
We are delighted to offer for sale this well extended and versatile three/four bedroom detached house situated within this sought after North Shoreham location.
Property Oracle says ..
This is a detached property located on The Drive in Shoreham By Sea. The property has 3 bedrooms and 2 bathrooms. The property is in good condition and has a good sized garden. The property is located close to schools and transportation links. The property is listed for £750,000.
Therefore, we give this property 7 / 10. *Disclaimer: This is our option and does constitute a recommendation or financial advice. Do your own research. *
- Price
- 7
- Condition
- 7
- Location
- 7
- Land
- 8
- Bedrooms
- 3
- Bathrooms
- 2
- Sqft (est)
- 931.19
The heatmap indicates the level of crime in the area. The color of the heatmap indicates the crime severity and recency.
Metrics Year-on-Year
- Average area value
- 830,864.00 £Increased by 21.56 %
- Est sale value
- 825,034.34 £Increased by 57.65 %
- Average area rental value
- 1,899.00 £/moIncreased by 17.22 %
- Est letting value
- 1,862.38 £/moIncreased by 100.00 %
- Est rental Yield
- 2.74 %Decreased by 3.52 %
- Crime Rate
- 2.00 %Unchanged by 0.00 %
Agent Activity
Jacobs Steel created the listing.
Nearby Schools
| Name | Type | Ofsted | Distance |
|---|---|---|---|
| Buckingham Park Primary School | Community School | Good | 0.42 KM |
| St Peter'S Catholic Primary School, Shoreham-By-Sea | Voluntary Aided School | Good | 0.99 KM |
| Swiss Gardens Primary School | Community School | Good | 1.17 KM |
| Kingston Buci Children & Family Centre | Children's Centre | 1.29 KM | |
| Shoreham Beach Primary School | Community School | Good | 1.54 KM |
Images
Nearby Streets
| Name | Average Price | Average Sqft | Distance |
|---|---|---|---|
| Parkside | £ 841,667 | 0 | 0.00 KM |
| Western Road | £ 287,500 | 0 | 0.00 KM |
| St Mary's Road | £ 349,975 | 0 | 0.00 KM |
| John Street | £ 449,982 | 0 | 0.00 KM |
| High Street | £ 289,975 | 0 | 0.00 KM |
Nearby Transport
| Name | NLC | TLC | Distance |
|---|---|---|---|
| Shoreham-By-Sea | 5277 | SSE | 0.88 KM |
| Southwick | 5286 | SWK | 4.02 KM |
| Fishersgate | 5284 | FSG | 5.77 KM |
| Lancing | 5275 | LAC | 6.01 KM |
| Portslade | 5276 | PLD | 7.29 KM |
Nearby Listings
| Address | Price | Type | Score | Distance |
|---|---|---|---|---|
| The Drive, Shoreham By Sea | £ 750,000 | BUY | 7 / 10 | 0.00 KM |
| The Drive, Shoreham, BN43 | £ 800,000 | BUY | Unknown | 0.07 KM |
| The Drive, Shoreham-by-Sea | £ 700,000 | BUY | 8 / 10 | 0.11 KM |
| The Drive, Shoreham-by-Sea, West Sussex, BN43 | £ 675,000 | BUY | 8 / 10 | 0.11 KM |
| Newtimber Gardens, Shoreham by Sea | £ 350,000 | BUY | 7 / 10 | 0.14 KM |
Nearby Properties
| Address | Price | Distance |
|---|---|---|
| 16 The Drive | £ 590,000 | 0.08 KM |
| 17 Newtimber Gardens | £ 470,000 | 0.09 KM |
| 23 Newtimber Gardens | £ 305,000 | 0.09 KM |
| 24 Newtimber Gardens | £ 283,000 | 0.09 KM |
| 14 Newtimber Gardens | £ 217,000 | 0.09 KM |