SA
The Emmetts, Brook Place, Cranbrook Road, Frittenden, Kent, TN17
By Savills New Homes
£ 1,095,000
Reviews
3 out of 5 stars
Savills New Homes says ..
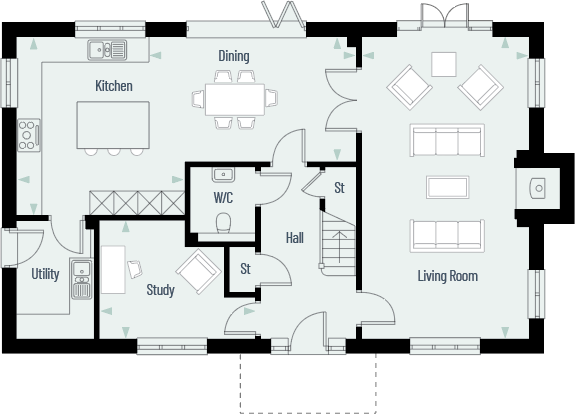
The Emmetts, a 4 bedroom detached property with double garage, set in 0.23 of an acre in the pretty village development, in Frittenden.
Property Oracle says ..
Therefore, we give this property 6 / 10. *Disclaimer: This is our option and does constitute a recommendation or financial advice. Do your own research. *
- Price
- 3
- Condition
- 9
- Location
- 7
- Land
- 7
- Bedrooms
- 4
- Bathrooms
- 3
- Sqft (est)
- 766.00
The heatmap indicates the level of crime in the area. The color of the heatmap indicates the crime severity and recency.
Metrics Year-on-Year
- Average area value
- 377,000.00 £Decreased by 3.35 %
- Est sale value
- 645,738.00 £Increased by 70.99 %
- Average area rental value
- 664.00 £/moDecreased by 69.43 %
- Est letting value
- 766.00 £/moDecreased by 50.00 %
- Est rental Yield
- 2.11 %Decreased by 68.41 %
- Crime Rate
- 0.00 %
from 390,065.00 £
from 377,638.00 £
from 2,172.00 £/mo
from 1,532.00 £/mo
from 6.68 %
from 0.00 %
Agent Activity
Savills New Homes created the listing.
Nearby Schools
| Name | Type | Ofsted | Distance |
|---|---|---|---|
| Frittenden Church Of England Primary School | Voluntary Controlled School | Good | 0.50 KM |
| Sissinghurst Voluntary Aided Church Of England Primary School | Voluntary Aided School | Good | 4.53 KM |
| Headcorn Children'S Centre | Children's Centre | 4.79 KM | |
| Staplehurst School | Community School | Requires improvement | 4.93 KM |
| Headcorn Primary School | Community School | Good | 5.22 KM |
Images
Nearby Streets
| Name | Average Price | Average Sqft | Distance |
|---|---|---|---|
| Chestnut Close | £ 0 | 0 | 0.00 KM |
| Bakery Close | £ 0 | 0 | 0.00 KM |
| Staplehurst Road | £ 0 | 0 | 0.00 KM |
Nearby Transport
| Name | NLC | TLC | Distance |
|---|---|---|---|
| Headcorn | 5220 | HCN | 5.45 KM |
| Staplehurst | 5228 | SPU | 5.61 KM |
Nearby Listings
| Address | Price | Type | Score | Distance |
|---|---|---|---|---|
| The Emmetts, Brook Place, Cranbrook Road, Frittenden, Kent, TN17 | £ 1,095,000 | BUY | 6 / 10 | 0.00 KM |
| The Hever, Brook Place, Cranbrook Road, Frittenden, Kent, TN17 | £ 599,000 | BUY | 7 / 10 | 0.00 KM |
| Parish Avenue, Frittenden, Cranbrook, Kent, TN17 | £ 1,175,000 | BUY | Unknown | 0.00 KM |
| Parish Avenue, Frittenden, Cranbrook, Kent, TN17 | £ 1,400,000 | BUY | 7 / 10 | 0.00 KM |
| The Down, Brook Place, Cranbrook Road, Frittenden, Kent, TN17 | £ 615,000 | BUY | 7 / 10 | 0.00 KM |
Nearby Properties
| Address | Price | Distance |
|---|---|---|
| 2 Weald View | £ 468,950 | 0.23 KM |
| 3 Weald View | £ 250,000 | 0.23 KM |
| Poplar House | £ 677,000 | 0.69 KM |
| The Old Rectory | £ 2,230,000 | 0.69 KM |
| Old Jorrocks | £ 494,000 | 0.69 KM |