Malpass Drive, Leybourne, West Malling
By Simon Miller & Company
£ 260,000
Reviews
2 out of 5 stars
Simon Miller & Company says ..
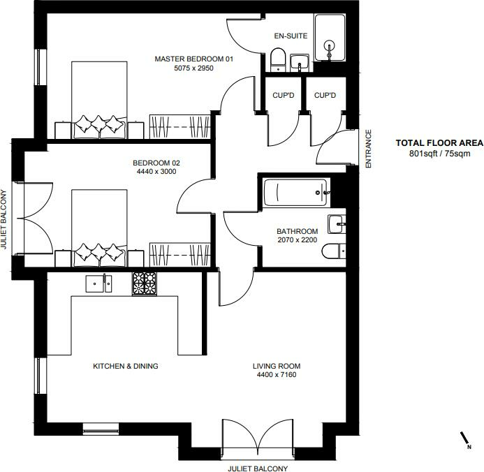
FANTASTIC Top Floor Position - Popular Leybourne Chase Development - En-suite to Master Bedroom - Open-plan Living Dining Space - Views over the Local Countryside
Property Oracle says ..
This two-bedroom, two-bathroom apartment in the Leybourne Chase development in West Malling, Kent, presents an attractive option for buyers. The property benefits from a modern, well-maintained interior, as shown in the provided photographs. The open-plan living area is bright and spacious and the overall design offers a contemporary feel. The kitchen is equipped with modern appliances and has a good layout. The property’s proximity to good schools, including Valley Invicta Primary School and others with a good Ofsted rating, makes it suitable for families. West Malling railway station is also relatively close, offering convenient transport links to other areas. While access to outdoor space is limited to a communal garden area, there is an added benefit of on-site facilities such as a mini-supermarket and a community centre. However, further information regarding specific square footage and more comparative market analysis of similar properties would be needed to perform a more comprehensive valuation. The available data indicates a reasonable price, however, a full property survey is still advised.
Therefore, we give this property 5 / 10. *Disclaimer: This is our option and does constitute a recommendation or financial advice. Do your own research. *
- Price
- 6
- Condition
- 7
- Location
- 7
- Land
- 3
- Bedrooms
- 2
- Bathrooms
- 2
- Sqft (est)
- 807.29
The heatmap indicates the level of crime in the area. The color of the heatmap indicates the crime severity and recency.
Metrics Year-on-Year
- Average area value
- 438,857.00 £Decreased by 17.59 %
- Est sale value
- 402,030.42 £Decreased by 6.92 %
- Average area rental value
- 1,383.00 £/moDecreased by 5.08 %
- Est letting value
- 807.29 £/moUnchanged by 0.00 %
- Est rental Yield
- 3.78 %Increased by 15.24 %
- Crime Rate
- 20.00 %Unchanged by 0.00 %
Agent Activity
Simon Miller & Company marked this listing as sold.
Simon Miller & Company created the listing.
Nearby Schools
| Name | Type | Ofsted | Distance |
|---|---|---|---|
| Valley Invicta Primary School At Leybourne Chase | Academy Sponsor Led | Good | 0.52 KM |
| The Rosewood School | Pupil Referral Unit | Requires improvement | 0.63 KM |
| West Malling Church Of England Primary School And Mcginty Speech And Language Centre | Academy Converter | Good | 1.48 KM |
| Ryarsh Primary School | Community School | Outstanding | 1.58 KM |
| Leybourne, St Peter And St Paul Church Of England Primary Academy | Academy Converter | 1.63 KM |
Images
Nearby Streets
| Name | Average Price | Average Sqft | Distance |
|---|---|---|---|
| trim trail | £ 0 | 0 | 0.00 KM |
| Rose Avenue | £ 0 | 0 | 0.00 KM |
| Hilder Street | £ 479,375 | 0 | 0.00 KM |
| Hawthorn Grove | £ 275,000 | 0 | 0.00 KM |
| Bull Road | £ 1,325,000 | 0 | 0.00 KM |
Nearby Transport
| Name | NLC | TLC | Distance |
|---|---|---|---|
| West Malling | 5129 | WMA | 2.00 KM |
| East Malling | 5134 | EML | 4.04 KM |
| Snodland | 5189 | SDA | 4.87 KM |
| New Hythe | 5238 | NHE | 4.96 KM |
| Aylesford | 5162 | AYL | 6.21 KM |
Nearby Listings
| Address | Price | Type | Score | Distance |
|---|---|---|---|---|
| Malpass Drive, West Malling, ME19 | £ 440,000 | BUY | 7 / 10 | 0.03 KM |
| Hirschield Drive, Leybourne Chase, West Malling, Kent, ME19 5GN | £ 350,000 | BUY | 7 / 10 | 0.04 KM |
| Hirschield Drive, Leybourne, West Malling, Kent | £ 350,000 | BUY | 7 / 10 | 0.06 KM |
| Malpass Drive, Leybourne | £ 270,000 | BUY | 6 / 10 | 0.08 KM |
| Hirschield Drive, Leybourne, West Malling | £ 325,000 | BUY | 6 / 10 | 0.08 KM |
Nearby Properties
| Address | Price | Distance |
|---|---|---|
| 7 Malpass Drive | £ 350,000 | 0.01 KM |
| 58 Hawley Drive | £ 325,000 | 0.17 KM |
| 1 Charlotte Way | £ 335,000 | 0.33 KM |
| 12 Charlotte Way | £ 297,000 | 0.33 KM |
| 9 Bluegown Avenue | £ 324,000 | 0.41 KM |