Cecil Avenue, Strood, Rochester, ME2
By Hunters
£ 270,000
Reviews
3 out of 5 stars
Hunters says ..
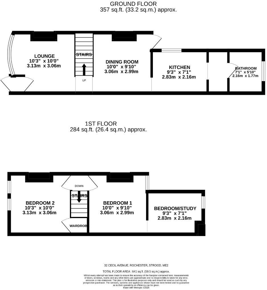
If you're looking to get onto the property ladder then look no further! We are delighted to offer for sale this two/three bedroom home located on Cecil Avenue in Strood. The ground floor consists of lounge, dining room, kitchen followed by the family bathroom. To the ...
Property Oracle says ..
This is a three-bedroom terraced house located in Strood North, Rochester. The property is listed with Hunters estate agent. It offers 641 sqft of living space and includes a garden. The house is situated within proximity to local schools and Strood train station. While the property appears to be in a generally fair condition, some areas could benefit from modernisation. The asking price of £270,000 is slightly above the average for the area, but may be justified by the property’s location and features.
Therefore, we give this property 6 / 10. *Disclaimer: This is our option and does constitute a recommendation or financial advice. Do your own research. *
- Price
- 7
- Condition
- 6
- Location
- 7
- Land
- 7
- Bedrooms
- 3
- Bathrooms
- 1
- Sqft (est)
- 641.00
The heatmap indicates the level of crime in the area. The color of the heatmap indicates the crime severity and recency.
Metrics Year-on-Year
- Average area value
- 224,000.00 £Decreased by 29.61 %
- Est sale value
- 215,376.00 £Increased by 13.13 %
- Average area rental value
- 1,116.00 £/moDecreased by 12.40 %
- Est letting value
- 641.00 £/moUnchanged by 0.00 %
- Est rental Yield
- 5.98 %Increased by 24.58 %
- Crime Rate
- 15.00 %Unchanged by 0.00 %
Agent Activity
Hunters created the listing.
Nearby Schools
| Name | Type | Ofsted | Distance |
|---|---|---|---|
| Gun Lane Children'S Centre | Children's Centre | 0.35 KM | |
| All Faiths Children'S Academy | Academy Converter | Good | 0.36 KM |
| English Martyrs' Catholic Primary School | Voluntary Aided School | Good | 0.43 KM |
| Temple Mill Primary School | Academy Sponsor Led | Good | 0.81 KM |
| The Children'S Centre At Temple Mill | Children's Centre | 0.81 KM |
Images
Nearby Streets
| Name | Average Price | Average Sqft | Distance |
|---|---|---|---|
| Edward Street | £ 0 | 0 | 0.00 KM |
| Watermill Close | £ 0 | 0 | 0.00 KM |
| Taylor's Lane | £ 0 | 0 | 0.00 KM |
| RRX60 | £ 280,000 | 0 | 0.00 KM |
| Kaler Mews | £ 0 | 0 | 0.00 KM |
Nearby Transport
| Name | NLC | TLC | Distance |
|---|---|---|---|
| Strood (Kent) | 5191 | SOO | 0.51 KM |
| Rochester | 5203 | RTR | 2.17 KM |
| Chatham | 5199 | CTM | 3.45 KM |
| Higham | 5202 | HGM | 4.51 KM |
| Cuxton | 5201 | CUX | 4.78 KM |
Nearby Listings
| Address | Price | Type | Score | Distance |
|---|---|---|---|---|
| Cecil Avenue, Strood, Rochester, ME2 | £ 270,000 | BUY | 6 / 10 | 0.00 KM |
| Cecil Avenue, Strood, Rochester | £ 270,000 | BUY | 7 / 10 | 0.01 KM |
| Cecil Avenue, Strood, Rochester, Kent. ME2 | £ 280,000 | BUY | 7 / 10 | 0.01 KM |
| Cecil Avenue, Rochester | £ 265,000 | BUY | 6 / 10 | 0.04 KM |
| Frindsbury Road, Rochester, Kent, ME2 | £ 400,000 | BUY | 3 / 10 | 0.08 KM |
Nearby Properties
| Address | Price | Distance |
|---|---|---|
| 3 Florence Street | £ 30,000 | 0.04 KM |
| 12 Florence Street | £ 209,500 | 0.04 KM |
| 15 Florence Street | £ 133,000 | 0.04 KM |
| 5 Florence Street | £ 198,750 | 0.04 KM |
| 2 Florence Street | £ 225,000 | 0.04 KM |