Cambria Avenue, Borstal, Rochester, Kent. ME1
By Moxy Property Consultants
£ 175,000
Reviews
3 out of 5 stars
Moxy Property Consultants says ..
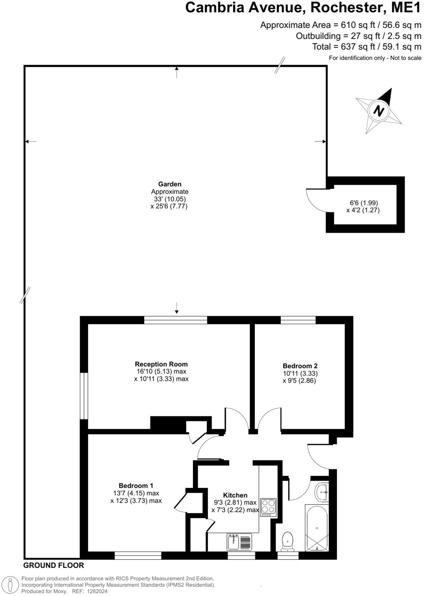
A ground floor, two double bedroom apartment with private rear garden! Just a short walk to the riverside and easy access to Rochester High Street, train station, local shops and road links.
Property Oracle says ..
Cambria Avenue is located in the Borstal area of Rochester, Kent. The property is an apartment with two bedrooms and one bathroom. It has a small garden.
The apartment appears to be in reasonable condition. The interior is presented well, with updated flooring and a modern kitchen. While some aspects may benefit from modernisation, there is nothing that suggests significant repairs are immediately required.
The property is conveniently located near several primary schools, including The Pilgrim School and St William Of Perth Roman Catholic Primary School. There are also secondary schools within a reasonable distance. Several Southeastern train stations are also within a few kilometers, providing good transport links.
Considering the average price per square foot in the area is £364, and this apartment is listed at £175,000 for 610 sqft, the price seems reasonable. However, it’s worth noting that the average property price in the area is significantly higher (£338,115), and the average size is also larger (927 sqft). The lower price of this apartment may be due to its smaller size and the fact that it is a flat, rather than a house. Nearby comparable properties on Cambria Avenue support this assessment, with prices ranging from £138,000 to £181,400.
Based on the provided information, the property offers good value for money in a convenient location, although buyers should be aware of the smaller size compared to the average property in the area.
Therefore, we give this property 7 / 10. *Disclaimer: This is our option and does constitute a recommendation or financial advice. Do your own research. *
- Price
- 7
- Condition
- 7
- Location
- 8
- Land
- 6
- Bedrooms
- 2
- Bathrooms
- 1
- Sqft (est)
- 610.00
The heatmap indicates the level of crime in the area. The color of the heatmap indicates the crime severity and recency.
Metrics Year-on-Year
- Average area value
- 265,071.00 £Decreased by 34.02 %
- Est sale value
- 259,250.00 £Increased by 48.60 %
- Average area rental value
- 1,344.00 £/moDecreased by 2.33 %
- Est letting value
- 1,220.00 £/mo
- Est rental Yield
- 6.08 %Increased by 47.93 %
- Crime Rate
- 27.00 %Unchanged by 0.00 %
Agent Activity
Moxy Property Consultants created the listing.
Nearby Schools
| Name | Type | Ofsted | Distance |
|---|---|---|---|
| The Pilgrim School (A Church Of England Primary With Nursery) | Academy Converter | 0.34 KM | |
| St William Of Perth Roman Catholic Primary School | Voluntary Aided School | Good | 1.60 KM |
| Sir Joseph Williamson'S Mathematical School | Academy Converter | 1.71 KM | |
| Cedar Children'S Academy | Academy Sponsor Led | Good | 1.80 KM |
| Medway Secure Training Centre | Secure Units | 1.91 KM |
Images
Nearby Streets
| Name | Average Price | Average Sqft | Distance |
|---|---|---|---|
| M2 | £ 550,000 | 0 | 0.00 KM |
| Isaac Blake Place | £ 0 | 0 | 0.00 KM |
| Ash Road | £ 0 | 0 | 0.00 KM |
| Cedar Road; Hawthorn Road | £ 300,000 | 0 | 0.00 KM |
Nearby Transport
| Name | NLC | TLC | Distance |
|---|---|---|---|
| Cuxton | 5201 | CUX | 2.43 KM |
| Strood (Kent) | 5191 | SOO | 3.07 KM |
| Rochester | 5203 | RTR | 3.19 KM |
| Chatham | 5199 | CTM | 4.19 KM |
| Halling | 5173 | HAI | 4.93 KM |
Nearby Listings
| Address | Price | Type | Score | Distance |
|---|---|---|---|---|
| Cambria Avenue, Borstal, Rochester, Kent. ME1 | £ 175,000 | BUY | 7 / 10 | 0.00 KM |
| Ailsa Mews, Borstal, Rochester, ME1 | £ 390,000 | BUY | Unknown | 0.05 KM |
| Cordelia Crescent, Rochester, Kent | £ 200,000 | BUY | 6 / 10 | 0.09 KM |
| Cordelia Crescent, Rochester, ME1 | £ 325,000 | BUY | 5 / 10 | 0.09 KM |
| Cordelia Crescent, Rochester, ME1 | £ 325,000 | BUY | 5 / 10 | 0.09 KM |
Nearby Properties
| Address | Price | Distance |
|---|---|---|
| 45 Cambria Avenue | £ 162,000 | 0.01 KM |
| 44 Cambria Avenue | £ 100,000 | 0.01 KM |
| 54 Cambria Avenue | £ 161,000 | 0.01 KM |
| 42 Cambria Avenue | £ 135,000 | 0.01 KM |
| 59 Cambria Avenue | £ 167,500 | 0.01 KM |