Farrant Avenue, Wood Green, London, N22
By Foxtons
£ 450,000
Reviews
3 out of 5 stars
Foxtons says ..
This bright and spacious 2 bedroom house offers large and sunny garden, 2 double bedrooms, modern bathroom, amazing location with plenty of local amenities and easy transport links.
Property Oracle says ..
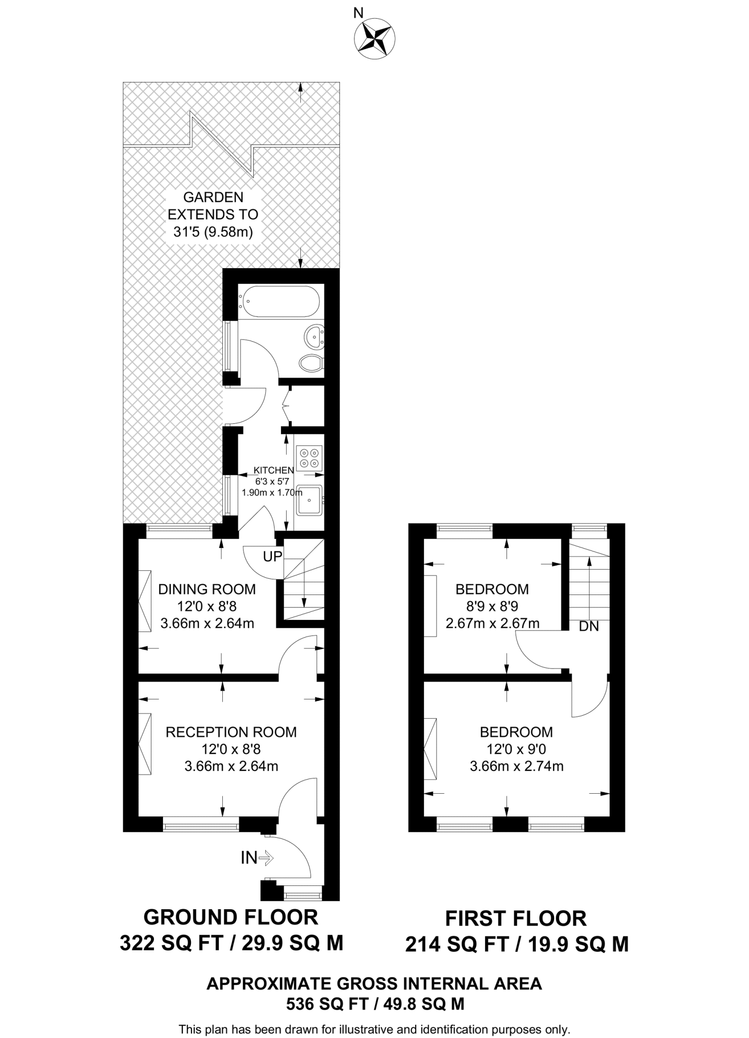
This two-bedroom terraced house in Noel Park, Wood Green, is presented by Foxtons. The property benefits from a relatively central location within the Noel Park area. Nearby, outstanding schools such as Noel Park Primary School and Woodside High School are attractive features for families. Transport links are present, though not immediately adjacent, requiring a short commute to the nearest stations. The property features a small but well-maintained rear garden. Internally, the property showcases a unique style. However, potential buyers might find the current colour scheme and decor to be dated and require modernisation. The kitchen and bathroom appear functional but could benefit from updating. The overall living space seems adequate for a two-bedroom property, although precise square footage is needed for a definitive judgment. In terms of value, the list price sits within the range of similar properties on Farrant Avenue and nearby streets. However, a comprehensive survey should be undertaken to assess the condition thoroughly and confirm its true market value. The lack of square footage information for similar properties makes accurate pricing comparison challenging. Ultimately, this property represents a viable option for buyers seeking a home in a reasonably well-located area, but potential buyers must account for necessary renovations and modernisations. The small garden area is a positive attribute in a dense urban setting, but the size needs verification.
Therefore, we give this property 6 / 10. *Disclaimer: This is our option and does constitute a recommendation or financial advice. Do your own research. *
- Price
- 7
- Condition
- 6
- Location
- 7
- Land
- 4
- Bedrooms
- 2
- Bathrooms
- 1
- Sqft (est)
- 536.04
The heatmap indicates the level of crime in the area. The color of the heatmap indicates the crime severity and recency.
Metrics Year-on-Year
- Average area value
- 514,286.00 £Decreased by 0.49 %
- Est sale value
- 372,547.80 £Increased by 4.83 %
- Average area rental value
- 1,644.00 £/moDecreased by 18.33 %
- Est letting value
- 1,072.08 £/moUnchanged by 0.00 %
- Est rental Yield
- 3.84 %Decreased by 17.77 %
- Crime Rate
- 3.00 %Unchanged by 0.00 %
Agent Activity
Foxtons created the listing.
Nearby Schools
| Name | Type | Ofsted | Distance |
|---|---|---|---|
| Noel Park Children'S Centre | Children's Centre | 0.07 KM | |
| Lordship Lane Primary School | Community School | Good | 0.37 KM |
| Noel Park Primary School | Academy Sponsor Led | Outstanding | 0.61 KM |
| Woodside High School | Academy Converter | Outstanding | 0.69 KM |
| Belmont Infant School | Community School | Good | 0.79 KM |
Images
Nearby Streets
| Name | Average Price | Average Sqft | Distance |
|---|---|---|---|
| Erin Mews | £ 650,000 | 0 | 0.00 KM |
| Elm Road | £ 525,000 | 0 | 0.00 KM |
| Liberty Mews | £ 0 | 0 | 0.00 KM |
| Coldham Court | £ 300,000 | 0 | 0.00 KM |
| Acacia Road | £ 0 | 0 | 0.00 KM |
Nearby Transport
| Name | NLC | TLC | Distance |
|---|---|---|---|
| Hornsey | 6015 | HRN | 1.96 KM |
| Harringay Green Lanes | 7401 | HRY | 2.30 KM |
| Harringay | 6012 | HGY | 2.40 KM |
| Alexandra Palace | 6025 | AAP | 2.41 KM |
| Palmers Green | 6021 | PAL | 2.64 KM |
Nearby Listings
| Address | Price | Type | Score | Distance |
|---|---|---|---|---|
| Gladstone Avenue, Wood Green, London, N22 | £ 650,000 | BUY | 6 / 10 | 0.04 KM |
| Farrant Avenue, London, N22 | £ 520,000 | BUY | 6 / 10 | 0.04 KM |
| Gladstone Avenue, Noel Park London N22 | £ 650,000 | BUY | 8 / 10 | 0.06 KM |
| Gladstone Avenue, London, N22 | £ 650,000 | BUY | 6 / 10 | 0.07 KM |
| Morley Avenue, Wood Green, N22 | £ 550,000 | BUY | 7 / 10 | 0.08 KM |
Nearby Properties
| Address | Price | Distance |
|---|---|---|
| 194 Farrant Avenue | £ 100,000 | 0.02 KM |
| 177 Farrant Avenue | £ 355,000 | 0.02 KM |
| 183 Farrant Avenue | £ 259,000 | 0.02 KM |
| 150 Farrant Avenue | £ 184,500 | 0.02 KM |
| 173 Farrant Avenue | £ 425,000 | 0.02 KM |