Maple Close, Ash Vale, GU12
By Bridges Estate Agents
£ 325,000
Reviews
3 out of 5 stars
Bridges Estate Agents says ..
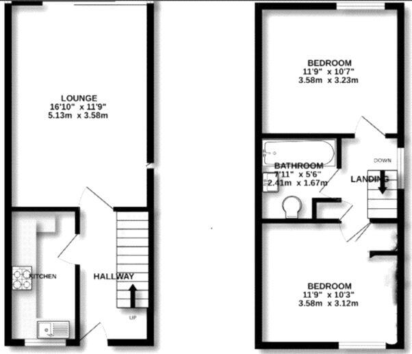
Nestled in the well connected Avondale Estate, this two bedroom end of terrace home with no onward chain offers excellent potential for first time buyers or investors. The ground floor features a practical kitchen with wood effect units and integrated oven, plus a spacious lounge with slidin...
Property Oracle says ..
This end-of-terrace property in Ash Vale offers a blend of convenient location and potential. Its proximity to schools and transportation, including Ash Vale station, enhances its appeal for commuters and families. While the property is in reasonable condition, there’s room for cosmetic improvements, particularly in the bathroom and kitchen, allowing for personalisation and added value. The inclusion of a garden provides valuable outdoor space. Considering the size and location, the asking price of £325,000 appears to be in line with the local market. Overall, this property presents a solid opportunity for buyers seeking a well-connected home with scope for enhancement.
Therefore, we give this property 6 / 10. *Disclaimer: This is our option and does constitute a recommendation or financial advice. Do your own research. *
- Price
- 7
- Condition
- 6
- Location
- 7
- Land
- 7
- Bedrooms
- 2
- Bathrooms
- 1
- Sqft (est)
- 485.71
The heatmap indicates the level of crime in the area. The color of the heatmap indicates the crime severity and recency.
Metrics Year-on-Year
- Average area value
- 325,000.00 £Increased by 41.85 %
- Est sale value
- 145,227.29 £Increased by 32.30 %
- Average area rental value
- 473.00 £/moDecreased by 55.08 %
- Est letting value
- 0.00 £/moDecreased by 100.00 %
- Est rental Yield
- 1.75 %Decreased by 68.30 %
- Crime Rate
- 13.00 %Unchanged by 0.00 %
Agent Activity
Bridges Estate Agents created the listing.
Nearby Schools
| Name | Type | Ofsted | Distance |
|---|---|---|---|
| Holly Lodge Primary Academy | Academy Converter | Good | 0.97 KM |
| Shawfield Primary School | Community School | Good | 1.76 KM |
| Sycamore Children'S Centre | Children's Centre | 2.09 KM | |
| South Farnborough Infant School | Community School | Outstanding | 2.10 KM |
| South Farnborough Junior School | Community School | Outstanding | 2.22 KM |
Images
Nearby Streets
| Name | Average Price | Average Sqft | Distance |
|---|---|---|---|
| Newfield Road | £ 0 | 0 | 0.00 KM |
| Enterprise Estate | £ 0 | 0 | 0.00 KM |
| Station Approach | £ 238,333 | 0 | 0.00 KM |
| Denton Close | £ 0 | 0 | 0.00 KM |
| Stirling Close | £ 475,000 | 0 | 0.00 KM |
Nearby Transport
| Name | NLC | TLC | Distance |
|---|---|---|---|
| Ash Vale | 5547 | AHV | 0.45 KM |
| North Camp | 5636 | NCM | 0.91 KM |
| Ash | 5641 | ASH | 2.67 KM |
| Farnborough North | 5688 | FNN | 4.06 KM |
| Farnborough (Main) | 5521 | FNB | 4.48 KM |
Nearby Listings
| Address | Price | Type | Score | Distance |
|---|---|---|---|---|
| Maple Close, Ash Vale, GU12 | £ 325,000 | BUY | 6 / 10 | 0.00 KM |
| Maple Close, Ash Vale, Surrey, GU12 | £ 350,000 | BUY | 5 / 10 | 0.00 KM |
| Maple Close, Ash Vale, Surrey, GU12 | £ 325,000 | BUY | Unknown | 0.00 KM |
| Maple Close, Ash Vale, Surrey, GU12 | £ 375,000 | BUY | 6 / 10 | 0.06 KM |
| Sycamore Drive, Ash Vale, Surrey, GU12 | £ 270,000 | BUY | 7 / 10 | 0.08 KM |
Nearby Properties
| Address | Price | Distance |
|---|---|---|
| 31 Maple Close | £ 138,000 | 0.01 KM |
| 18 Maple Close | £ 276,500 | 0.01 KM |
| 36 Maple Close | £ 180,000 | 0.01 KM |
| 27 Maple Close | £ 309,950 | 0.01 KM |
| 1 Maple Close | £ 275,000 | 0.01 KM |