Winkworth says ..
Nestled on a quiet, one-way street in South Tottenham is this well assembled, one- bedroom ground floor Victorian conversion with a private garden, within close proximity to Seven Sisters and Downhills Park. Sols Agent.
Property Oracle says ..
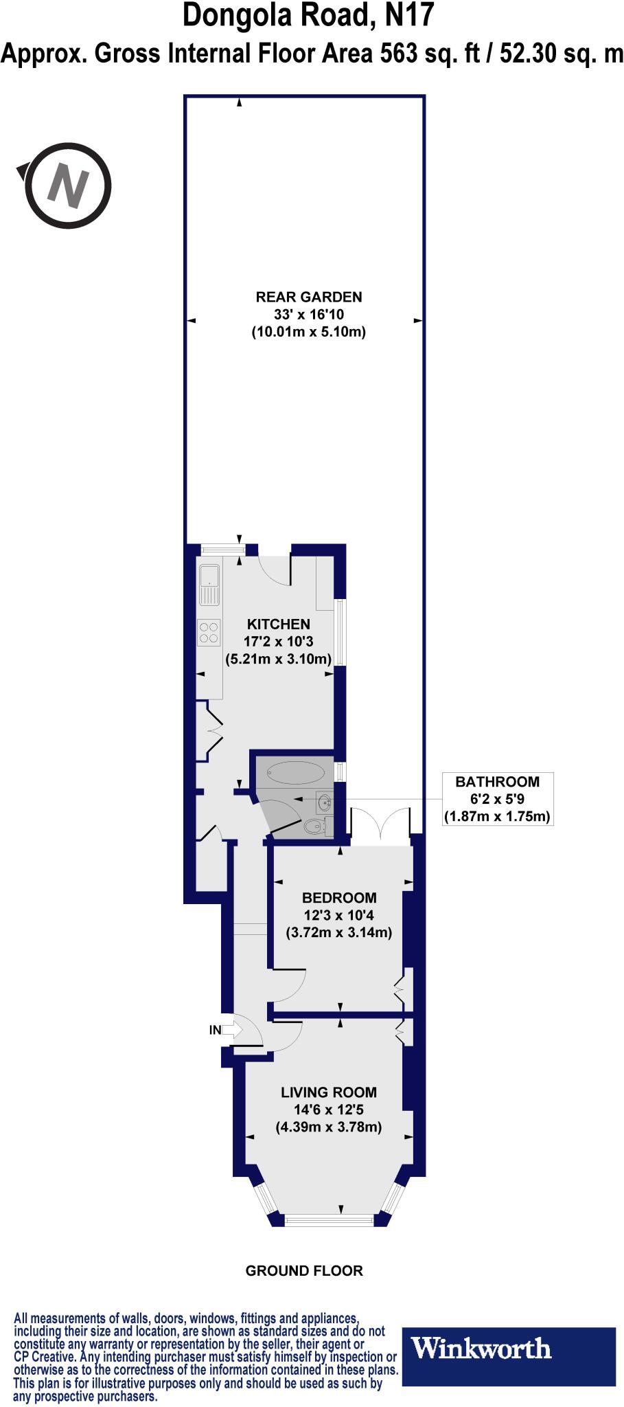
This property is a well-presented one bedroom apartment located on Dongola Road in the Bruce Grove area of Haringey. The apartment benefits from a modern kitchen and bathroom, as well as a private rear garden. The property is located close to several transport links, including Seven Sisters and Bruce Grove Overground stations, and is within walking distance of several primary schools. While the property is smaller than the average for the area (563 sqft vs 861 sqft), the list price of £435,000 is comparable to other one-bedroom apartments in the area. The average price per sqft in the area is £575, and this property is priced slightly below this average, which may indicate good value for money. However, more information on the property’s condition and the size of the garden would be needed to provide a more comprehensive analysis.
Therefore, we give this property 7 / 10. *Disclaimer: This is our option and does constitute a recommendation or financial advice. Do your own research. *
- Price
- 7
- Condition
- 8
- Location
- 9
- Land
- 7
- Bedrooms
- 1
- Bathrooms
- 1
- Sqft (est)
- 563.00
The heatmap indicates the level of crime in the area. The color of the heatmap indicates the crime severity and recency.
Metrics Year-on-Year
- Average area value
- 486,429.00 £Decreased by 9.62 %
- Est sale value
- 377,773.00 £Decreased by 5.89 %
- Average area rental value
- 1,944.00 £/moDecreased by 2.85 %
- Est letting value
- 1,126.00 £/moUnchanged by 0.00 %
- Est rental Yield
- 4.80 %Increased by 7.62 %
- Crime Rate
- 7.00 %Unchanged by 0.00 %
Agent Activity
Winkworth created the listing.
Nearby Schools
| Name | Type | Ofsted | Distance |
|---|---|---|---|
| Broadwaters Children'S Centre | Children's Centre | 0.57 KM | |
| The Willow Primary School | Community School | Outstanding | 0.66 KM |
| The Brook Special Primary School | Community Special School | Requires improvement | 0.76 KM |
| Harris Primary Academy Philip Lane | Academy Sponsor Led | Outstanding | 0.89 KM |
| Bruce Grove Primary School | Community School | Good | 0.91 KM |
Images
Nearby Streets
| Name | Average Price | Average Sqft | Distance |
|---|---|---|---|
| Fairweather Close | £ 0 | 0 | 0.00 KM |
| Lawrence Road | £ 471,875 | 0 | 0.00 KM |
| Hastings Road | £ 0 | 0 | 0.00 KM |
| Freedom Road | £ 200,000 | 0 | 0.00 KM |
| Portland Place | £ 325,000 | 0 | 0.00 KM |
Nearby Transport
| Name | NLC | TLC | Distance |
|---|---|---|---|
| Seven Sisters | 6931 | SVS | 1.06 KM |
| Bruce Grove | 6958 | BCV | 1.17 KM |
| South Tottenham | 7404 | STO | 1.43 KM |
| Stamford Hill | 6968 | SMH | 1.83 KM |
| White Hart Lane | 6956 | WHL | 1.89 KM |
Nearby Listings
| Address | Price | Type | Score | Distance |
|---|---|---|---|---|
| Dongola Road, London, N17 | £ 435,000 | BUY | 7 / 10 | 0.00 KM |
| Dongola Road, London, N17 | £ 765,000 | BUY | Unknown | 0.01 KM |
| Dongola Road, Tottenham | £ 735,000 | BUY | 7 / 10 | 0.05 KM |
| Dongola Road, London, N17 | £ 275,000 | BUY | 6 / 10 | 0.05 KM |
| Dongola Road, London, N17 | £ 385,000 | BUY | 6 / 10 | 0.08 KM |
Nearby Properties
| Address | Price | Distance |
|---|---|---|
| 10 Dongola Road | £ 150,000 | 0.02 KM |
| 64b Dongola Road | £ 150,000 | 0.02 KM |
| 22 Dongola Road | £ 245,000 | 0.02 KM |
| 108 Dongola Road | £ 132,500 | 0.02 KM |
| 104 Dongola Road | £ 655,000 | 0.02 KM |