WI
Skipton Road, Steeton
By Wilman & Lodge
£ 325,000
Wilman & Lodge says ..
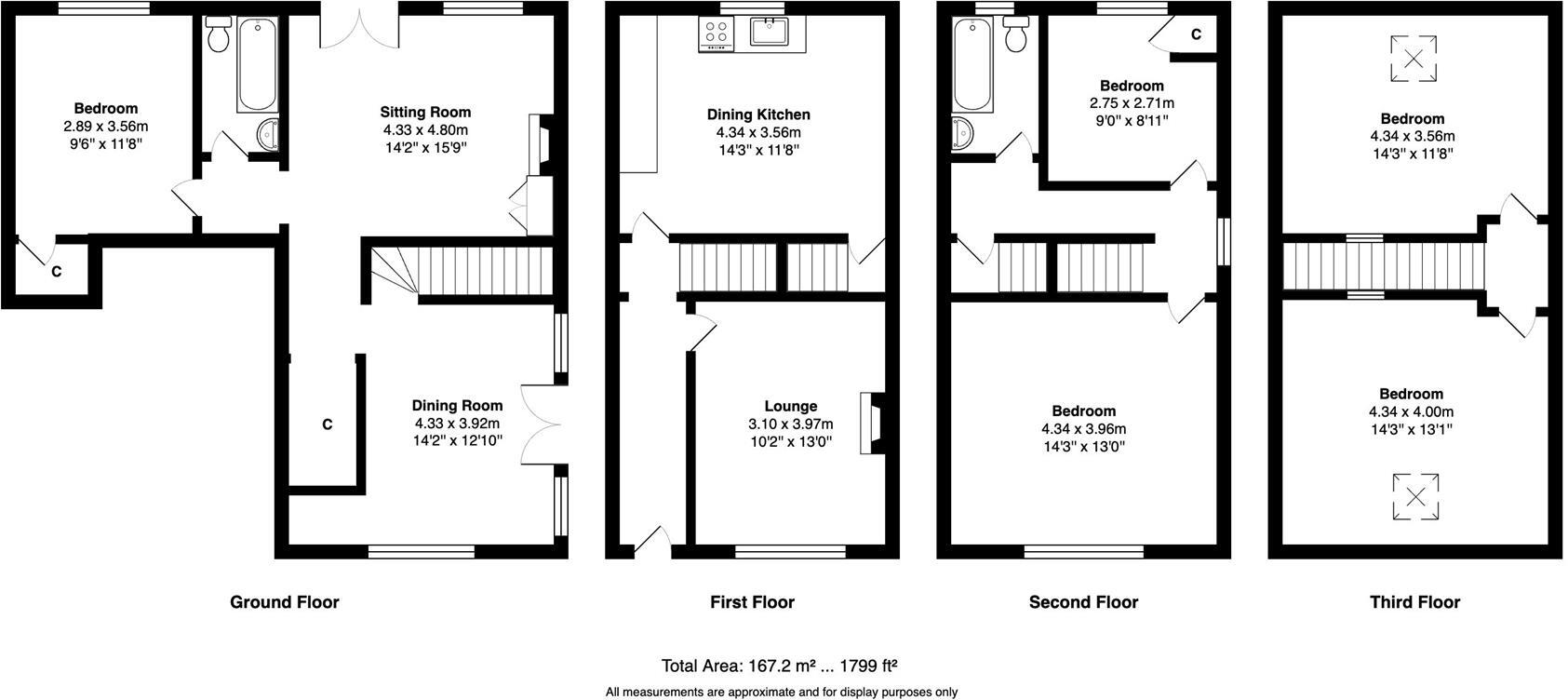
This well-established, FIVE-BEDROOM, SEMI-DETACHED home, comes complete with a fully functional ONE-BEDROOM, GROUND-FLOOR ANNEX, ATTRACTIVE GARDENS, OFF ROAD PARKING and is ideally located in the SOUGHT-AFTER VILLAGE of Steeton.
- Bedrooms
- 5
- Bathrooms
- 2
The heatmap indicates the level of crime in the area. The color of the heatmap indicates the crime severity and recency.
Metrics Year-on-Year
- Average area value
- 422,431.00 £Increased by 29.36 %
- Average area rental value
- 902.00 £/moDecreased by 19.75 %
- Est rental Yield
- 2.56 %Decreased by 38.01 %
- Crime Rate
- 17.00 %Unchanged by 0.00 %
from 326,550.00 £
from 1,124.00 £/mo
from 4.13 %
from 17.00 %
Agent Activity
Wilman & Lodge created the listing.
Nearby Schools
| Name | Type | Ofsted | Distance |
|---|---|---|---|
| Steeton Primary School | Community School | Good | 0.41 KM |
| Daisy Chain Children'S Centre | Children's Centre Linked Site | 2.07 KM | |
| Silsden Primary School | Community School | Good | 2.26 KM |
| Eastburn Junior And Infant School | Community School | Good | 2.43 KM |
| Laycock Primary School | Academy Converter | 3.31 KM |
Images
Nearby Streets
| Name | Average Price | Average Sqft | Distance |
|---|---|---|---|
| Ashgrove | £ 169,950 | 0 | 0.00 KM |
| Summer Hill Lane | £ 0 | 0 | 0.00 KM |
| Ramstone Close | £ 0 | 0 | 0.00 KM |
| Riverside Road | £ 0 | 0 | 0.00 KM |
| Fitch Drive | £ 330,000 | 0 | 0.00 KM |
Nearby Transport
| Name | NLC | TLC | Distance |
|---|---|---|---|
| Steeton And Silsden | 8469 | SON | 0.83 KM |
| Keighley | 8468 | KEI | 6.30 KM |
| Cononley | 8470 | CEY | 7.15 KM |
Nearby Listings
| Address | Price | Type | Score | Distance |
|---|---|---|---|---|
| Skipton Road, Steeton | £ 325,000 | BUY | Unknown | 0.00 KM |
| Elmsley Street, Steeton | £ 84,950 | BUY | 6 / 10 | 0.03 KM |
| Elmsley Street, Steeton | £ 87,500 | BUY | 6 / 10 | 0.03 KM |
| 1 Croft Street, Steeton BD20 6PB | £ 165,000 | BUY | 7 / 10 | 0.04 KM |
| Elmsley Street, Steeton, BD20 | £ 280,000 | BUY | 7 / 10 | 0.07 KM |
Nearby Properties
| Address | Price | Distance |
|---|---|---|
| 1 Church Close | £ 180,000 | 0.04 KM |
| 28 Skipton Road | £ 90,000 | 0.06 KM |
| 43 Elmsley Street | £ 199,950 | 0.06 KM |
| 15 Elmsley Street | £ 112,000 | 0.06 KM |
| 41 Elmsley Street | £ 240,000 | 0.06 KM |