Theydons says ..
Offered chain free and located just a short stroll from the pedestrian-friendly Francis Road, is this charming two-bedroom terraced home. You'll find an array of independent eateries, cosy cafes, and boutique shops right on your doorstep, making everyday life a delight. Exceptional transport links,
Property Oracle says ..
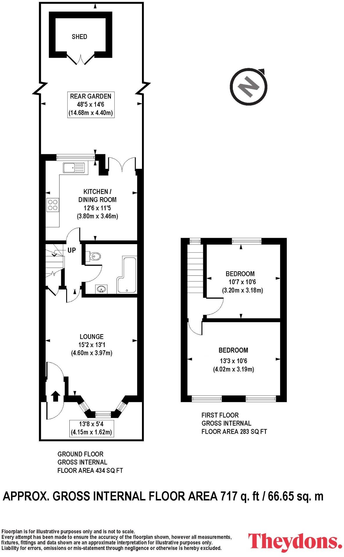
This is a two-bedroom terraced house on Oakdale Road, Leytonstone. The property features a modern kitchen and bathroom, and a garden. While the property is in a good location with access to amenities and schools, the asking price appears high compared to similar properties in the area. Some rooms could benefit from redecoration to enhance the property’s appeal. Overall, it’s a traditional property with some modern updates.
Therefore, we give this property 5 / 10. *Disclaimer: This is our option and does constitute a recommendation or financial advice. Do your own research. *
- Price
- 3
- Condition
- 7
- Location
- 7
- Land
- 6
- Bedrooms
- 2
- Bathrooms
- 1
- Sqft (est)
- 2,055.26
The heatmap indicates the level of crime in the area. The color of the heatmap indicates the crime severity and recency.
Metrics Year-on-Year
- Average area value
- 534,286.00 £Decreased by 9.44 %
- Est sale value
- 1,319,476.92 £Decreased by 8.55 %
- Average area rental value
- 1,869.00 £/moDecreased by 4.30 %
- Est letting value
- 4,110.52 £/moUnchanged by 0.00 %
- Est rental Yield
- 4.20 %Increased by 5.79 %
- Crime Rate
- 4.00 %Unchanged by 0.00 %
Agent Activity
Theydons created the listing.
Nearby Schools
| Name | Type | Ofsted | Distance |
|---|---|---|---|
| Newport School | Community School | Outstanding | 0.31 KM |
| Norlington School And 6Th Form | Academy Converter | Good | 0.51 KM |
| Noor Ul Islam Primary School | Other Independent School | Good | 0.54 KM |
| Connaught School For Girls | Academy Converter | Good | 0.74 KM |
| Mayville Primary School | Academy Converter | Good | 0.85 KM |
Images
Nearby Streets
| Name | Average Price | Average Sqft | Distance |
|---|---|---|---|
| Sunal Court | £ 0 | 0 | 0.00 KM |
| Albert Road | £ 475,000 | 0 | 0.00 KM |
| St Mary's Road | £ 866,667 | 0 | 0.00 KM |
| Scarborough Road | £ 725,000 | 0 | 0.00 KM |
| Hollydown Way | £ 0 | 0 | 0.00 KM |
Nearby Transport
| Name | NLC | TLC | Distance |
|---|---|---|---|
| Leytonstone High Road | 7403 | LER | 1.06 KM |
| Leyton Midland Road | 7402 | LEM | 1.09 KM |
| Maryland | 6970 | MYL | 2.01 KM |
| Stratford International | 7222 | SFA | 2.17 KM |
| Stratford | 6969 | SRA | 2.34 KM |
Nearby Listings
| Address | Price | Type | Score | Distance |
|---|---|---|---|---|
| Oakdale Road, Leytonstone, E11 | £ 625,000 | BUY | 5 / 10 | 0.00 KM |
| Oakdale Road, Leytonstone, E11 | £ 450,000 | BUY | 6 / 10 | 0.02 KM |
| Oakdale Road, Leytonstone, E11 | £ 450,000 | BUY | 7 / 10 | 0.03 KM |
| Pearcroft Road, London, E11 | £ 350,000 | BUY | 6 / 10 | 0.07 KM |
| Pearcroft Road, Leyton, London, E11 | £ 375,000 | BUY | 6 / 10 | 0.08 KM |
Nearby Properties
| Address | Price | Distance |
|---|---|---|
| 118 Oakdale Road | £ 832,000 | 0.00 KM |
| 58 Oakdale Road | £ 369,000 | 0.00 KM |
| 40 Oakdale Road | £ 245,000 | 0.00 KM |
| 108 Oakdale Road | £ 625,000 | 0.00 KM |
| 90 Oakdale Road | £ 641,000 | 0.00 KM |