Jubilee Lodge, Crookham Road, Fleet
By Waterfords
£ 250,000
Reviews
3 out of 5 stars
Waterfords says ..
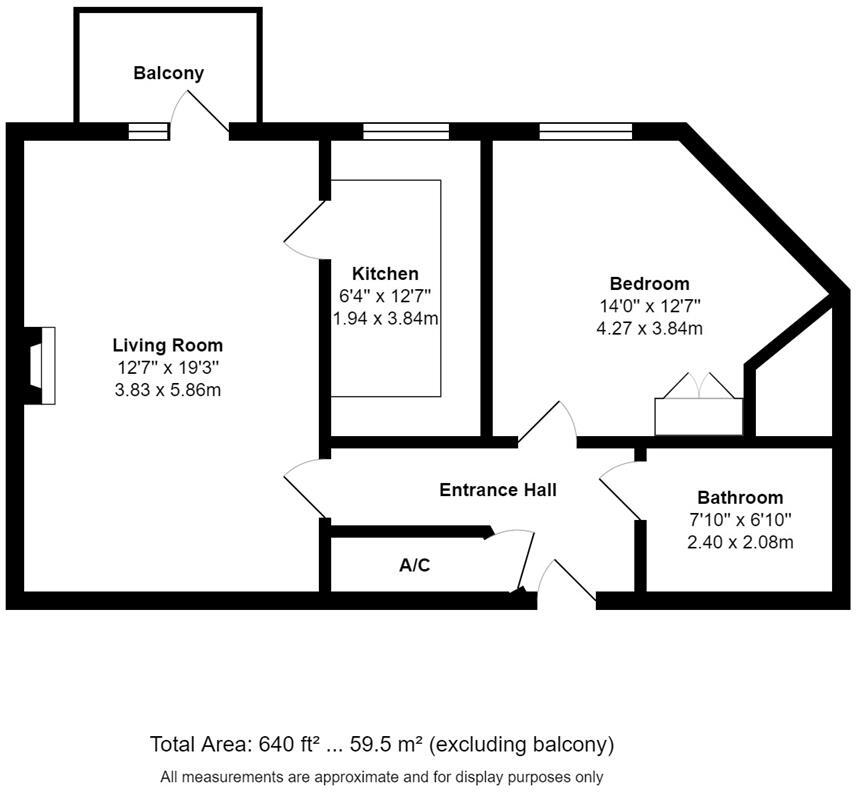
This stylish development by Churchill Living offers a beautifully designed 1 bedroom apartment with private balcony just a short stroll from Fleet High Street. With a welcoming owners’ lounge, landscaped gardens, guest suite, and Lodge Manager on site, it's the perfect place to enjoy an independe...
Property Oracle says ..
Jubilee Lodge is a well-presented apartment located in the popular Fleet Central area. The property is in good condition, with modern fixtures and fittings. It benefits from communal gardens and is conveniently located close to local amenities, schools, and transportation. The apartment is competitively priced compared to other properties in the area, making it an attractive option for potential buyers.
Therefore, we give this property 7 / 10. *Disclaimer: This is our option and does constitute a recommendation or financial advice. Do your own research. *
- Price
- 7
- Condition
- 8
- Location
- 7
- Land
- 6
- Bedrooms
- 1
- Bathrooms
- 1
- Sqft (est)
- 555.24
The heatmap indicates the level of crime in the area. The color of the heatmap indicates the crime severity and recency.
Metrics Year-on-Year
- Average area value
- 399,167.00 £Increased by 7.59 %
- Est sale value
- 205,438.80 £Increased by 3.64 %
- Average area rental value
- 1,292.00 £/moIncreased by 3.03 %
- Est letting value
- 555.24 £/moUnchanged by 0.00 %
- Est rental Yield
- 3.88 %Decreased by 4.43 %
- Crime Rate
- 10.00 %Unchanged by 0.00 %
Agent Activity
Waterfords created the listing.
Nearby Schools
| Name | Type | Ofsted | Distance |
|---|---|---|---|
| Fleet Fireflies Children'S Centre | Children's Centre Linked Site | 0.19 KM | |
| Heatherside Infant School | Community School | Outstanding | 0.69 KM |
| Heatherside Junior School | Community School | Outstanding | 0.69 KM |
| Court Moor School | Community School | Good | 0.71 KM |
| All Saints Church Of England Aided Junior School | Voluntary Aided School | Good | 1.11 KM |
Images
Nearby Streets
| Name | Average Price | Average Sqft | Distance |
|---|---|---|---|
| Walton Close | £ 304,465 | 0 | 0.00 KM |
| Fraynes Court | £ 0 | 0 | 0.00 KM |
| Alexis Court | £ 0 | 0 | 0.00 KM |
| Badgers Close | £ 0 | 0 | 0.00 KM |
| Fleet Football Club | £ 0 | 0 | 0.00 KM |
Nearby Transport
| Name | NLC | TLC | Distance |
|---|---|---|---|
| Fleet | 5522 | FLE | 2.28 KM |
| Winchfield | 5528 | WNF | 6.75 KM |
| Sandhurst (Berks) | 5646 | SND | 9.03 KM |
| Farnham | 5545 | FNH | 9.40 KM |
| Blackwater | 5625 | BAW | 9.80 KM |
Nearby Listings
| Address | Price | Type | Score | Distance |
|---|---|---|---|---|
| Jubilee Lodge, Crookham Road, Fleet | £ 250,000 | BUY | 7 / 10 | 0.00 KM |
| 2 Bed Apartment, Jubilee Lodge, Fleet | £ 335,265 | BUY | 6 / 10 | 0.00 KM |
| 1 Bed Apartment, Jubilee Lodge, Fleet | £ 283,500 | BUY | 7 / 10 | 0.00 KM |
| Crookham Road, Fleet | £ 409,950 | BUY | 6 / 10 | 0.03 KM |
| Crookham Road, Fleet | £ 414,950 | BUY | 6 / 10 | 0.04 KM |
Nearby Properties
| Address | Price | Distance |
|---|---|---|
| 15 Crookham Road | £ 360,000 | 0.05 KM |
| 33 Crookham Road | £ 805,000 | 0.12 KM |
| 21 Crookham Road | £ 345,000 | 0.12 KM |
| 25 Glen Road | £ 822,000 | 0.15 KM |
| 29 Glen Road | £ 318,000 | 0.15 KM |