41 Allanton Avenue, Paisley, PA1 3BN
CO

41 Allanton Avenue, Paisley, PA1 3BN

By Cochran Dickie Estate Agency

£ 295,000

Reviews

3 out of 5 stars

Cochran Dickie Estate Agency says ..

Semi Detached Home | Very Desirable Address | Flexible Layout | Driveway | Popular Local Schooling

Property Oracle says ..

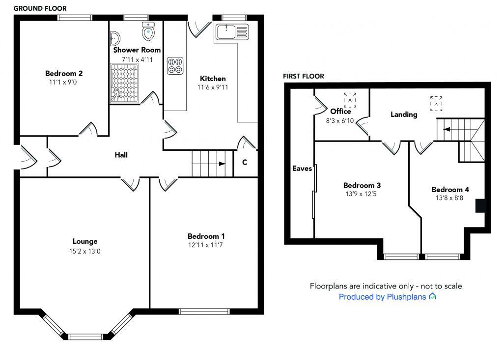
This property is a semi-detached bungalow located in Paisley, Renfrewshire. It has 4 bedrooms, 1 bathroom, and a total area of 914 sqft. The property benefits from a good sized garden. The asking price is £295,000, which is slightly higher than the average price of £254,285 for similar properties in the area. However, the average price per sqft in the area is £295, and this property is slightly larger than average at 914 sqft. The property appears to be in good condition and has had some modernisation. Transport links are good with several train stations within a reasonable distance. While there is no information provided on nearby schools, the location appears to be reasonably convenient.

Therefore, we give this property 7 / 10. *Disclaimer: This is our option and does constitute a recommendation or financial advice. Do your own research. *

Price
7
Condition
8
Location
7
Land
7
Bedrooms
4
Bathrooms
1
Sqft (est)
914.00

The heatmap indicates the level of crime in the area. The color of the heatmap indicates the crime severity and recency.

Metrics Year-on-Year

Average area value
250,000.00 £
Decreased by 10.99 %
from 280,882.00 £
Est sale value
283,340.00 £
Decreased by 0.96 %
from 286,082.00 £
Average area rental value
900.00 £/mo
Decreased by 18.03 %
from 1,098.00 £/mo
Est letting value
914.00 £/mo
Unchanged by 0.00 %
from 914.00 £/mo
Est rental Yield
4.32 %
Decreased by 7.89 %
from 4.69 %
Crime Rate
0.00 %
from 0.00 %

Agent Activity

  • Cochran Dickie Estate Agency created the listing.

Images

Primary Property Image Property Image 2 Property Image 3 Property Image 4 Property Image 5 Property Image 6 Property Image 7 Property Image 8 Property Image 9 Property Image 10 Property Image 11 Property Image 12 Property Image 13 Property Image 14 Property Image 15 Property Image 16 Property Image 17

Nearby Streets

NameAverage PriceAverage SqftDistance
Crookston Drive £ 000.00 KM
Killearn Drive £ 300,00000.00 KM
Ralston Drive £ 230,00000.00 KM
Kelhead Avenue £ 135,00000.00 KM
Crookstonhill Path £ 159,99900.00 KM

Nearby Transport

NameNLCTLCDistance
Crookston9628CKT0.77 KM
Hillington West9630HLW1.23 KM
Hillington East9676HLE2.06 KM
Mosspark9632MPK2.57 KM
Hawkhead9634HKH3.08 KM

Nearby Listings

AddressPriceTypeScoreDistance
41 Allanton Avenue, Paisley, PA1 3BN £ 295,000BUY7 / 100.00 KM
47 Allanton Avenue, Paisley, PA1 3BN £ 345,000BUY7 / 100.00 KM
93 Crookston Drive, Paisley, PA1 3DB £ 350,000BUY7 / 100.14 KM
Auchmannoch Avenue, Paisley, PA1 £ 350,000BUY7 / 100.20 KM
Duchray Drive, Ralston, Paisley £ 295,000BUYUnknown0.26 KM