Heritage Estates says ..
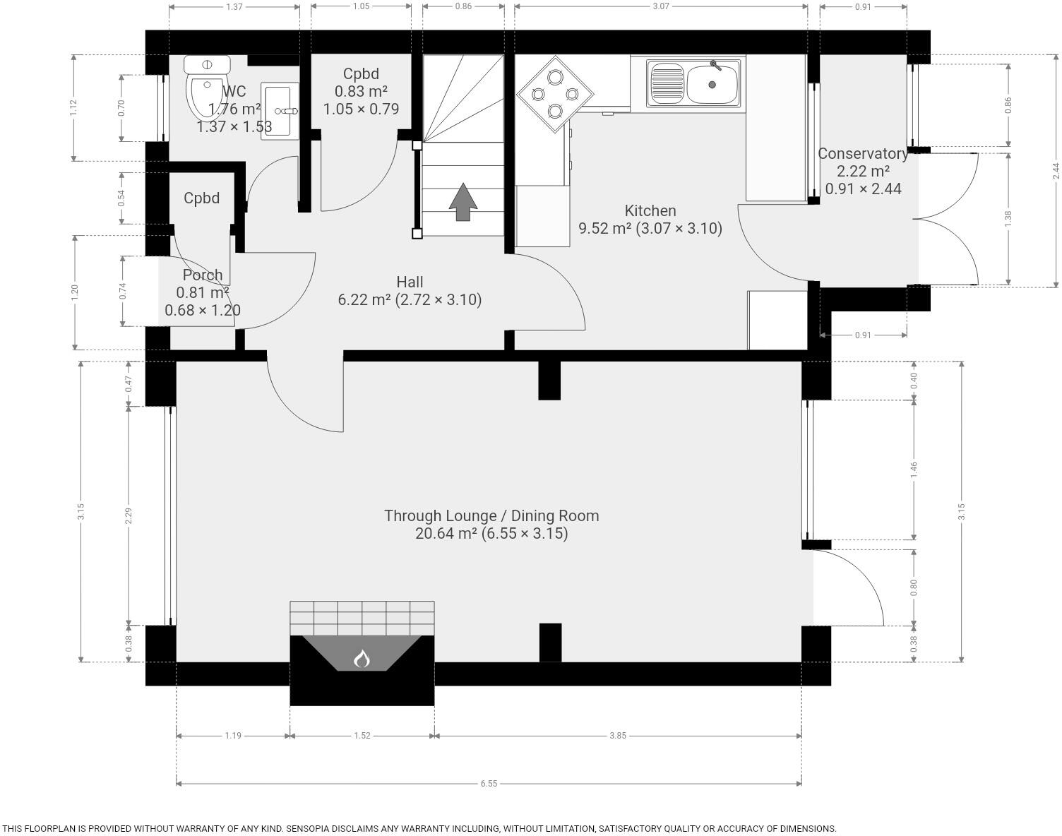
With a guide price of £330,000 to £340,000, Heritage Estates are delighted to offer for sale this terraced house situated in a sought-after location just off Valley Drive, Gravesend This 3-bed family home offers excellent access onto the A2, leading to the M2, M25 and M20 motorways. Private (cont.)
Property Oracle says ..
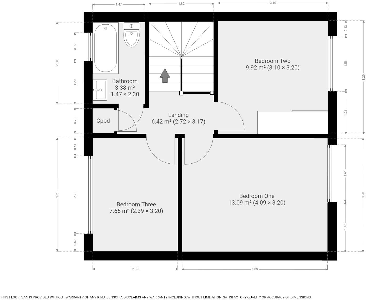
This three-bedroom house on Mackenzie Way, Gravesend, presents a mixed bag of advantages and disadvantages. Positively, its location offers convenient access to schools with strong Ofsted ratings and multiple train stations, making it appealing to families and commuters. The property itself boasts a comfortable living space and a small, easy-to-maintain garden. However, the property would benefit from modernisation. The kitchen and bathrooms look somewhat dated, and a refurbishment in these areas would likely increase the overall value. The limited size of the plot is another factor to consider. The list price is within the reasonable range for the area given the current market conditions in Gravesend, but potential buyers should carefully assess any renovation costs required.
Therefore, we give this property 6 / 10. *Disclaimer: This is our option and does constitute a recommendation or financial advice. Do your own research. *
- Price
- 7
- Condition
- 6
- Location
- 7
- Land
- 4
- Bedrooms
- 3
- Bathrooms
- 2
- Sqft (est)
- 663.81
The heatmap indicates the level of crime in the area. The color of the heatmap indicates the crime severity and recency.
Metrics Year-on-Year
- Average area value
- 287,500.00 £Decreased by 6.63 %
- Est sale value
- 266,851.62 £Increased by 16.52 %
- Average area rental value
- 1,300.00 £/moDecreased by 14.53 %
- Est letting value
- 663.81 £/moUnchanged by 0.00 %
- Est rental Yield
- 5.43 %Decreased by 8.43 %
- Crime Rate
- 5.00 %Unchanged by 0.00 %
Agent Activity
Heritage Estates created the listing.
Nearby Schools
| Name | Type | Ofsted | Distance |
|---|---|---|---|
| Singlewell Primary School | Community School | Good | 0.14 KM |
| Riverview Junior School | Academy Sponsor Led | 1.01 KM | |
| Riverview Infant School | Academy Converter | Good | 1.08 KM |
| Ifield School | Foundation Special School | Outstanding | 1.10 KM |
| King'S Farm Primary School | Community School | Good | 1.19 KM |
Images
Nearby Streets
| Name | Average Price | Average Sqft | Distance |
|---|---|---|---|
| Virginia Pathway | £ 335,000 | 0 | 0.00 KM |
| Hevercourt Cottages | £ 0 | 0 | 0.00 KM |
| Ryecroft | £ 450,000 | 0 | 0.00 KM |
| Valley Drive | £ 0 | 0 | 0.00 KM |
| Hudson Close | £ 0 | 0 | 0.00 KM |
Nearby Transport
| Name | NLC | TLC | Distance |
|---|---|---|---|
| Sole Street | 5126 | SOR | 3.26 KM |
| Gravesend | 5172 | GRV | 3.80 KM |
| Meopham | 5116 | MEP | 4.10 KM |
| Tilbury Town | 7462 | TIL | 6.52 KM |
| Northfleet | 5120 | NFL | 7.59 KM |
Nearby Listings
| Address | Price | Type | Score | Distance |
|---|---|---|---|---|
| Mackenzie Way, Gravesend | £ 330,000 | BUY | 6 / 10 | 0.00 KM |
| Mackenzie Way, Gravesend, DA12 5TY | £ 275,000 | BUY | 7 / 10 | 0.01 KM |
| Thistledown, Gravesend, Kent | £ 192,000 | BUY | Unknown | 0.11 KM |
| Thistledown, Gravesend, Kent | £ 290,000 | BUY | 6 / 10 | 0.11 KM |
| Thistledown, Gravesend, Kent, DA12 | £ 290,000 | BUY | 7 / 10 | 0.11 KM |
Nearby Properties
| Address | Price | Distance |
|---|---|---|
| 256 Mackenzie Way | £ 122,995 | 0.01 KM |
| 240 Mackenzie Way | £ 250,000 | 0.01 KM |
| 220 Mackenzie Way | £ 172,500 | 0.01 KM |
| 224 Mackenzie Way | £ 49,000 | 0.01 KM |
| 232 Mackenzie Way | £ 210,000 | 0.01 KM |