Springhead Parkway, Northfleet, Gravesend
By Acorn
£ 280,000
Reviews
2 out of 5 stars
Acorn says ..
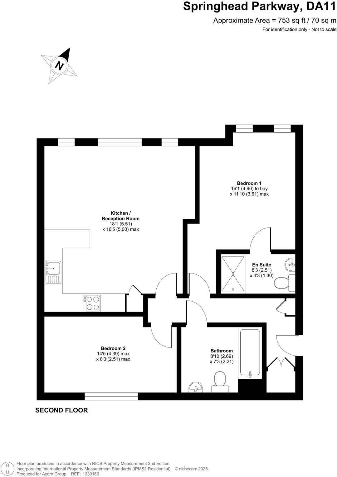
50% SHARED OWNERSHIP £140,000 - OPTION TO BUY 100% IS AVAILABLE AT £280,000 Beautifully Presented Spacious Top Floor Apartment situated within the popular Modern Development of Springhead Parkway. This property features; Allocated Parking, Two Double Bedrooms, Spacious Open...
Property Oracle says ..
This two-bedroom, two-bathroom apartment in Northfleet, Gravesend, is situated on Springhead Parkway, a modern residential development. The property boasts a contemporary interior design, with a modern kitchen and bathrooms. The apartment appears well-maintained and in good condition, based on the images provided. A key advantage is its proximity to Ebbsfleet International Station, offering excellent transport links. The nearby Springhead Park Primary School adds to its family-friendly appeal. However, the property lacks a garden or outdoor space, a common feature of apartment living. The price seems competitive when compared with other similar apartments in the area, although a precise price-per-square-foot analysis is not possible due to the lack of consistent data in the provided information. Overall, this apartment presents a reasonable option for those seeking modern living with convenient transport links and proximity to a primary school. Further investigation into local amenities and a precise square footage comparison would provide a more comprehensive assessment.
Therefore, we give this property 5 / 10. *Disclaimer: This is our option and does constitute a recommendation or financial advice. Do your own research. *
- Price
- 7
- Condition
- 8
- Location
- 7
- Land
- 1
- Bedrooms
- 2
- Bathrooms
- 2
- Sqft (est)
- 753.47
The heatmap indicates the level of crime in the area. The color of the heatmap indicates the crime severity and recency.
Metrics Year-on-Year
- Average area value
- 302,655.00 £Increased by 6.63 %
- Est sale value
- 265,974.91 £Increased by 4.75 %
- Average area rental value
- 1,528.00 £/moIncreased by 7.53 %
- Est letting value
- 753.47 £/moUnchanged by 0.00 %
- Est rental Yield
- 6.06 %Increased by 0.83 %
- Crime Rate
- 22.00 %Unchanged by 0.00 %
Agent Activity
Acorn marked this listing as sold.
Acorn created the listing.
Nearby Schools
| Name | Type | Ofsted | Distance |
|---|---|---|---|
| Springhead Park Primary School | Free Schools | 0.18 KM | |
| St Joseph'S Catholic Primary School, Northfleet | Academy Converter | 1.00 KM | |
| Northfleet School For Girls | Foundation School | Good | 1.15 KM |
| Painters Ash Primary School | Foundation School | Good | 1.24 KM |
| Little Gems Children'S Centre | Children's Centre | 1.36 KM |
Images
Nearby Streets
| Name | Average Price | Average Sqft | Distance |
|---|---|---|---|
| Orchard Road | £ 0 | 0 | 0.00 KM |
| Viking Road | £ 425,000 | 0 | 0.00 KM |
| Saxon Close | £ 425,000 | 0 | 0.00 KM |
| York Road | £ 250,000 | 0 | 0.00 KM |
| Buckingham Road | £ 0 | 0 | 0.00 KM |
Nearby Transport
| Name | NLC | TLC | Distance |
|---|---|---|---|
| Ebbsfleet International | 5566 | EBD | 1.60 KM |
| Northfleet | 5120 | NFL | 1.63 KM |
| Swanscombe | 5156 | SWM | 3.00 KM |
| Gravesend | 5172 | GRV | 4.03 KM |
| Tilbury Town | 7462 | TIL | 4.14 KM |
Nearby Listings
| Address | Price | Type | Score | Distance |
|---|---|---|---|---|
| Springhead Parkway, Northfleet, Gravesend, Kent, DA11 | £ 77,000 | BUY | 5 / 10 | 0.00 KM |
| Springhead Parkway, Northfleet, Gravesend, Kent, DA11 | £ 260,000 | BUY | 5 / 10 | 0.00 KM |
| Springhead Parkway, Northfleet, Gravesend | £ 280,000 | BUY | 5 / 10 | 0.00 KM |
| Springhead Parkway, Northfleet, Gravesend, Kent, DA11 | £ 195,000 | BUY | 6 / 10 | 0.00 KM |
| Springhead Parkway, Northfleet, Gravesend, Kent, DA11 | £ 175,000 | BUY | 6 / 10 | 0.03 KM |
Nearby Properties
| Address | Price | Distance |
|---|---|---|
| 106 Springhead Parkway | £ 125,000 | 0.04 KM |
| 52 Springhead Parkway | £ 240,000 | 0.04 KM |
| 122 Springhead Parkway | £ 218,600 | 0.04 KM |
| 82 Springhead Parkway | £ 176,000 | 0.04 KM |
| 60 Springhead Parkway | £ 230,000 | 0.04 KM |