Little Cotton Farm, Dartmouth
FR

Little Cotton Farm, Dartmouth

By Freeborns

£ 300,000

Reviews

3 out of 5 stars

Freeborns says ..

This Retirement Living PLUS development will offer one and two bedroom properties for sale in Dartmouth. All apartments will have either a balcony or patios on the ground floor. The retirement community will share luxurious communal facilities and services, like a bistro, to make life easier. The...

Property Oracle says ..

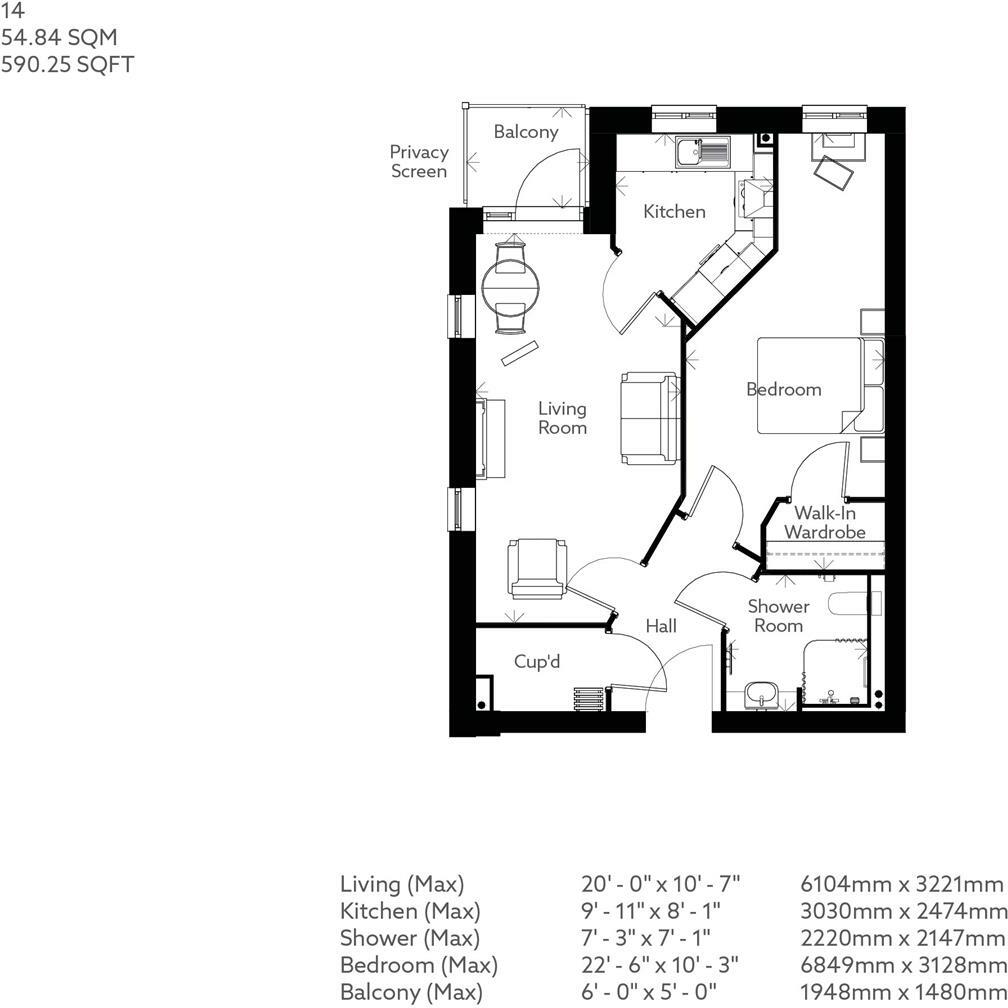
Little Cotton Farm is a modern one bedroom house located in the desirable area of Dartmouth, Devon. The property benefits from a good location, close to several well-regarded schools such as St John The Baptist Roman Catholic Primary School and Dartmouth Academy, both rated as ‘Good’ by Ofsted. While the plot size is small, the property itself is modern and well-presented, appearing to be in excellent condition. The list price of £300,000 is slightly above the average price for the area (£275,043), but considering the modern condition and desirable location, it may represent fair value. However, further analysis of comparable properties with similar features and plot sizes would be beneficial to confirm this.

Therefore, we give this property 6 / 10. *Disclaimer: This is our option and does constitute a recommendation or financial advice. Do your own research. *

Price
7
Condition
10
Location
8
Land
1
Bedrooms
1
Bathrooms
1
Sqft (est)
590.25

The heatmap indicates the level of crime in the area. The color of the heatmap indicates the crime severity and recency.

Metrics Year-on-Year

Average area value
216,225.00 £
Decreased by 4.32 %
from 225,977.00 £
Est sale value
154,645.50 £
Increased by 37.89 %
from 112,147.50 £
Average area rental value
863.00 £/mo
Decreased by 37.87 %
from 1,389.00 £/mo
Est letting value
590.25 £/mo
Unchanged by 0.00 %
from 590.25 £/mo
Est rental Yield
4.79 %
Decreased by 35.09 %
from 7.38 %
Crime Rate
0.00 %
from 0.00 %

Agent Activity

  • Freeborns created the listing.

Nearby Schools

NameTypeOfstedDistance
St John The Baptist Roman Catholic Primary School, DartmouthAcademy ConverterGood1.16 KM
Dartmouth & District Children'S CentreChildren's Centre1.31 KM
Dartmouth AcademyAcademy Sponsor LedGood1.39 KM
Stoke Fleming Community Primary SchoolAcademy Converter2.20 KM
Kingswear Community Primary SchoolAcademy ConverterGood4.34 KM

Images

cam_001.jpg 2662_MGH-PPY_RL_COL_2.jpg MCS_LIFE_RLP_JKING_BISTRO_23.jpeg 2683_BVR_WST_RP_BST.jpg MCS_LIFE_RL_JASK_SMM_GRD_01.jpg 2401_BLN_STR_RL_KCN_01.jpg front cam_002.jpg view 1 - 28-07-23.jpg 2427_EXM_TCL_RP_EXT_02.jpg View 2_RLP Dartmouth.jpg 2334_SLS_MNM_RP_RES_06.jpg 2427_EXM_TCL_RP_BED_01.jpg 2509_CLV_THP_ RL_LVR_05.jpg 2427_EXM_TCL_RP_KCN_01.jpg 2427_EXM_TCL_RP_LVR_01.jpg low res 2660_BLD_NRT_RP_SHW_PRT_13_08.png

Nearby Streets

NameAverage PriceAverage SqftDistance
Poplar Road £ 000.00 KM
Barton Way £ 318,01900.00 KM
Laburnum Avenue £ 000.00 KM
Cotton Road £ 452,66700.00 KM
Collingwood Road £ 000.00 KM

Nearby Listings

AddressPriceTypeScoreDistance
Skylarks, Great Cotton Farm, Dartmouth £ 300,000BUY6 / 100.00 KM
Buntings, Great Cotton Farm, Dartmouth £ 225,000BUY6 / 100.00 KM
Cattle Buildings at Great Cotton Farm, Dartmouth £ 600,000BUY4 / 100.00 KM
Crows Nest, Great Cotton Farm, Dartmouth £ 325,000BUY7 / 100.00 KM
Cotton Road, Dartmouth £ 425,000BUY7 / 100.00 KM

Nearby Properties

AddressPriceDistance
14 Norton View £ 267,5000.68 KM
7 Norton View £ 129,9500.68 KM
3 Norton View £ 198,0000.68 KM
9 Norton View £ 152,5000.68 KM
10 Norton View £ 265,0000.68 KM