Brian Cox says ..
Brian Cox Estate Agents is delighted to offer this spacious private entrance, one bedroom ground floor flat to the market! This apartment is in great condition with is own private terrace. Flooded with natural light, this property is ideally located with excellent transport links, access to ameni...
Property Oracle says ..
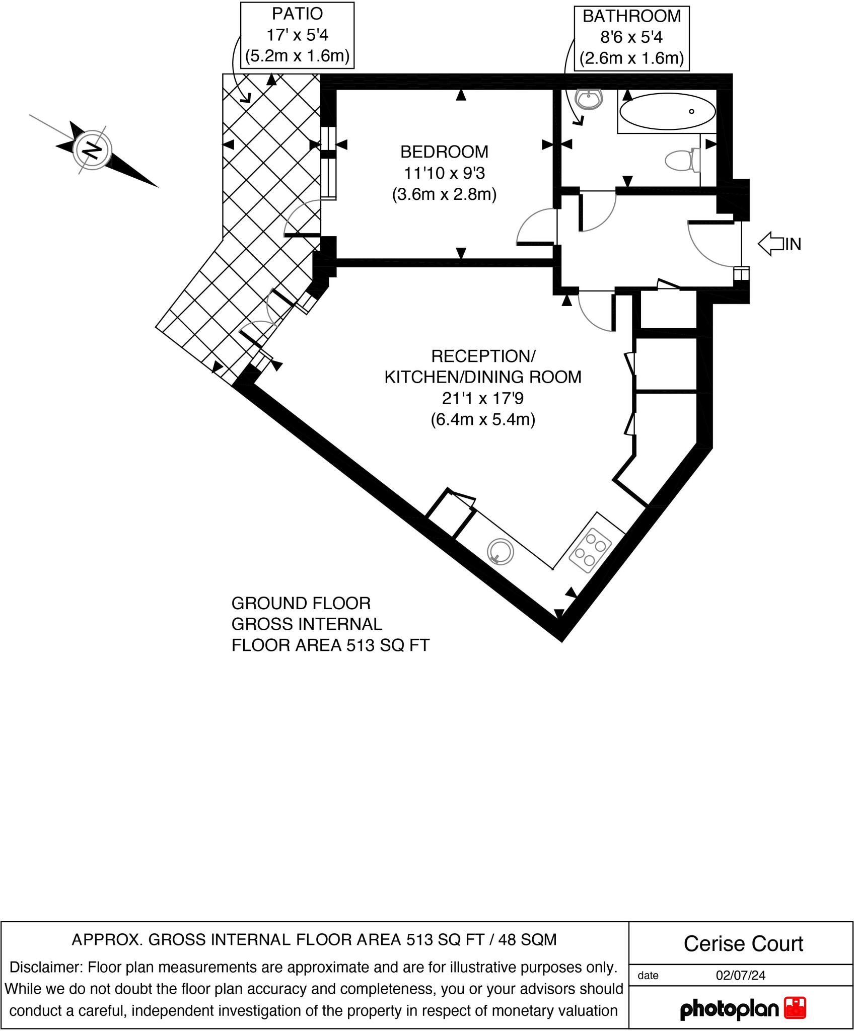
This is a one-bedroom ground floor flat located in Roxbourne, Harrow. The property is in reasonable condition and has a small garden/patio area. The property is located close to local amenities, shops, and transportation links. The property is listed for £229,950, which is below the average price for the area. The flat is 513 sqft which is smaller than the average for the area, this should be taken into consideration.
Therefore, we give this property 6 / 10. *Disclaimer: This is our option and does constitute a recommendation or financial advice. Do your own research. *
- Price
- 7
- Condition
- 7
- Location
- 7
- Land
- 6
- Bedrooms
- 1
- Bathrooms
- 1
- Sqft (est)
- 513.00
The heatmap indicates the level of crime in the area. The color of the heatmap indicates the crime severity and recency.
Metrics Year-on-Year
- Average area value
- 341,429.00 £Increased by 9.95 %
- Est sale value
- 160,569.00 £Decreased by 25.65 %
- Average area rental value
- 875.00 £/moDecreased by 18.53 %
- Est letting value
- 0.00 £/moDecreased by 100.00 %
- Est rental Yield
- 3.08 %Decreased by 25.78 %
- Crime Rate
- 7.00 %Unchanged by 0.00 %
Agent Activity
Brian Cox created the listing.
Nearby Schools
| Name | Type | Ofsted | Distance |
|---|---|---|---|
| Grange Primary School | Community School | Requires improvement | 0.36 KM |
| Rayners Lane Children'S Centre | Children's Centre Linked Site | 0.56 KM | |
| Grange | Children's Centre Linked Site | 0.59 KM | |
| Whitmore High School | Community School | Outstanding | 0.81 KM |
| The Welldon Park Academy | Academy Sponsor Led | 0.91 KM |
Images
Nearby Streets
| Name | Average Price | Average Sqft | Distance |
|---|---|---|---|
| The Arches | £ 400,000 | 0 | 0.00 KM |
| Rooks Corner | £ 0 | 0 | 0.00 KM |
| Beechwood Gardens | £ 0 | 0 | 0.00 KM |
| Wesley Close | £ 0 | 0 | 0.00 KM |
| Grange Farm Close | £ 82,500 | 0 | 0.00 KM |
Nearby Transport
| Name | NLC | TLC | Distance |
|---|---|---|---|
| Northolt Park | 1478 | NLT | 1.29 KM |
| Harrow-On-The-Hill | 598 | HOH | 2.68 KM |
| Sudbury Hill Harrow | 1484 | SDH | 2.85 KM |
| Greenford | 3136 | GFD | 3.33 KM |
| Headstone Lane | 1434 | HDL | 3.74 KM |
Nearby Listings
| Address | Price | Type | Score | Distance |
|---|---|---|---|---|
| Drinkwater Road, Harrow | £ 229,950 | BUY | 6 / 10 | 0.00 KM |
| Cerise Court, Drinkwater Road, Harrow, HA2 | £ 245,000 | BUY | 5 / 10 | 0.01 KM |
| Cerise Court, Drinkwater Road, Harrow, HA2 | £ 255,000 | BUY | Unknown | 0.04 KM |
| Drinkwater Road, Harrow, HA2 | £ 325,000 | BUY | Unknown | 0.06 KM |
| Drinkwater Road, Harrow, HA2 | £ 250,000 | BUY | Unknown | 0.06 KM |
Nearby Properties
| Address | Price | Distance |
|---|---|---|
| 35 Coles Crescent | £ 430,000 | 0.13 KM |
| 51 Coles Crescent | £ 483,985 | 0.13 KM |
| 21 Coles Crescent | £ 101,500 | 0.13 KM |
| 13 Fentiman Way | £ 270,000 | 0.13 KM |
| 8 Thornley Drive | £ 420,000 | 0.15 KM |