Daniel Ford says ..
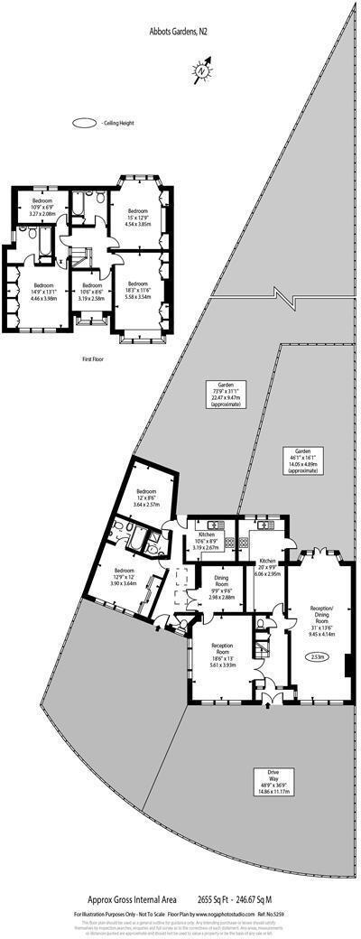
Five bedroom family home located in East Finchley with off street parking and large garden. The property is being offered to the market with no chain. This charming semi-detached house is arranged over two floors and offers 2655 sq ft of accommodation. The property comprises a double rec...
Property Oracle says ..
This property located on Abbots Gardens in East Finchley, Barnet, is listed at £1,999,999. The provided images show a two-story house with a driveway and a relatively small front garden. The house appears to be in reasonable condition, although some cosmetic updates might improve its curb appeal. The property’s age is evident, and while not dilapidated, it could benefit from some maintenance and modernisation. The lack of information regarding the internal layout (number of bedrooms and bathrooms) and the absence of plot size details makes a comprehensive assessment challenging. East Finchley is a desirable area known for its good schools and transport links, although the property’s precise location within the area and its proximity to specific amenities are not clear. The price seems relatively high compared to some other properties on Abbots Gardens, however, the lack of internal details and the high prices of neighbouring streets make it difficult to definitively comment on whether it represents good value. A full inspection is recommended to fully assess the property’s condition, layout, and overall value before making any purchasing decisions. Further information regarding the property’s internal features and plot size is crucial for a more accurate valuation.
Therefore, we give this property 5 / 10. *Disclaimer: This is our option and does constitute a recommendation or financial advice. Do your own research. *
- Price
- 7
- Condition
- 6
- Location
- 7
- Land
- 3
- Bedrooms
- 0
- Bathrooms
- 0
- Sqft (est)
- 2,655.13
The heatmap indicates the level of crime in the area. The color of the heatmap indicates the crime severity and recency.
Metrics Year-on-Year
- Average area value
- 781,875.00 £Increased by 10.58 %
- Est sale value
- 1,688,662.68 £Decreased by 19.19 %
- Average area rental value
- 2,137.00 £/moDecreased by 5.78 %
- Est letting value
- 2,655.13 £/moDecreased by 50.00 %
- Est rental Yield
- 3.28 %Decreased by 14.81 %
- Crime Rate
- 2.00 %Unchanged by 0.00 %
Agent Activity
Daniel Ford created the listing.
Nearby Schools
| Name | Type | Ofsted | Distance |
|---|---|---|---|
| The Archer Academy | Free Schools | Outstanding | 0.38 KM |
| Holy Trinity Cofe Primary School | Voluntary Aided School | Outstanding | 0.47 KM |
| Kerem School | Other Independent School | 0.56 KM | |
| Oakbridge Special Education | Special Post 16 Institution | 0.62 KM | |
| Oak Lodge School | Academy Special Converter | Outstanding | 0.67 KM |
Images
Nearby Streets
| Name | Average Price | Average Sqft | Distance |
|---|---|---|---|
| Abbotts Gardens | £ 0 | 0 | 0.00 KM |
| Aylmer Road | £ 2,030,000 | 0 | 0.00 KM |
| Plane Tree Walk | £ 0 | 0 | 0.00 KM |
| Leicester Mews | £ 0 | 0 | 0.00 KM |
| Brighton Road | £ 0 | 0 | 0.00 KM |
Nearby Transport
| Name | NLC | TLC | Distance |
|---|---|---|---|
| Hampstead Heath | 1413 | HDH | 3.81 KM |
| New Southgate | 6019 | NSG | 4.26 KM |
| Gospel Oak | 1409 | GPO | 4.41 KM |
| Finchley Road And Frognal | 1445 | FNY | 4.47 KM |
| West Hampstead Thameslink | 1525 | WHP | 5.00 KM |
Nearby Listings
| Address | Price | Type | Score | Distance |
|---|---|---|---|---|
| Abbots Gardens, London | £ 1,999,999 | BUY | 5 / 10 | 0.00 KM |
| Abbots Gardens, London, N2 | £ 1,700,000 | BUY | 7 / 10 | 0.04 KM |
| Cromwell Close, London | £ 550,000 | BUY | 6 / 10 | 0.07 KM |
| Cromwell Close, London, N2 | £ 560,000 | BUY | 8 / 10 | 0.10 KM |
| Brim Hill, Hampstead Garden Suburb | £ 1,800,000 | BUY | Unknown | 0.19 KM |
Nearby Properties
| Address | Price | Distance |
|---|---|---|
| 99 Abbots Gardens | £ 1,030,000 | 0.05 KM |
| 107 Abbots Gardens | £ 1,190,000 | 0.05 KM |
| 111 Abbots Gardens | £ 1,064,000 | 0.05 KM |
| 109 Abbots Gardens | £ 1,185,000 | 0.05 KM |
| 93 Abbots Gardens | £ 985,000 | 0.05 KM |