Land to the Rear of, 27-28 Cornhill
By Brightest move
£ 265,000
Reviews
3 out of 5 stars
Brightest move says ..
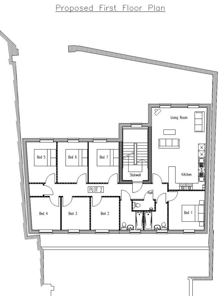
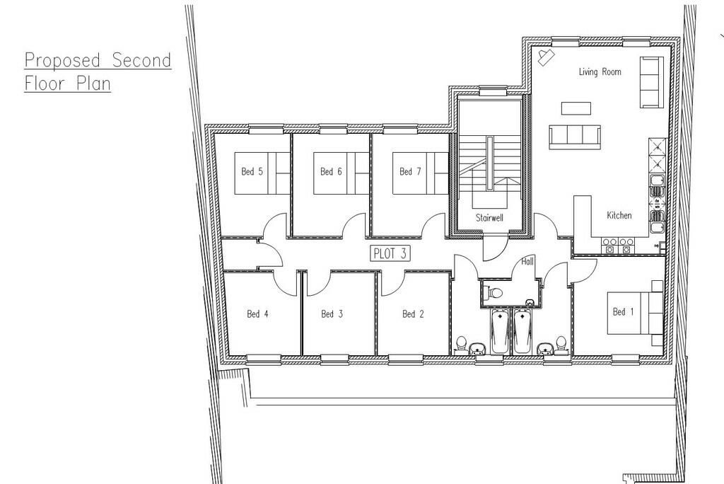
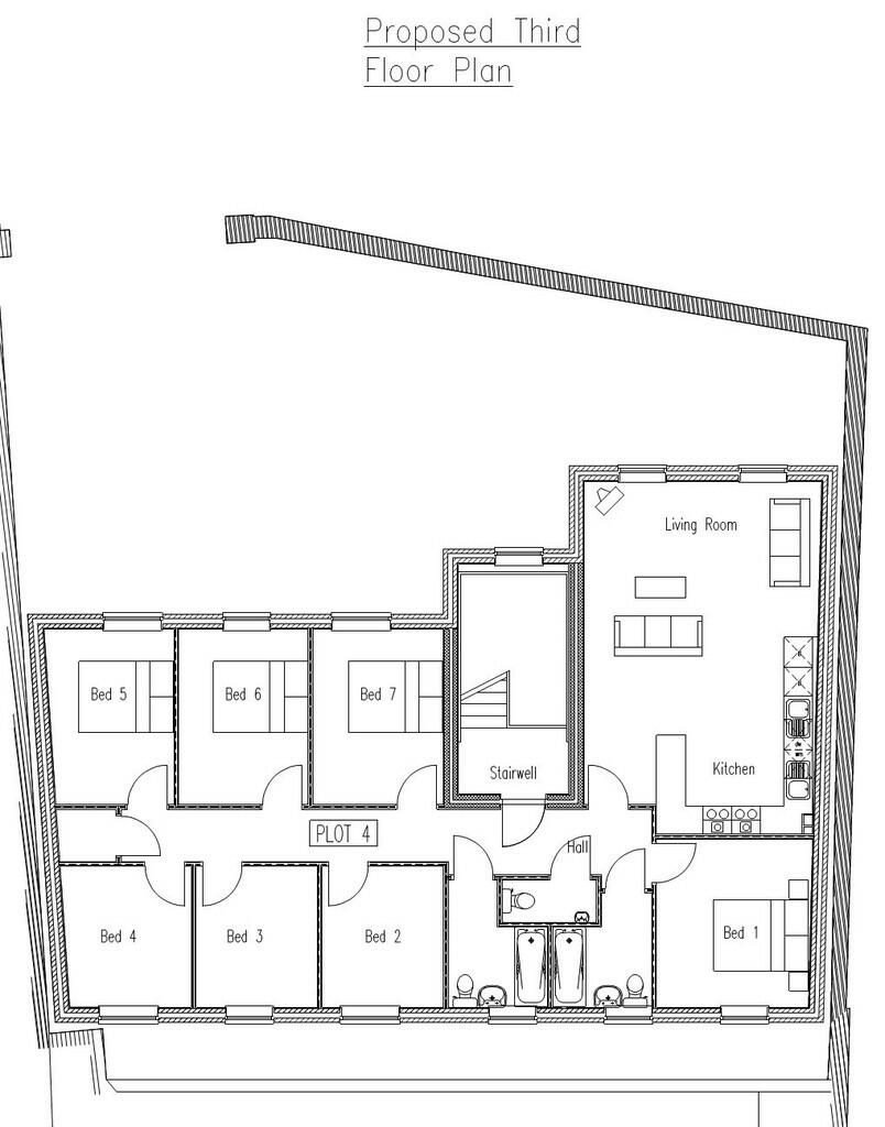
Attention investors. A chance to acquire this freehold development opportunity to build 4 HMO units on the site of an existing single storey building (to be demolished) to create 24 individual rooms in total with shared communal areas or to build a block of 8 flats.
Property Oracle says ..
This property presents a development opportunity rather than a ready-to-move-in residence. Located in Bridgwater, Somerset, the site consists of land at the rear of 27-28 Cornhill, requiring demolition of an existing single-storey structure. The plans propose development into either four HMO units containing a total of 24 individual rooms or eight flats. The central location is advantageous, near Bridgwater’s town centre, train station (Bridgwater station, Great Western Railway), and various schools – Northgate Primary School, The Bridge School Sedgemoor, Robert Blake Science College, Polden Bower School and Sedgemoor West. However, the immediate surroundings show aspects that could be seen as less desirable for residential purposes. The images of the current site show a carpark and an area with some signs of neglect and disrepair. The property’s proximity to amenities isn’t directly detailed but is inferred due to the town-centre location. The list price appears acceptable given the potential for substantial returns from the proposed multi-unit development. The lack of specifics regarding square footage and precise plot size limits the full assessment of value for money, however, the price of similar properties in the immediate vicinity suggest that the current listed price isn’t unreasonable. Overall, investors interested in multi-unit development projects may find this property appealing for its potential, but will need to account for the associated costs of demolition and construction.
Therefore, we give this property 6 / 10. *Disclaimer: This is our option and does constitute a recommendation or financial advice. Do your own research. *
- Price
- 7
- Condition
- 4
- Location
- 7
- Land
- 6
- Bedrooms
- 0
- Bathrooms
- 0
The heatmap indicates the level of crime in the area. The color of the heatmap indicates the crime severity and recency.
Metrics Year-on-Year
- Average area value
- 208,333.00 £Decreased by 4.14 %
- Average area rental value
- 1,107.00 £/moIncreased by 19.29 %
- Est rental Yield
- 6.38 %Increased by 24.61 %
- Crime Rate
- 48.00 %Unchanged by 0.00 %
Agent Activity
Brightest move created the listing.
Nearby Schools
| Name | Type | Ofsted | Distance |
|---|---|---|---|
| Northgate Primary School | Free Schools | 0.35 KM | |
| The Bridge School Sedgemoor | Pupil Referral Unit | Good | 0.90 KM |
| Robert Blake Science College | Foundation School | Requires improvement | 0.92 KM |
| Polden Bower School | Foundation Special School | Good | 0.96 KM |
| Sedgemoor West | Children's Centre | 0.96 KM |
Images
Nearby Streets
| Name | Average Price | Average Sqft | Distance |
|---|---|---|---|
| Castle Moat | £ 245,000 | 0 | 0.00 KM |
| Watsons Lane | £ 0 | 0 | 0.00 KM |
| Prices Buildings | £ 0 | 0 | 0.00 KM |
| Camden Mews | £ 200,000 | 0 | 0.00 KM |
| Turner Close | £ 0 | 0 | 0.00 KM |
Nearby Transport
| Name | NLC | TLC | Distance |
|---|---|---|---|
| Bridgwater | 3449 | BWT | 1.47 KM |
Nearby Listings
| Address | Price | Type | Score | Distance |
|---|---|---|---|---|
| Land to the Rear of, 27-28 Cornhill | £ 265,000 | BUY | 6 / 10 | 0.00 KM |
| The Courtyard, George Street, Bridgwater | £ 110,000 | BUY | Unknown | 0.10 KM |
| The Courtyard, George Street, Bridgwater | £ 155,000 | BUY | 6 / 10 | 0.10 KM |
| Queen Street, Bridgwater | £ 84,000 | BUY | 5 / 10 | 0.11 KM |
| George Street, Bridgwater | £ 119,950 | BUY | 6 / 10 | 0.15 KM |
Nearby Properties
| Address | Price | Distance |
|---|---|---|
| 14 Queen Street | £ 101,000 | 0.11 KM |
| 8a Queen Street | £ 83,500 | 0.11 KM |
| 6 Queen Street | £ 60,000 | 0.11 KM |
| 13 King Square | £ 149,000 | 0.11 KM |
| 24a St Mary Street | £ 180,000 | 0.12 KM |