BR
Oxford Street, Woodstock, OX20
By Breckon & Breckon
£ 675,000
Reviews
3 out of 5 stars
Breckon & Breckon says ..
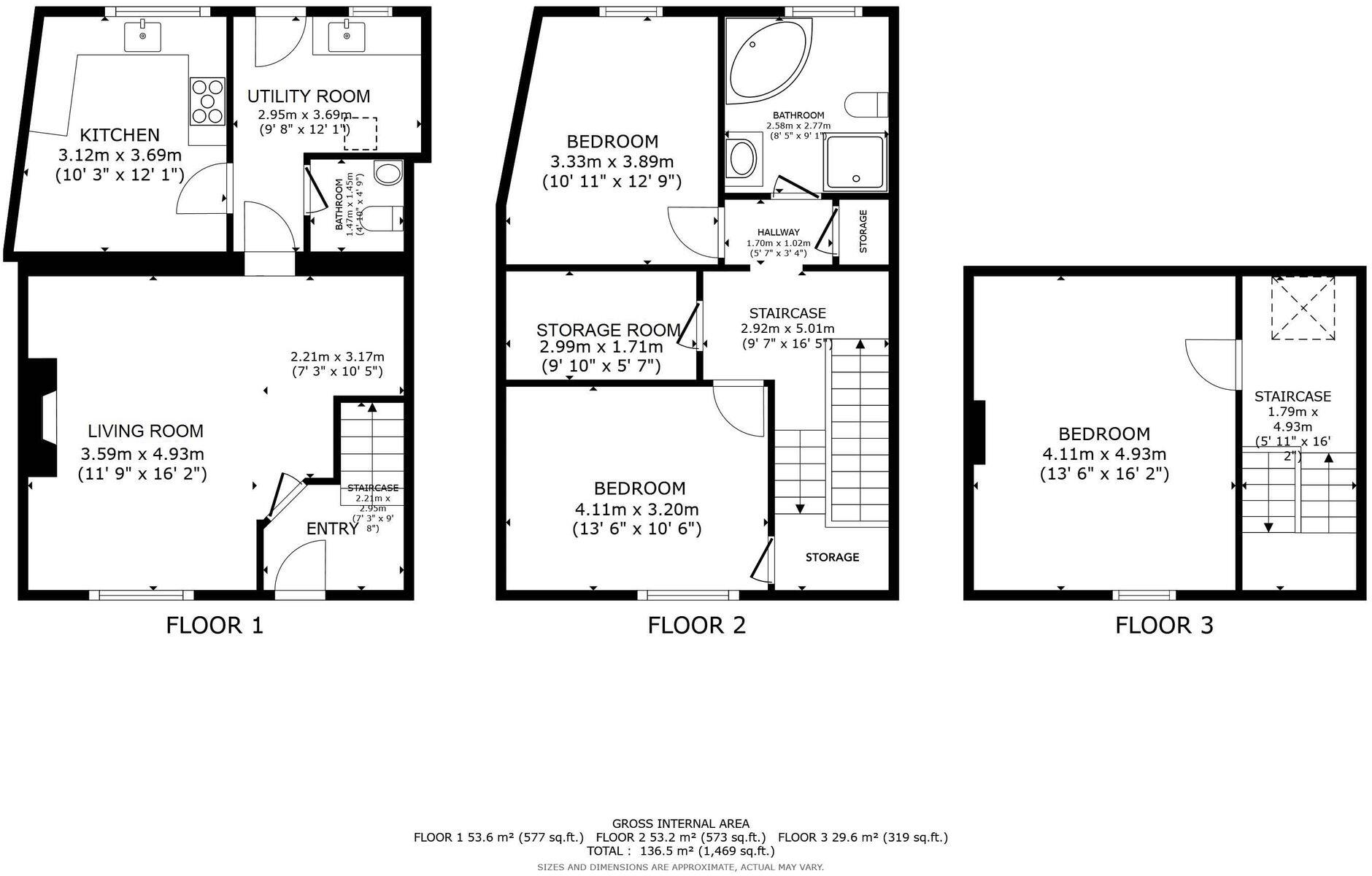
This charming three-bedroom period cottage sits in a picturesque terrace, backing on to water meadows, surrounded by mature trees, and just a short walk from the centre of Woodstock and Blenheim Palace, one of Britain’s finest World Heritage sites.On approach, the Cotswold Stone façade is punctua...
Property Oracle says ..
Therefore, we give this property 6 / 10. *Disclaimer: This is our option and does constitute a recommendation or financial advice. Do your own research. *
- Price
- 4
- Condition
- 8
- Location
- 8
- Land
- 7
- Bedrooms
- 3
- Bathrooms
- 1
- Sqft (est)
- 844.21
The heatmap indicates the level of crime in the area. The color of the heatmap indicates the crime severity and recency.
Metrics Year-on-Year
- Average area value
- 270,000.00 £Increased by 41.58 %
- Est sale value
- 306,448.23 £Increased by 61.33 %
- Average area rental value
- 936.00 £/moDecreased by 3.51 %
- Est letting value
- 844.21 £/moUnchanged by 0.00 %
- Est rental Yield
- 4.16 %Decreased by 31.80 %
- Crime Rate
- 42.00 %Unchanged by 0.00 %
from 190,711.00 £
from 189,947.25 £
from 970.00 £/mo
from 844.21 £/mo
from 6.10 %
from 42.00 %
Agent Activity
Breckon & Breckon created the listing.
Nearby Schools
| Name | Type | Ofsted | Distance |
|---|---|---|---|
| Woodstock Church Of England Primary School | Voluntary Controlled School | Outstanding | 1.42 KM |
| The Marlborough Church Of England School | Academy Converter | Good | 1.86 KM |
| Bladon Church Of England Primary School | Voluntary Controlled School | Good | 2.30 KM |
| Wootton-By-Woodstock Church Of England Primary School | Academy Converter | 2.96 KM | |
| Hanborough Manor Cofe School | Academy Converter | Good | 4.61 KM |
Images
Nearby Streets
| Name | Average Price | Average Sqft | Distance |
|---|---|---|---|
| Chaucer's Lane | £ 470,000 | 0 | 0.00 KM |
| Glover Mews | £ 1,500,000 | 0 | 0.00 KM |
| Youngs Way | £ 250,000 | 0 | 0.00 KM |
| Taylors Close | £ 0 | 0 | 0.00 KM |
| Rose Drive | £ 0 | 0 | 0.00 KM |
Nearby Transport
| Name | NLC | TLC | Distance |
|---|---|---|---|
| Hanborough | 3007 | HND | 3.14 KM |
| Combe (Oxon) | 3005 | CME | 4.36 KM |
| Tackley | 3195 | TAC | 7.61 KM |
Nearby Listings
| Address | Price | Type | Score | Distance |
|---|---|---|---|---|
| Oxford Street, Woodstock, OX20 | £ 675,000 | BUY | 6 / 10 | 0.00 KM |
| Oxford Street, Woodstock, OX20 1TZ | £ 900,000 | BUY | Unknown | 0.01 KM |
| Chaucers Lane, Woodstock, OX20 | £ 470,000 | BUY | 5 / 10 | 0.11 KM |
| Chaucers Lane, Woodstock, OX20 | £ 375,000 | BUY | 5 / 10 | 0.11 KM |
| Park Street, Woodstock, Oxfordshire, OX20 | £ 1,700,000 | BUY | Unknown | 0.14 KM |
Nearby Properties
| Address | Price | Distance |
|---|---|---|
| 120 Oxford Street | £ 405,000 | 0.01 KM |
| 126 Oxford Street | £ 850,000 | 0.01 KM |
| 7 Brookside Court | £ 212,500 | 0.07 KM |
| 9 Brookside Court | £ 198,000 | 0.07 KM |
| 11 Brookside Court | £ 53,000 | 0.07 KM |