LA
Abbots Gate, Laundry Lane, Bury St Edmunds, Suffolk, IP33
By Lacy Scott & Knight
£ 315,000
Reviews
3 out of 5 stars
Lacy Scott & Knight says ..
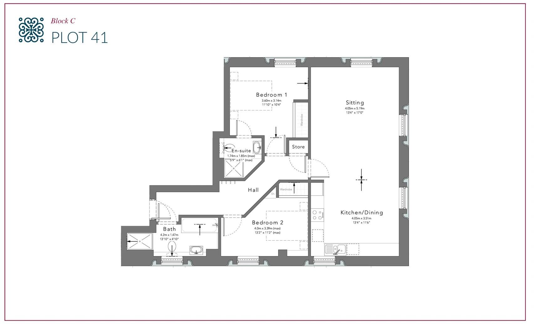
READY TO MOVE INTO - Spacious top floor apartment set on the new Abbots Gate Development Spacious open plan living space with two bedrooms, 2 bathrooms and fully fitted kitchen.
Property Oracle says ..
Therefore, we give this property 6 / 10. *Disclaimer: This is our option and does constitute a recommendation or financial advice. Do your own research. *
- Price
- 7
- Condition
- 9
- Location
- 7
- Land
- 3
- Bedrooms
- 2
- Bathrooms
- 2
- Sqft (est)
- 748.01
The heatmap indicates the level of crime in the area. The color of the heatmap indicates the crime severity and recency.
Metrics Year-on-Year
- Average area value
- 488,748.00 £Decreased by 5.95 %
- Est sale value
- 372,508.98 £Decreased by 4.60 %
- Average area rental value
- 1,587.00 £/moDecreased by 5.76 %
- Est letting value
- 748.01 £/moUnchanged by 0.00 %
- Est rental Yield
- 3.90 %Increased by 0.26 %
- Crime Rate
- 3.00 %Unchanged by 0.00 %
from 519,665.00 £
from 390,461.22 £
from 1,684.00 £/mo
from 748.01 £/mo
from 3.89 %
from 3.00 %
Agent Activity
Lacy Scott & Knight created the listing.
Nearby Schools
| Name | Type | Ofsted | Distance |
|---|---|---|---|
| Hardwick Primary School | Academy Converter | 0.57 KM | |
| Hardwick Children'S Centre | Children's Centre | 0.76 KM | |
| St Edmund'S Catholic Primary School | Voluntary Aided School | Good | 0.79 KM |
| Guildhall Feoffment Community Primary School | Community School | Good | 0.80 KM |
| Learning Support, Western Area Education Office | Miscellaneous | 0.82 KM |
Images
Nearby Streets
| Name | Average Price | Average Sqft | Distance |
|---|---|---|---|
| Ely Close | £ 0 | 0 | 0.00 KM |
| Laundry Lane | £ 432,500 | 0 | 0.00 KM |
| Cullum Road | £ 0 | 0 | 0.00 KM |
| Coppers Close | £ 0 | 0 | 0.00 KM |
| Sandpiper Road | £ 252,500 | 0 | 0.00 KM |
Nearby Transport
| Name | NLC | TLC | Distance |
|---|---|---|---|
| Bury St Edmunds | 7008 | BSE | 2.16 KM |
Nearby Listings
| Address | Price | Type | Score | Distance |
|---|---|---|---|---|
| Abbots Gate, Laundry Lane, Bury St Edmunds, Suffolk, IP33 | £ 315,000 | BUY | 6 / 10 | 0.00 KM |
| Abbots Gate, Laundry Lane, Bury St Edmunds, Suffolk, IP33 | £ 295,000 | BUY | 6 / 10 | 0.00 KM |
| Abbots Gate, Laundry Lane, Bury St Edmunds, Suffolk, IP33 | £ 285,000 | BUY | 7 / 10 | 0.00 KM |
| Abbots Gate, Laundry Lane, Bury St Edmunds, Suffolk, IP33 | £ 285,000 | BUY | 6 / 10 | 0.00 KM |
| Abbots Gate, Laundry Lane, Bury St Edmunds, Suffolk, IP33 | £ 225,000 | BUY | Unknown | 0.01 KM |
Nearby Properties
| Address | Price | Distance |
|---|---|---|
| 4 Salisbury Green | £ 50,000 | 0.09 KM |
| 3 Salisbury Green | £ 187,500 | 0.09 KM |
| 9 Salisbury Green | £ 248,000 | 0.09 KM |
| 17 Salisbury Green | £ 285,000 | 0.09 KM |
| 19 Salisbury Green | £ 255,000 | 0.09 KM |