Magdalen Road, St Leonards, Exeter
By Wilkinson Grant & Co
£ 600,000
Reviews
3 out of 5 stars
Wilkinson Grant & Co says ..
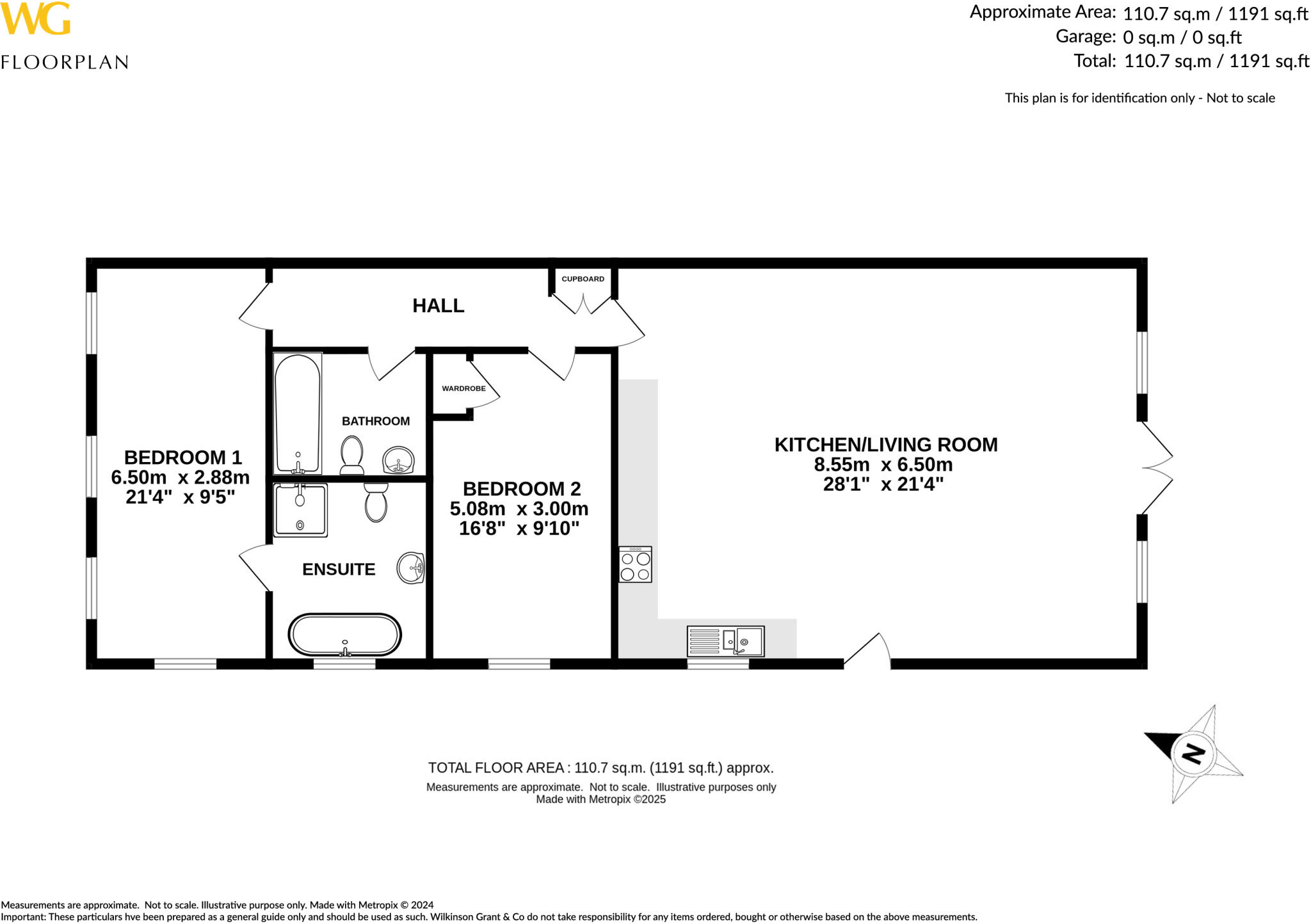
***SOUTH FACING GARDEN*** A Stunning TWO DOUBLE BEDROOM GROUND FLOOR apartment situated in St. Margaret's Residences. Walking distance from the St Leonards Shops, Waitrose and Exeter City Centre. SOUTH FACING GARDEN and ALLOCATED PARKING. Generous HIGH SPEC open plan kitchen / living /...
Property Oracle says ..
This is a well-presented bungalow located in the desirable St Leonards area of Exeter. The property boasts modern interiors, a well-maintained garden, and convenient access to local amenities and transport links. While the square footage is not specified, the asking price appears reasonable based on comparable properties in the area. Overall, this property offers a comfortable and stylish living space in a sought-after location, making it an attractive option for potential buyers.
Therefore, we give this property 7 / 10. *Disclaimer: This is our option and does constitute a recommendation or financial advice. Do your own research. *
- Price
- 6
- Condition
- 9
- Location
- 8
- Land
- 7
- Bedrooms
- 2
- Bathrooms
- 2
The heatmap indicates the level of crime in the area. The color of the heatmap indicates the crime severity and recency.
Metrics Year-on-Year
- Average area value
- 521,250.00 £Increased by 29.23 %
- Average area rental value
- 1,512.00 £/moIncreased by 50.45 %
- Est rental Yield
- 3.48 %Increased by 16.39 %
- Crime Rate
- 0.00 %
Agent Activity
Wilkinson Grant & Co created the listing.
Nearby Schools
| Name | Type | Ofsted | Distance |
|---|---|---|---|
| Exeter School | Other Independent School | 0.27 KM | |
| Magdalen Court School | Other Independent Special School | Requires improvement | 0.55 KM |
| Newtown Primary School | Community School | Requires improvement | 0.77 KM |
| Ladysmith Infant & Nursery School | Community School | Outstanding | 0.77 KM |
| Ladysmith Junior School | Community School | Good | 0.80 KM |
Images
Nearby Streets
| Name | Average Price | Average Sqft | Distance |
|---|---|---|---|
| St Margaret's | £ 436,429 | 0 | 0.00 KM |
| North Avenue | £ 0 | 0 | 0.00 KM |
| The Maltings | £ 0 | 0 | 0.00 KM |
| Clifton Hill | £ 0 | 0 | 0.00 KM |
| Blue Jay Way | £ 0 | 0 | 0.00 KM |
Nearby Transport
| Name | NLC | TLC | Distance |
|---|---|---|---|
| St James Park (Exeter) | 5751 | SJP | 1.43 KM |
| Polsloe Bridge | 3422 | POL | 1.63 KM |
| Exeter Central | 5755 | EXC | 2.29 KM |
| Exeter St Thomas | 3414 | EXT | 2.89 KM |
| Exeter St David'S | 3410 | EXD | 3.44 KM |
Nearby Listings
| Address | Price | Type | Score | Distance |
|---|---|---|---|---|
| Magdalen Road, St Leonards, Exeter | £ 600,000 | BUY | 7 / 10 | 0.00 KM |
| St Margaret's Residences, Magdalen Road, Exeter | £ 450,000 | BUY | 6 / 10 | 0.00 KM |
| Magdalen Road, Exeter | £ 500,000 | BUY | 6 / 10 | 0.00 KM |
| Magdalen Road, Exeter | £ 450,000 | BUY | 6 / 10 | 0.00 KM |
| Magdalen Road, Exeter | £ 650,000 | BUY | 6 / 10 | 0.00 KM |
Nearby Properties
| Address | Price | Distance |
|---|---|---|
| 150 Heavitree Road | £ 387,000 | 0.09 KM |
| 140 Heavitree Road | £ 575,000 | 0.09 KM |
| 152 Heavitree Road | £ 370,000 | 0.09 KM |
| 154 Heavitree Road | £ 375,000 | 0.09 KM |
| 66 Magdalen Road | £ 890,000 | 0.12 KM |