Lodge & Thomas says ..
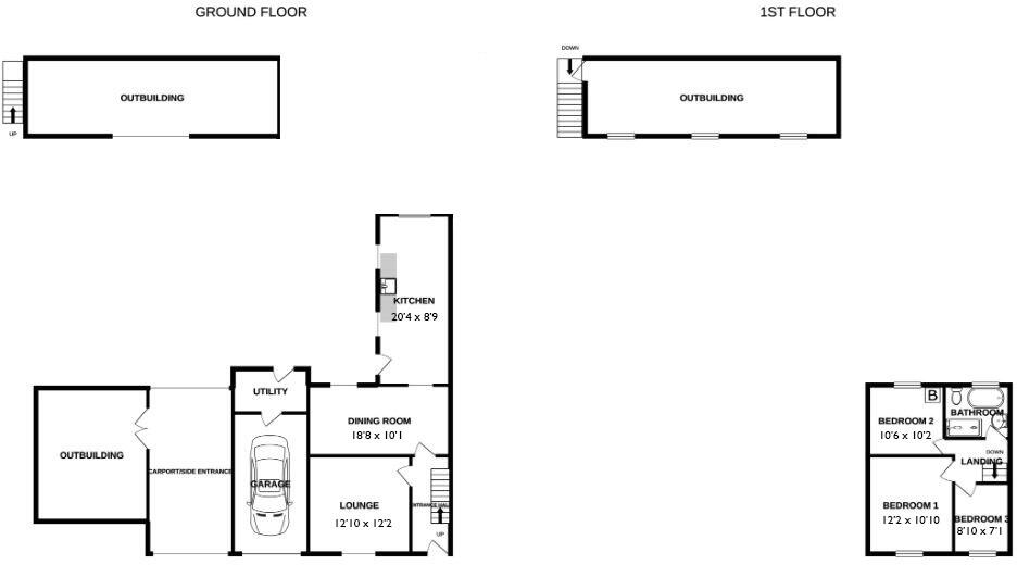
A characterful home fringing the village of Troon, offering three bedroom, two reception accommodation together with outbuildings/workshops, garage and carport, ideal for home working and hobbies.
Property Oracle says ..
This three-bedroom property in Troon, Cornwall, presents a blend of charm and potential. Situated in a desirable village location with a good primary school nearby, it offers convenient access to local amenities and transport connections to Camborne. The property itself is a characterful building with original features, including exposed stonework and wooden beams. The kitchen appears to have been recently updated, providing a modern contrast to the traditional aspects of the home. However, the exterior and some interior areas suggest a need for maintenance and potential modernisation. The garden is a pleasant addition, but its size appears modest. Overall, the property represents a solid investment opportunity for those seeking a home in a peaceful setting, but prospective buyers should be prepared for potential renovation costs. The lack of detailed plot size information and precise average price per square foot data for Troon limits a more precise assessment of the property’s value proposition.
Therefore, we give this property 6 / 10. *Disclaimer: This is our option and does constitute a recommendation or financial advice. Do your own research. *
- Price
- 7
- Condition
- 6
- Location
- 7
- Land
- 4
- Bedrooms
- 3
- Bathrooms
- 1
- Sqft (est)
- 1,228.55
The heatmap indicates the level of crime in the area. The color of the heatmap indicates the crime severity and recency.
Metrics Year-on-Year
- Average area value
- 380,500.00 £Decreased by 7.95 %
- Est sale value
- 374,707.75 £Increased by 0.66 %
- Average area rental value
- 1,550.00 £/moIncreased by 31.91 %
- Est letting value
- 1,228.55 £/mo
- Est rental Yield
- 4.89 %Increased by 43.40 %
- Crime Rate
- 22.00 %Unchanged by 0.00 %
Agent Activity
Lodge & Thomas created the listing.
Nearby Schools
| Name | Type | Ofsted | Distance |
|---|---|---|---|
| Troon Children'S Centre | Children's Centre | 0.33 KM | |
| Troon Community Primary School | Academy Converter | Good | 0.33 KM |
| St John'S Catholic Primary School, Camborne | Academy Converter | Good | 2.51 KM |
| Trevithick Learning Academy | Academy Converter | 2.74 KM | |
| Roskear School | Academy Converter | Good | 2.81 KM |
Images
Nearby Streets
| Name | Average Price | Average Sqft | Distance |
|---|---|---|---|
| School Lane | £ 0 | 0 | 0.00 KM |
| Bolenowe Road | £ 330,000 | 0 | 0.00 KM |
| Knave-Go-By | £ 212,500 | 0 | 0.00 KM |
Nearby Transport
| Name | NLC | TLC | Distance |
|---|---|---|---|
| Camborne | 3504 | CBN | 2.75 KM |
| Redruth | 3530 | RED | 7.27 KM |
Nearby Listings
| Address | Price | Type | Score | Distance |
|---|---|---|---|---|
| Troon, Camborne | £ 295,000 | BUY | 6 / 10 | 0.00 KM |
| BUILDING PLOT, LAITY ROAD, TROON | £ 120,000 | BUY | 5 / 10 | 0.02 KM |
| Laity Road, Troon, Camborne, Cornwall | £ 260,000 | BUY | Unknown | 0.03 KM |
| Floral Lane, Higher Brea, Camborne, Cornwall, TR14 | £ 350,000 | BUY | 7 / 10 | 0.03 KM |
| Laity Road, Troon, Camborne, TR14 | £ 299,950 | BUY | Unknown | 0.05 KM |
Nearby Properties
| Address | Price | Distance |
|---|---|---|
| 7 Laity Road | £ 129,000 | 0.02 KM |
| 12 Laity Road | £ 105,000 | 0.02 KM |
| 4 Laity Road | £ 170,000 | 0.02 KM |
| 10 Laity Road | £ 120,000 | 0.02 KM |
| 9 Laity Road | £ 155,000 | 0.02 KM |