Gadsby Street, Nuneaton, CV11
By Carters of Nuneaton
£ 125,000
Reviews
2 out of 5 stars
Carters of Nuneaton says ..
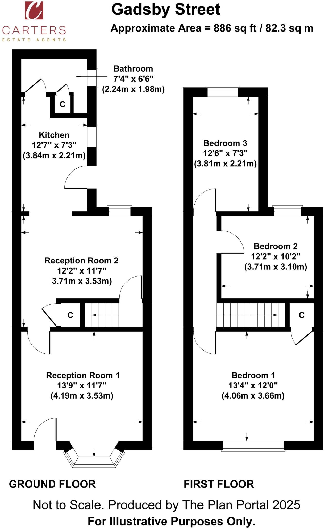
**TOTAL REFURBISHMENT REQUIRED**POPULAR LOCATION**NO UPWARD CHAIN**Carters are pleased to present this three-bedroom mid-terrace property, offering an exciting opportunity for those looking to modernise and create a home tailored to their own taste and style.
Property Oracle says ..
This three-bedroom terraced house in Nuneaton is listed at £125,000. The property is in need of significant renovation, as evidenced by the photographs. While the location offers proximity to schools and transportation links, the condition of the property significantly impacts its overall value. The plot size is approximately 886 sqft. Comparable properties in the area range from £89,000 to £165,000, although sqft data for these properties is unavailable. Given the required renovations, the list price may be considered reasonable for the area, though a thorough survey is recommended.
Therefore, we give this property 4 / 10. *Disclaimer: This is our option and does constitute a recommendation or financial advice. Do your own research. *
- Price
- 5
- Condition
- 2
- Location
- 6
- Land
- 4
- Bedrooms
- 3
- Bathrooms
- 1
- Sqft (est)
- 923.54
- Lot (est)
- 885.87
The heatmap indicates the level of crime in the area. The color of the heatmap indicates the crime severity and recency.
Metrics Year-on-Year
- Average area value
- 211,800.00 £Decreased by 16.36 %
- Est sale value
- 290,915.10 £Increased by 56.72 %
- Average area rental value
- 1,035.00 £/moIncreased by 13.36 %
- Est letting value
- 923.54 £/mo
- Est rental Yield
- 5.86 %Increased by 35.33 %
- Crime Rate
- 3.00 %Unchanged by 0.00 %
Agent Activity
Carters of Nuneaton created the listing.
Nearby Schools
| Name | Type | Ofsted | Distance |
|---|---|---|---|
| Alp Nuneaton | Other Independent Special School | 0.78 KM | |
| George Eliot Academy | Academy Sponsor Led | Good | 1.08 KM |
| Oak Wood Secondary School | Academy Special Converter | Good | 1.21 KM |
| Oak Wood Primary School | Academy Special Converter | Good | 1.21 KM |
| King Edward Vi College | Academy 16-19 Converter | Good | 1.30 KM |
Images
Nearby Streets
| Name | Average Price | Average Sqft | Distance |
|---|---|---|---|
| The Square | £ 0 | 0 | 0.00 KM |
| George Street | £ 0 | 0 | 0.00 KM |
| Raven Way | £ 0 | 0 | 0.00 KM |
| Eastboro Way | £ 0 | 0 | 0.00 KM |
| Armstrong Road | £ 0 | 0 | 0.00 KM |
Nearby Transport
| Name | NLC | TLC | Distance |
|---|---|---|---|
| Nuneaton | 1077 | NUN | 1.78 KM |
| Bermuda Park | 6543 | BEP | 2.76 KM |
| Bedworth | 1165 | BEH | 4.41 KM |
| Coventry Arena | 7416 | CAA | 8.90 KM |
| Hinckley (Leics) | 1870 | HNK | 9.09 KM |
Nearby Listings
| Address | Price | Type | Score | Distance |
|---|---|---|---|---|
| Gadsby Street, Nuneaton, CV11 | £ 125,000 | BUY | 4 / 10 | 0.00 KM |
| 240 Gadsby Street, Nuneaton, CV11 4PE | £ 55,000 | BUY | 5 / 10 | 0.00 KM |
| Gadsby Street, Nuneaton, CV11 | £ 160,000 | BUY | 6 / 10 | 0.04 KM |
| Gadsby Street, Attleborough, Nuneaton | £ 150,000 | BUY | Unknown | 0.04 KM |
| Gadsby Street, Nuneaton | £ 180,000 | BUY | Unknown | 0.06 KM |
Nearby Properties
| Address | Price | Distance |
|---|---|---|
| 189 Gadsby Street | £ 160,000 | 0.02 KM |
| 167 Gadsby Street | £ 152,000 | 0.02 KM |
| 181 Gadsby Street | £ 102,000 | 0.02 KM |
| 250 Gadsby Street | £ 101,500 | 0.02 KM |
| 179 Gadsby Street | £ 110,000 | 0.02 KM |