Higher Lane, Rainford, St Helens, Merseyside, WA11 8EQ
By Miller Homes North West
£ 403,995
Reviews
4 out of 5 stars
Miller Homes North West says ..
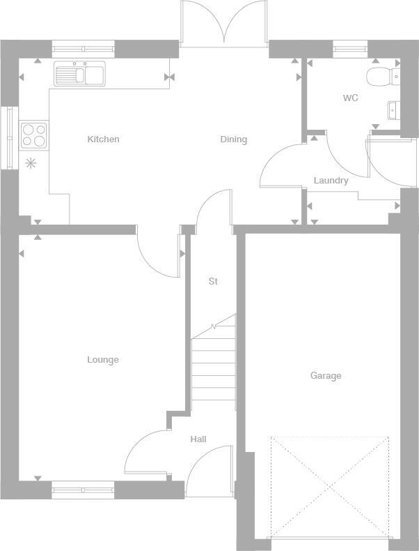
The stylish lounge opens on to a bright, inspiring kitchen, a natural hub for family life, with FRENCH DOORS adding an exciting flexibility to the dining area. The dedicated LAUNDRY helps separate household management from leisure space, and one of the four bedrooms is EN-SUITE.
Property Oracle says ..
Rainford is a village located in Merseyside, England. The property is a detached house with four bedrooms and is situated on Higher Lane. Based on the images provided, the property appears to be modern in design and is presented in excellent condition. The kitchen and bathrooms are modern and well-equipped. The property also benefits from a garden. Considering the average price per square foot in the area is £481, and this property is listed at £403,995 for 850 sqft, this equates to £475 per sqft. This is slightly lower than the average price per sqft in the area, suggesting that the asking price may represent good value. However, further analysis of comparable properties in the immediate vicinity would be needed to confirm this. The nearby properties show a range of prices, some higher and some lower than the subject property. The lack of plot size information for the subject property and nearby listings limits a comprehensive land assessment. The proximity to Rainford High School (rated ‘Good’ by Ofsted) and other schools, along with its proximity to Rainford train station, positively impacts its location score.
Therefore, we give this property 8 / 10. *Disclaimer: This is our option and does constitute a recommendation or financial advice. Do your own research. *
- Price
- 8
- Condition
- 10
- Location
- 8
- Land
- 7
- Bedrooms
- 4
- Bathrooms
- 0
- Sqft (est)
- 850.00
The heatmap indicates the level of crime in the area. The color of the heatmap indicates the crime severity and recency.
Metrics Year-on-Year
- Average area value
- 543,800.00 £Increased by 17.00 %
- Est sale value
- 456,450.00 £Increased by 32.27 %
- Average area rental value
- 1,669.00 £/moDecreased by 26.99 %
- Est letting value
- 850.00 £/moDecreased by 50.00 %
- Est rental Yield
- 3.68 %Decreased by 37.63 %
- Crime Rate
- 18.00 %Unchanged by 0.00 %
Agent Activity
Miller Homes North West created the listing.
Nearby Schools
| Name | Type | Ofsted | Distance |
|---|---|---|---|
| Rainford Cofe Primary School | Academy Converter | 1.30 KM | |
| Rainford High School | Academy Converter | Good | 1.71 KM |
| Rainford Brook Lodge Community Primary School | Community School | Good | 1.78 KM |
| Corpus Christi Catholic Primary School | Voluntary Aided School | Good | 2.04 KM |
| Bleak Hill Primary School | Community School | Outstanding | 3.58 KM |
Images
Nearby Streets
| Name | Average Price | Average Sqft | Distance |
|---|---|---|---|
| Carter Avenue | £ 0 | 0 | 0.00 KM |
| Wellfield | £ 225,000 | 0 | 0.00 KM |
| Rose Place | £ 240,000 | 0 | 0.00 KM |
| Queensway | £ 160,000 | 0 | 0.00 KM |
| All Saints Court | £ 0 | 0 | 0.00 KM |
Nearby Transport
| Name | NLC | TLC | Distance |
|---|---|---|---|
| Rainford | 2404 | RNF | 2.91 KM |
| Upholland | 2364 | UPL | 5.37 KM |
| Thatto Heath | 2264 | THH | 6.70 KM |
| St Helens Central | 2341 | SNH | 6.84 KM |
| Eccleston Park | 2227 | ECL | 7.10 KM |
Nearby Listings
| Address | Price | Type | Score | Distance |
|---|---|---|---|---|
| Higher Lane, Rainford, St Helens, Merseyside, WA11 8EQ | £ 285,995 | BUY | 7 / 10 | 0.00 KM |
| Rookery Lane, Rainford, St Helens, Merseyside, WA11 8EQ | £ 316,995 | BUY | 6 / 10 | 0.00 KM |
| Higher Lane, Rainford, St Helens, Merseyside, WA11 8EQ | £ 466,995 | BUY | 7 / 10 | 0.00 KM |
| Higher Lane, Rainford, St Helens, Merseyside, WA11 8EQ | £ 279,995 | BUY | 7 / 10 | 0.00 KM |
| Higher Lane, Rainford, St Helens, Merseyside, WA11 8EQ | £ 249,995 | BUY | 5 / 10 | 0.00 KM |
Nearby Properties
| Address | Price | Distance |
|---|---|---|
| 67 Rookery Lane | £ 228,000 | 0.25 KM |
| 51 Rookery Lane | £ 195,000 | 0.25 KM |
| 77 Rookery Lane | £ 205,000 | 0.25 KM |
| 85 Rookery Lane | £ 230,000 | 0.25 KM |
| 63 Rookery Lane | £ 290,000 | 0.25 KM |