Broadway, Fulford, York
By Ashtons Estate Agents
£ 210,000
Reviews
2 out of 5 stars
Ashtons Estate Agents says ..
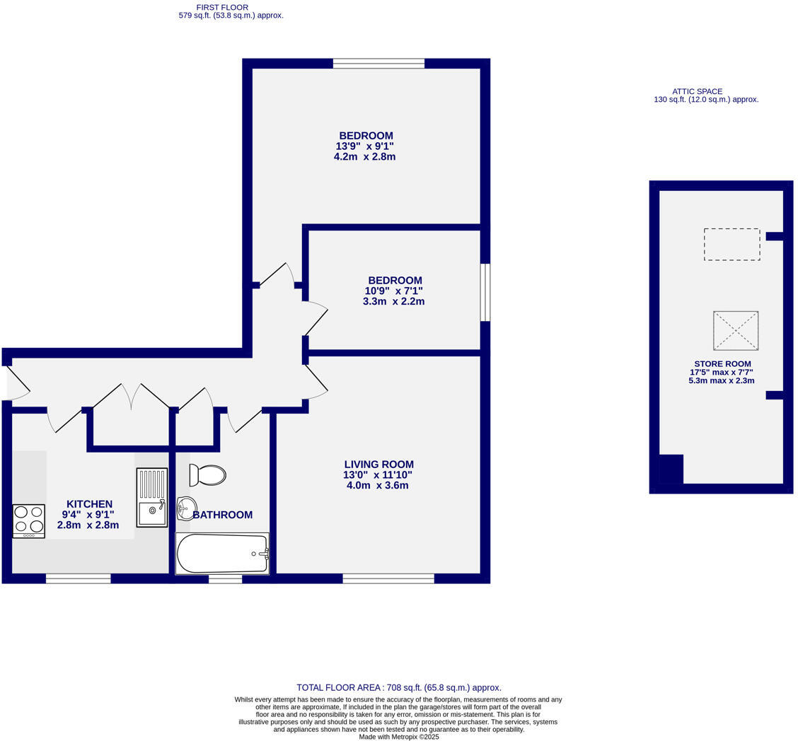
Ashtons Estate Agents are delighted to offer this two bedroom apartment to the market. Situated in the sought-after area of Fulford, the property is ideally placed for local amenities, just a short distance from York city centre, and offers convenient access to the ring road and beyond. ...
Property Oracle says ..
This is a two-bedroom apartment located in Fulford, York. The property is in need of renovation, particularly in the kitchen and bathroom. It benefits from being in a good location, close to schools and transport links. The asking price of £210,000 seems reasonable given the condition and the local market. The property offers parking. The apartment would be ideal for a first-time buyer or investor looking to add value through renovation.
Therefore, we give this property 5 / 10. *Disclaimer: This is our option and does constitute a recommendation or financial advice. Do your own research. *
- Price
- 7
- Condition
- 4
- Location
- 7
- Land
- 3
- Bedrooms
- 2
- Bathrooms
- 1
- Sqft (est)
- 708.27
The heatmap indicates the level of crime in the area. The color of the heatmap indicates the crime severity and recency.
Metrics Year-on-Year
- Average area value
- 391,421.00 £Increased by 20.41 %
- Est sale value
- 283,308.00 £Decreased by 8.05 %
- Average area rental value
- 1,243.00 £/moDecreased by 1.97 %
- Est letting value
- 708.27 £/moUnchanged by 0.00 %
- Est rental Yield
- 3.81 %Decreased by 18.59 %
- Crime Rate
- 8.00 %Unchanged by 0.00 %
Agent Activity
Ashtons Estate Agents created the listing.
Nearby Schools
| Name | Type | Ofsted | Distance |
|---|---|---|---|
| St Oswald'S Church Of England Voluntary Controlled Primary School | Voluntary Controlled School | Good | 0.44 KM |
| Fulford School | Academy Converter | 0.65 KM | |
| Danesgate Community | Pupil Referral Unit | Good | 0.74 KM |
| York Steiner School | Other Independent School | Inadequate | 0.77 KM |
| St George'S Catholic Primary School - A Catholic Voluntary Academy | Academy Converter | 1.18 KM |
Images
Nearby Streets
| Name | Average Price | Average Sqft | Distance |
|---|---|---|---|
| Heslington Lane | £ 400,000 | 0 | 0.00 KM |
| Washburn Close | £ 0 | 0 | 0.00 KM |
| Dower Court | £ 0 | 0 | 0.00 KM |
| Ewden Street | £ 775,000 | 0 | 0.00 KM |
| St Ann's Court | £ 0 | 0 | 0.00 KM |
Nearby Transport
| Name | NLC | TLC | Distance |
|---|---|---|---|
| York | 8263 | YRK | 3.13 KM |
| Poppleton | 8254 | POP | 9.46 KM |
Nearby Listings
| Address | Price | Type | Score | Distance |
|---|---|---|---|---|
| Broadway, Fulford, York | £ 210,000 | BUY | 5 / 10 | 0.00 KM |
| Danum Road, York, North Yorkshire, YO10 | £ 349,950 | BUY | 7 / 10 | 0.09 KM |
| Danum Road, Fulford, York, YO10 | £ 375,000 | BUY | 7 / 10 | 0.09 KM |
| Cornwall Drive, York, North Yorkshire, YO10 | £ 450,000 | BUY | 8 / 10 | 0.12 KM |
| Moorland Road, York, North Yorkshire, YO10 | £ 320,000 | BUY | 5 / 10 | 0.12 KM |
Nearby Properties
| Address | Price | Distance |
|---|---|---|
| 75 Danum Road | £ 200,000 | 0.06 KM |
| 49 Danum Road | £ 236,000 | 0.06 KM |
| 57 Danum Road | £ 185,000 | 0.06 KM |
| 73 Danum Road | £ 224,000 | 0.06 KM |
| 69 Danum Road | £ 179,000 | 0.06 KM |