BO
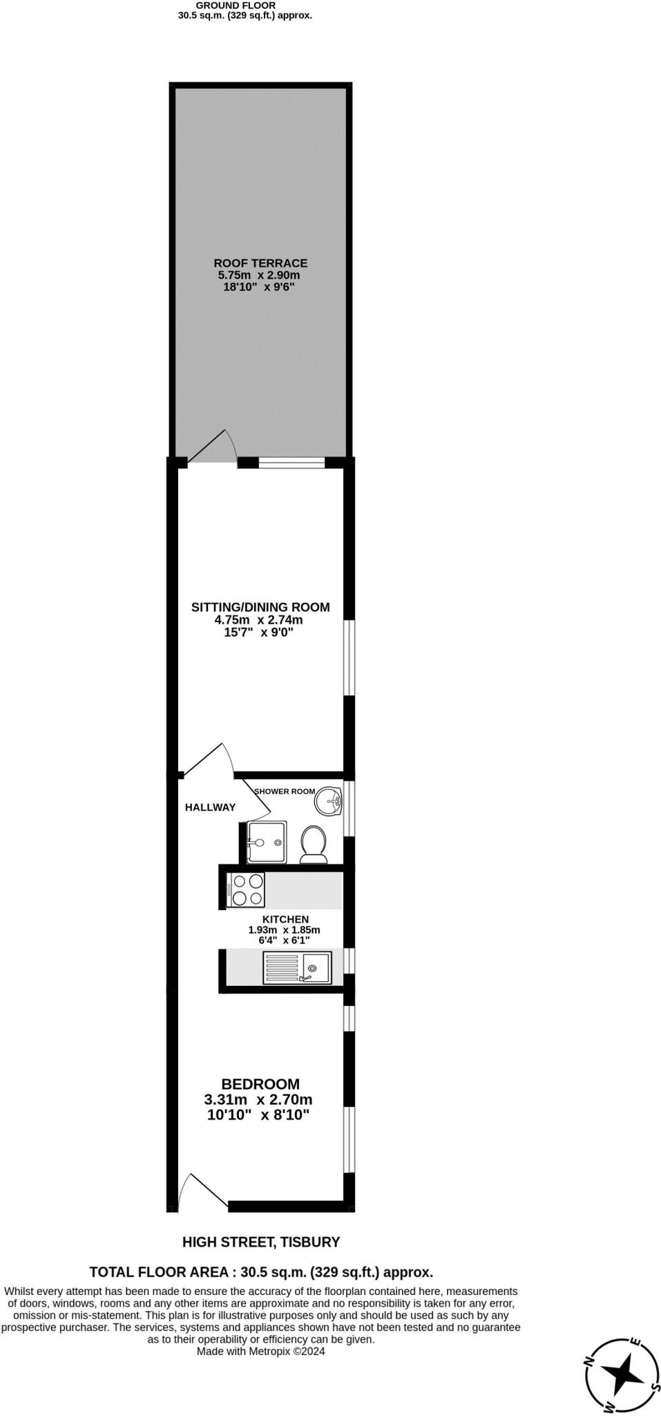
High Street, Tisbury
By Boatwrights Estate Agents
£ 149,500
Reviews
3 out of 5 stars
Boatwrights Estate Agents says ..
First floor apartment, with roof terrace, providing a fantastic opportunity for a first-time buyer, investment, or lock up and leave, close to village amenities & train station. No onward chain.
Property Oracle says ..
Therefore, we give this property 7 / 10. *Disclaimer: This is our option and does constitute a recommendation or financial advice. Do your own research. *
- Price
- 9
- Condition
- 8
- Location
- 8
- Land
- 6
- Bedrooms
- 1
- Bathrooms
- 1
- Sqft (est)
- 328.30
The heatmap indicates the level of crime in the area. The color of the heatmap indicates the crime severity and recency.
Metrics Year-on-Year
- Average area value
- 1,001,104.00 £Increased by 142.45 %
- Est sale value
- 252,791.00 £Decreased by 22.77 %
- Average area rental value
- 1,100.00 £/moDecreased by 48.24 %
- Est letting value
- 0.00 £/moDecreased by 100.00 %
- Est rental Yield
- 1.32 %Decreased by 78.64 %
- Crime Rate
- 121.00 %Unchanged by 0.00 %
from 412,911.00 £
from 327,315.10 £
from 2,125.00 £/mo
from 1,641.50 £/mo
from 6.18 %
from 121.00 %
Agent Activity
Boatwrights Estate Agents created the listing.
Nearby Schools
| Name | Type | Ofsted | Distance |
|---|---|---|---|
| Tisbury Children'S Centre | Children's Centre | 0.62 KM | |
| St John'S Church Of England Primary School, Tisbury | Voluntary Controlled School | Good | 0.80 KM |
| Wardour Catholic Primary School | Voluntary Aided School | Good | 3.48 KM |
| Chilmark And Fonthill Bishop Church Of England Aided Primary School | Voluntary Aided School | Requires improvement | 5.24 KM |
| Hindon Church Of England Voluntary Aided Primary School, St Mary'S And St John'S | Voluntary Aided School | Good | 5.97 KM |
Images
Nearby Streets
| Name | Average Price | Average Sqft | Distance |
|---|---|---|---|
| The Avenue | £ 375,000 | 0 | 0.00 KM |
| Jackson Terrrace | £ 0 | 0 | 0.00 KM |
| The Corry | £ 250,000 | 0 | 0.00 KM |
| Union Road | £ 0 | 0 | 0.00 KM |
| Brook Close | £ 0 | 0 | 0.00 KM |
Nearby Transport
| Name | NLC | TLC | Distance |
|---|---|---|---|
| Tisbury | 5798 | TIS | 0.38 KM |
Nearby Listings
| Address | Price | Type | Score | Distance |
|---|---|---|---|---|
| High Street, Tisbury | £ 149,500 | BUY | 7 / 10 | 0.00 KM |
| High Street, Tisbury | £ 98,500 | BUY | 6 / 10 | 0.00 KM |
| Tisbury | £ 525,000 | BUY | 7 / 10 | 0.02 KM |
| The Causeway, Tisbury | £ 150,000 | BUY | 6 / 10 | 0.06 KM |
| The Causeway, Tisbury | £ 140,000 | BUY | 6 / 10 | 0.06 KM |
Nearby Properties
| Address | Price | Distance |
|---|---|---|
| The Bays | £ 110,000 | 0.01 KM |
| Ladysmith House | £ 190,000 | 0.02 KM |
| 10 Becket Street | £ 250,000 | 0.08 KM |
| 10 Church Street Close | £ 362,500 | 0.10 KM |
| 2 Overhouse Drive | £ 425,000 | 0.12 KM |