Phillip Shaw says ..
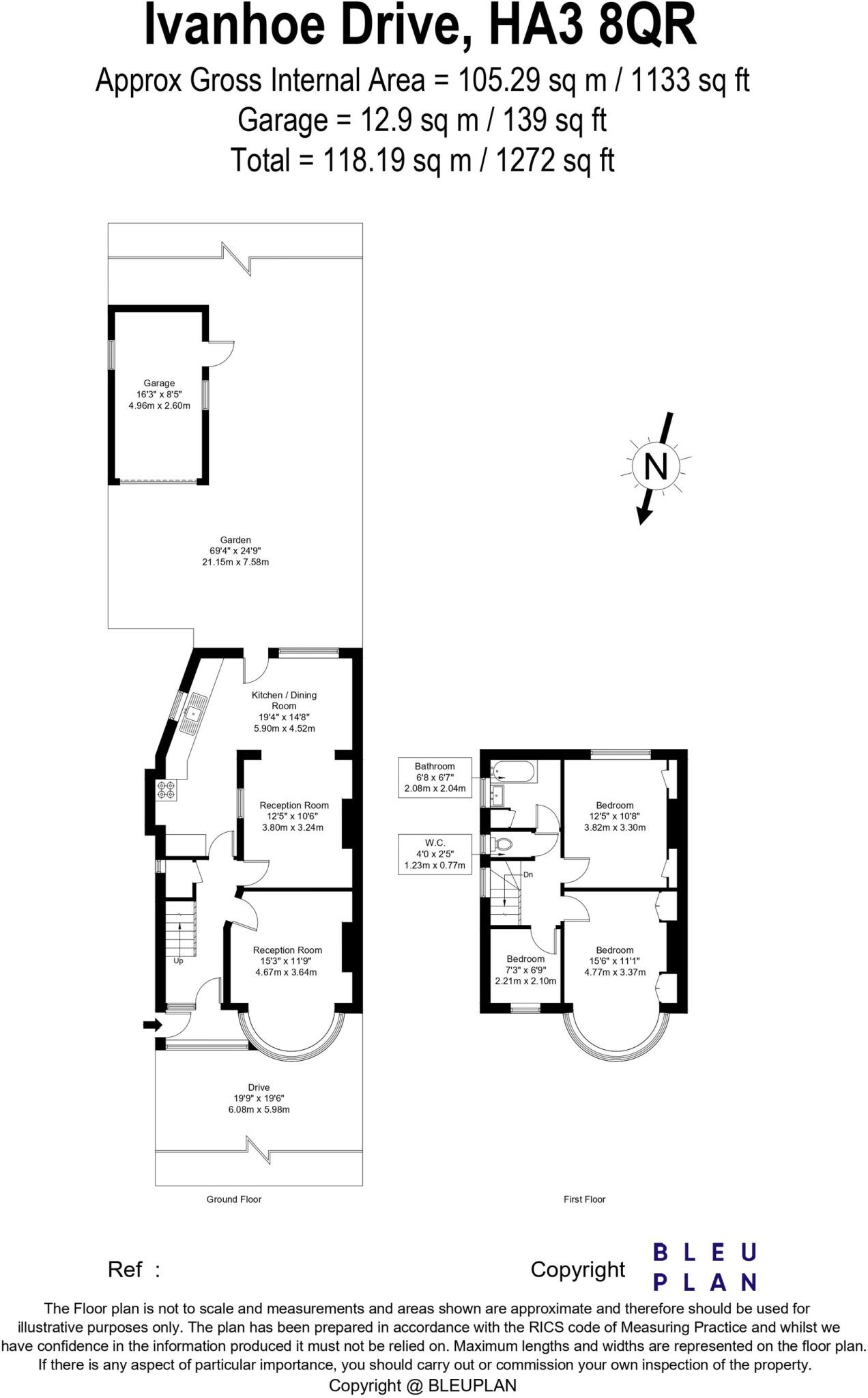
Phillip Shaw Ltd are delighted to offer this spacious three-bedroom family home on Ivanhoe Drive, HA3 — a fantastic opportunity for buyers looking for a full refurbishment project with excellent potential.Offering over 1,270 sq ft (including garage), this larger-than-average property features a r...
Property Oracle says ..
The property is a three-bedroom semi-detached house located in Kenton West, Harrow. The property is in need of renovation, but it has a garden and a garage. The property is located close to local schools and transportation links. The property is listed for £560,000, which is reasonable given the condition of the property and the average price for similar properties in the area.
Therefore, we give this property 5 / 10. *Disclaimer: This is our option and does constitute a recommendation or financial advice. Do your own research. *
- Price
- 7
- Condition
- 3
- Location
- 7
- Land
- 6
- Bedrooms
- 3
- Bathrooms
- 1
The heatmap indicates the level of crime in the area. The color of the heatmap indicates the crime severity and recency.
Metrics Year-on-Year
- Average area value
- 341,429.00 £Increased by 9.95 %
- Average area rental value
- 875.00 £/moDecreased by 18.53 %
- Est rental Yield
- 3.08 %Decreased by 25.78 %
- Crime Rate
- 1.00 %Unchanged by 0.00 %
Agent Activity
Phillip Shaw created the listing.
Nearby Schools
| Name | Type | Ofsted | Distance |
|---|---|---|---|
| Priestmead Primary School And Nursery | Academy Converter | 0.24 KM | |
| St Joseph'S Catholic Primary School | Academy Converter | 0.56 KM | |
| Elmgrove Primary School & Nursery | Community School | Good | 1.14 KM |
| Elmgrove | Children's Centre Linked Site | 1.24 KM | |
| Belmont School | Community School | Outstanding | 1.24 KM |
Images
Nearby Streets
| Name | Average Price | Average Sqft | Distance |
|---|---|---|---|
| Clifton Avenue | £ 0 | 0 | 0.00 KM |
| Kenton Lane | £ 0 | 0 | 0.00 KM |
| Burnham Close | £ 0 | 0 | 0.00 KM |
| Saint Leonards Avenue | £ 0 | 0 | 0.00 KM |
| Greenacres Drive | £ 0 | 0 | 0.00 KM |
Nearby Transport
| Name | NLC | TLC | Distance |
|---|---|---|---|
| Kenton | 1399 | KNT | 1.70 KM |
| Harrow And Wealdstone | 1397 | HRW | 2.06 KM |
| Harrow-On-The-Hill | 598 | HOH | 3.03 KM |
| South Kenton | 1453 | SOK | 3.12 KM |
| North Wembley | 1422 | NWB | 4.08 KM |
Nearby Listings
| Address | Price | Type | Score | Distance |
|---|---|---|---|---|
| Ivanhoe Drive, Harrow, HA3 | £ 560,000 | BUY | 5 / 10 | 0.00 KM |
| Tenby Avenue, Harrow | £ 725,000 | BUY | 7 / 10 | 0.07 KM |
| Tenby Avenue, Harrow | £ 725,000 | BUY | Unknown | 0.15 KM |
| Kingshill Drive, Harrow, HA3 | £ 640,000 | BUY | 7 / 10 | 0.17 KM |
| Elmore Drive, Harrow, HA3 | £ 840,000 | BUY | Unknown | 0.18 KM |
Nearby Properties
| Address | Price | Distance |
|---|---|---|
| 54 Ivanhoe Drive | £ 147,950 | 0.10 KM |
| 42 Ivanhoe Drive | £ 418,000 | 0.10 KM |
| 52 Ivanhoe Drive | £ 262,000 | 0.10 KM |
| 18 Ivanhoe Drive | £ 365,000 | 0.10 KM |
| 6 Ivanhoe Drive | £ 320,000 | 0.10 KM |