Chappells says ..
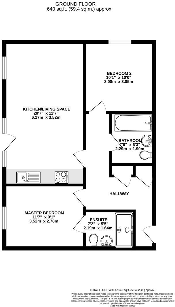
Offered with NO ONWARD CHAIN - Olympus House is a modern two double bedroom ground floor apartment, situated conveniently by the McArthurGlen Deseigner Outlet and Swindon Town Centre providing a great range of facilities. The apartment offers an open plan kitchen/family room, the kitchen is well ...
Property Oracle says ..
This property is a modern 2-bedroom, 2-bathroom apartment in Swindon, Wiltshire. It is in excellent condition with modern fixtures and fittings, and benefits from a convenient location near schools and the train station. While the plot size is relatively small, it includes access to a communal garden. The price seems reasonable compared to the average price per sqft, although the average property price in the area is higher.
Therefore, we give this property 7 / 10. *Disclaimer: This is our option and does constitute a recommendation or financial advice. Do your own research. *
- Price
- 7
- Condition
- 10
- Location
- 8
- Land
- 6
- Bedrooms
- 2
- Bathrooms
- 2
- Sqft (est)
- 509.04
- Lot (est)
- 640.00
The heatmap indicates the level of crime in the area. The color of the heatmap indicates the crime severity and recency.
Metrics Year-on-Year
- Average area value
- 245,600.00 £Increased by 19.16 %
- Est sale value
- 145,076.40 £Increased by 13.10 %
- Average area rental value
- 978.00 £/moDecreased by 9.78 %
- Est letting value
- 509.04 £/moUnchanged by 0.00 %
- Est rental Yield
- 4.78 %Decreased by 24.25 %
- Crime Rate
- 3.00 %Unchanged by 0.00 %
Agent Activity
Chappells created the listing.
Nearby Schools
| Name | Type | Ofsted | Distance |
|---|---|---|---|
| Utc Swindon | University Technical College | Requires improvement | 0.28 KM |
| Robert Le Kyng Primary School | Community School | Good | 0.72 KM |
| Ferndale Primary School & Nursery | Academy Converter | Good | 0.99 KM |
| Eotas Swindon | Pupil Referral Unit | Good | 1.02 KM |
| St Mary'S Catholic Primary School | Academy Converter | Good | 1.12 KM |
Images
Nearby Streets
| Name | Average Price | Average Sqft | Distance |
|---|---|---|---|
| Church Place | £ 0 | 0 | 0.00 KM |
| London Street | £ 0 | 0 | 0.00 KM |
| Oxford Street | £ 0 | 0 | 0.00 KM |
| Chester Street | £ 240,000 | 0 | 0.00 KM |
| Marlborough Street | £ 0 | 0 | 0.00 KM |
Nearby Transport
| Name | NLC | TLC | Distance |
|---|---|---|---|
| Swindon (Wilts) | 3333 | SWI | 1.08 KM |
Nearby Listings
| Address | Price | Type | Score | Distance |
|---|---|---|---|---|
| Fire Fly Avenue, Swindon, SN2 | £ 180,000 | BUY | 7 / 10 | 0.00 KM |
| Fire Fly Avenue, Swindon, SN2 | £ 180,000 | BUY | Unknown | 0.00 KM |
| Fire Fly Avenue, Swindon, SN2 | £ 140,000 | BUY | 6 / 10 | 0.00 KM |
| Olympus House, Firefly Avenue, Swindon, SN2 | £ 140,000 | BUY | 7 / 10 | 0.00 KM |
| Fire Fly Avenue, Swindon | £ 180,000 | BUY | 7 / 10 | 0.00 KM |
Nearby Properties
| Address | Price | Distance |
|---|---|---|
| 53 Bathampton Street | £ 111,000 | 0.42 KM |
| 23 Bathampton Street | £ 108,000 | 0.42 KM |
| 45 Bathampton Street | £ 120,000 | 0.42 KM |
| 17 Bathampton Street | £ 114,000 | 0.42 KM |
| 47 Bathampton Street | £ 144,000 | 0.42 KM |