Jacobs Steel says ..
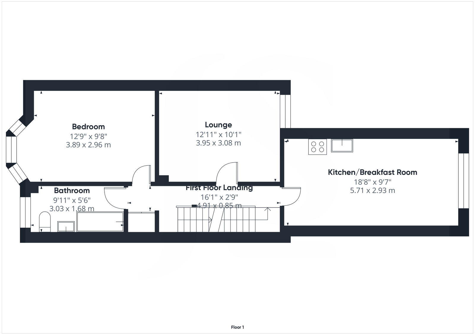
We are delighted to offer for sale this spacious three bedroom maisonette over three floors benefitting from feature roof terrace with views over River Adur and Sussex Yacht Club in the heart of Shoreham Town Centre
Property Oracle says ..
The property is located in Shoreham-by-Sea, a town in West Sussex, England. Based on the provided information and images, the property appears to be in need of some modernisation. The kitchen and bathrooms show signs of wear and tear, and the carpeting throughout the property looks dated. While the property benefits from a large roof terrace offering views of the River Adur and the marina, the lack of a traditional garden is a notable feature. The location is central, close to Shoreham-by-Sea train station, and several primary schools with good Ofsted ratings are within a reasonable distance. However, the provided data lacks information on the average price per square foot for the area, making a precise assessment of the list price’s reasonableness difficult. Considering the condition, location, and lack of a garden, a fair assessment would be needed to determine the property’s value accurately.
Therefore, we give this property 5 / 10. *Disclaimer: This is our option and does constitute a recommendation or financial advice. Do your own research. *
- Price
- 5
- Condition
- 6
- Location
- 8
- Land
- 2
- Bedrooms
- 3
- Bathrooms
- 1
- Sqft (est)
- 666.09
The heatmap indicates the level of crime in the area. The color of the heatmap indicates the crime severity and recency.
Metrics Year-on-Year
- Average area value
- 524,714.00 £Increased by 15.54 %
- Est sale value
- 410,977.53 £Increased by 48.67 %
- Average area rental value
- 1,989.00 £/moIncreased by 4.74 %
- Est letting value
- 1,332.18 £/moIncreased by 100.00 %
- Est rental Yield
- 4.55 %Decreased by 9.36 %
- Crime Rate
- 57.00 %Unchanged by 0.00 %
Agent Activity
Jacobs Steel created the listing.
Nearby Schools
| Name | Type | Ofsted | Distance |
|---|---|---|---|
| Buckingham Park Primary School | Community School | Good | 0.74 KM |
| Shoreham Beach Primary School | Community School | Good | 0.75 KM |
| Swiss Gardens Primary School | Community School | Good | 0.82 KM |
| St Peter'S Catholic Primary School, Shoreham-By-Sea | Voluntary Aided School | Good | 1.22 KM |
| Kingston Buci Children & Family Centre | Children's Centre | 1.36 KM |
Images
Nearby Streets
| Name | Average Price | Average Sqft | Distance |
|---|---|---|---|
| St Mary's Road | £ 349,975 | 0 | 0.00 KM |
| Western Road | £ 287,500 | 0 | 0.00 KM |
| John Street | £ 449,982 | 0 | 0.00 KM |
| High Street | £ 289,975 | 0 | 0.00 KM |
| Raleigh Close | £ 0 | 0 | 0.00 KM |
Nearby Transport
| Name | NLC | TLC | Distance |
|---|---|---|---|
| Shoreham-By-Sea | 5277 | SSE | 0.27 KM |
| Southwick | 5286 | SWK | 4.06 KM |
| Lancing | 5275 | LAC | 5.61 KM |
| Fishersgate | 5284 | FSG | 5.89 KM |
| Portslade | 5276 | PLD | 7.46 KM |
Nearby Listings
| Address | Price | Type | Score | Distance |
|---|---|---|---|---|
| New Road, Shoreham by Sea | £ 350,000 | BUY | 5 / 10 | 0.00 KM |
| New Road, Shoreham-by-Sea | £ 350,000 | BUY | 6 / 10 | 0.03 KM |
| New Road, Shoreham-By-Sea | £ 290,000 | BUY | 7 / 10 | 0.03 KM |
| New Road, Shoreham By Sea | £ 260,000 | BUY | 7 / 10 | 0.03 KM |
| Swanborough Court, New Road, Shoreham-by-sea, West Sussex,, BN43 | £ 275,000 | BUY | 6 / 10 | 0.03 KM |
Nearby Properties
| Address | Price | Distance |
|---|---|---|
| 404 Brighton Road | £ 250,000 | 0.01 KM |
| 390 Brighton Road | £ 137,500 | 0.01 KM |
| 401d Brighton Road | £ 80,000 | 0.03 KM |
| 21 New Road | £ 260,000 | 0.03 KM |
| 401b Brighton Road | £ 178,500 | 0.03 KM |