Windmill Close, Willesborough TN24 0AU
By Evolution Properties
£ 315,000
Reviews
3 out of 5 stars
Evolution Properties says ..
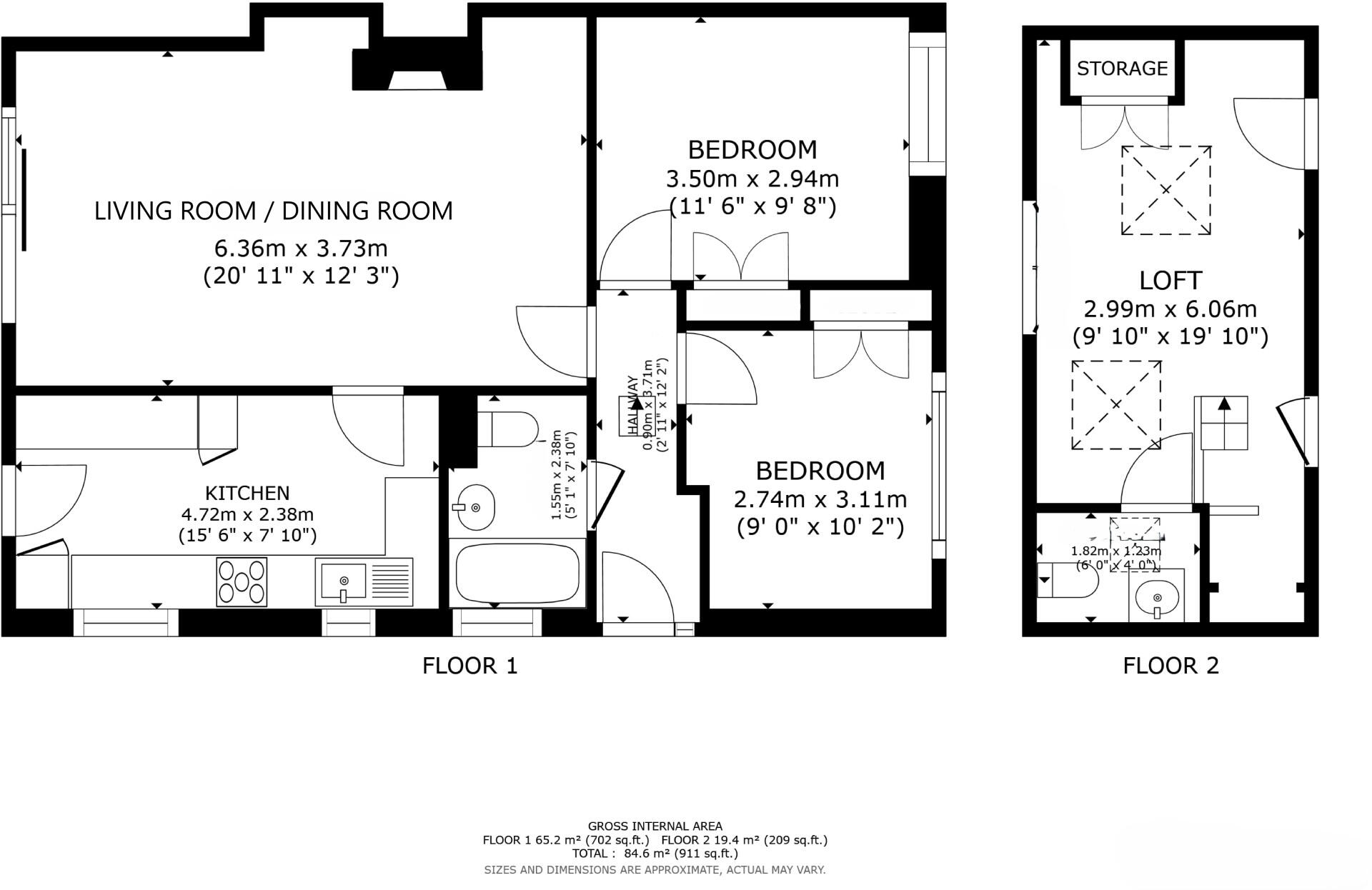
This two bedroom semi detached bungalow is offered for sale chain free. The property is situated in a sought after location in Willesborough and enjoys a good sized garden and detached garage with driveway for several vehicles.
Property Oracle says ..
This property is a 2-bedroom bungalow located in Willesborough, Ashford, Kent. The property benefits from a good-sized garden and is within easy reach of local amenities and transport links, including Ashford International Station. However, the property is in need of modernisation and updating. The kitchen and bathrooms appear dated and require refurbishment. The interior décor is tired, and the carpets appear worn. While the location is desirable and the garden is a plus, the condition of the property significantly impacts its overall value. The list price should be considered in light of the necessary renovations.
Therefore, we give this property 6 / 10. *Disclaimer: This is our option and does constitute a recommendation or financial advice. Do your own research. *
- Price
- 5
- Condition
- 4
- Location
- 8
- Land
- 7
- Bedrooms
- 2
- Bathrooms
- 1
- Sqft (est)
- 733.13
The heatmap indicates the level of crime in the area. The color of the heatmap indicates the crime severity and recency.
Metrics Year-on-Year
- Average area value
- 257,097.00 £Decreased by 8.25 %
- Est sale value
- 241,932.90 £Increased by 14.98 %
- Average area rental value
- 956.00 £/moIncreased by 1.92 %
- Est letting value
- 733.13 £/mo
- Est rental Yield
- 4.46 %Increased by 10.95 %
- Crime Rate
- 7.00 %Unchanged by 0.00 %
Agent Activity
Evolution Properties marked this listing as sold.
Evolution Properties created the listing.
Nearby Schools
| Name | Type | Ofsted | Distance |
|---|---|---|---|
| Willesborough Infant School | Foundation School | Good | 0.49 KM |
| Willesborough Junior School | Foundation School | Good | 0.53 KM |
| The Norton Knatchbull School | Academy Converter | Good | 1.22 KM |
| Cornfields School | Other Independent Special School | Good | 1.41 KM |
| The North School | Academy Converter | 1.69 KM |
Images
Nearby Streets
| Name | Average Price | Average Sqft | Distance |
|---|---|---|---|
| Trechard Close | £ 0 | 0 | 0.00 KM |
| Park Place | £ 0 | 0 | 0.00 KM |
| Willesborough Road | £ 0 | 0 | 0.00 KM |
| M20 | £ 0 | 0 | 0.00 KM |
| Foxglove Road | £ 0 | 0 | 0.00 KM |
Nearby Transport
| Name | NLC | TLC | Distance |
|---|---|---|---|
| Ashford International | 5004 | AFK | 2.75 KM |
| Wye | 5031 | WYE | 5.60 KM |
| Ham Street | 5037 | HMT | 9.80 KM |
Nearby Listings
| Address | Price | Type | Score | Distance |
|---|---|---|---|---|
| Harvey Road, Ashford, Kent, TN24 0AR | £ 325,000 | BUY | 6 / 10 | 0.07 KM |
| Harvey Road, Ashford TN24 | £ 375,000 | BUY | Unknown | 0.09 KM |
| Oast Meadow, Willesborough, Ashford TN24 | £ 285,000 | BUY | 5 / 10 | 0.11 KM |
| Oast Meadow, Ashford, TN24 | £ 350,000 | BUY | 6 / 10 | 0.11 KM |
| Field End, Willesborough, Ashford TN24 | £ 290,000 | BUY | 6 / 10 | 0.13 KM |
Nearby Properties
| Address | Price | Distance |
|---|---|---|
| 19 Windmill Close | £ 175,000 | 0.05 KM |
| 1 Windmill Close | £ 265,000 | 0.05 KM |
| 22 Windmill Close | £ 327,000 | 0.05 KM |
| 15 Windmill Close | £ 145,000 | 0.05 KM |
| 25 Windmill Close | £ 298,500 | 0.05 KM |