Virginia Road, Tower Hamlets, London, E2
By Winkworth
£ 900,000
Reviews
3 out of 5 stars
Winkworth says ..
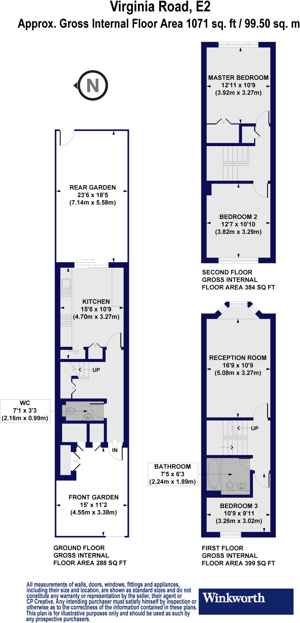
Located just moments from the vibrant Columbia Road, this spacious 3-bedroom freehold house offers 1,071 sq ft of well-designed living space, set across three levels and complete with an east facing private garden. On the ground floor, you’ll find a modern, fully fitted kitchen p...
Property Oracle says ..
This terraced property on Virginia Road, Tower Hamlets, offers a blend of modern interiors and a convenient location. The updated kitchen and bathrooms enhance its appeal, while the garden provides valuable outdoor space. Situated near well-regarded schools and transportation links, it caters well to families and commuters. However, the property’s relatively small size and high price per square foot compared to the local average suggest it may be overpriced. Potential buyers should weigh the benefits of the renovations and location against the cost.
Therefore, we give this property 6 / 10. *Disclaimer: This is our option and does constitute a recommendation or financial advice. Do your own research. *
- Price
- 4
- Condition
- 7
- Location
- 7
- Land
- 6
- Bedrooms
- 3
- Bathrooms
- 2
- Sqft (est)
- 396.87
The heatmap indicates the level of crime in the area. The color of the heatmap indicates the crime severity and recency.
Metrics Year-on-Year
- Average area value
- 599,375.00 £Decreased by 3.07 %
- Est sale value
- 380,598.33 £Increased by 15.54 %
- Average area rental value
- 2,567.00 £/moDecreased by 0.31 %
- Est letting value
- 1,587.48 £/moIncreased by 33.33 %
- Est rental Yield
- 5.14 %Increased by 2.80 %
- Crime Rate
- 3.00 %Unchanged by 0.00 %
Agent Activity
Winkworth created the listing.
Nearby Schools
| Name | Type | Ofsted | Distance |
|---|---|---|---|
| Columbia Market Nursery School | Local Authority Nursery School | Outstanding | 0.13 KM |
| Little Oaks Sure Start Children'S Centre | Children's Centre Linked Site | 0.21 KM | |
| Virginia Primary School | Community School | Outstanding | 0.29 KM |
| Columbia Primary School | Community School | Good | 0.38 KM |
| Mulberry Academy Shoreditch | Academy Converter | Outstanding | 0.40 KM |
Images
Nearby Streets
| Name | Average Price | Average Sqft | Distance |
|---|---|---|---|
| Strouts Place | £ 0 | 0 | 0.00 KM |
| Fellows Court | £ 0 | 0 | 0.00 KM |
| Fellows Court | £ 0 | 0 | 0.00 KM |
| Redchurch Street | £ 850,000 | 0 | 0.00 KM |
| Basing House Yard | £ 0 | 0 | 0.00 KM |
Nearby Transport
| Name | NLC | TLC | Distance |
|---|---|---|---|
| Hoxton | 1023 | HOX | 0.49 KM |
| Shoreditch High Street | 1024 | SDC | 0.55 KM |
| Haggerston | 1022 | HGG | 1.24 KM |
| Liverpool Street | 6965 | LST | 1.43 KM |
| Bethnal Green Rail | 6961 | BET | 1.57 KM |
Nearby Listings
| Address | Price | Type | Score | Distance |
|---|---|---|---|---|
| Virginia Road, Tower Hamlets, London, E2 | £ 900,000 | BUY | 6 / 10 | 0.00 KM |
| Alexandra Park Road, London, N10 | £ 750,000 | BUY | 7 / 10 | 0.00 KM |
| Virginia Road, Columbia Road | £ 925,000 | BUY | 8 / 10 | 0.01 KM |
| Columbia Road, Columbia Road, London, E2 | £ 550,000 | BUY | 7 / 10 | 0.06 KM |
| Columbia Road, Columbia Road, London, E2 | £ 550,000 | BUY | Unknown | 0.06 KM |
Nearby Properties
| Address | Price | Distance |
|---|---|---|
| 118 Virginia Road | £ 198,000 | 0.00 KM |
| 94 Virginia Road | £ 870,000 | 0.00 KM |
| 102 Virginia Road | £ 748,000 | 0.00 KM |
| 88 Virginia Road | £ 825,000 | 0.00 KM |
| 104 Virginia Road | £ 435,000 | 0.00 KM |