Main Street, Kimberley, Nottingham
By Robert Ellis
£ 100,000
Reviews
4 out of 5 stars
Robert Ellis says ..
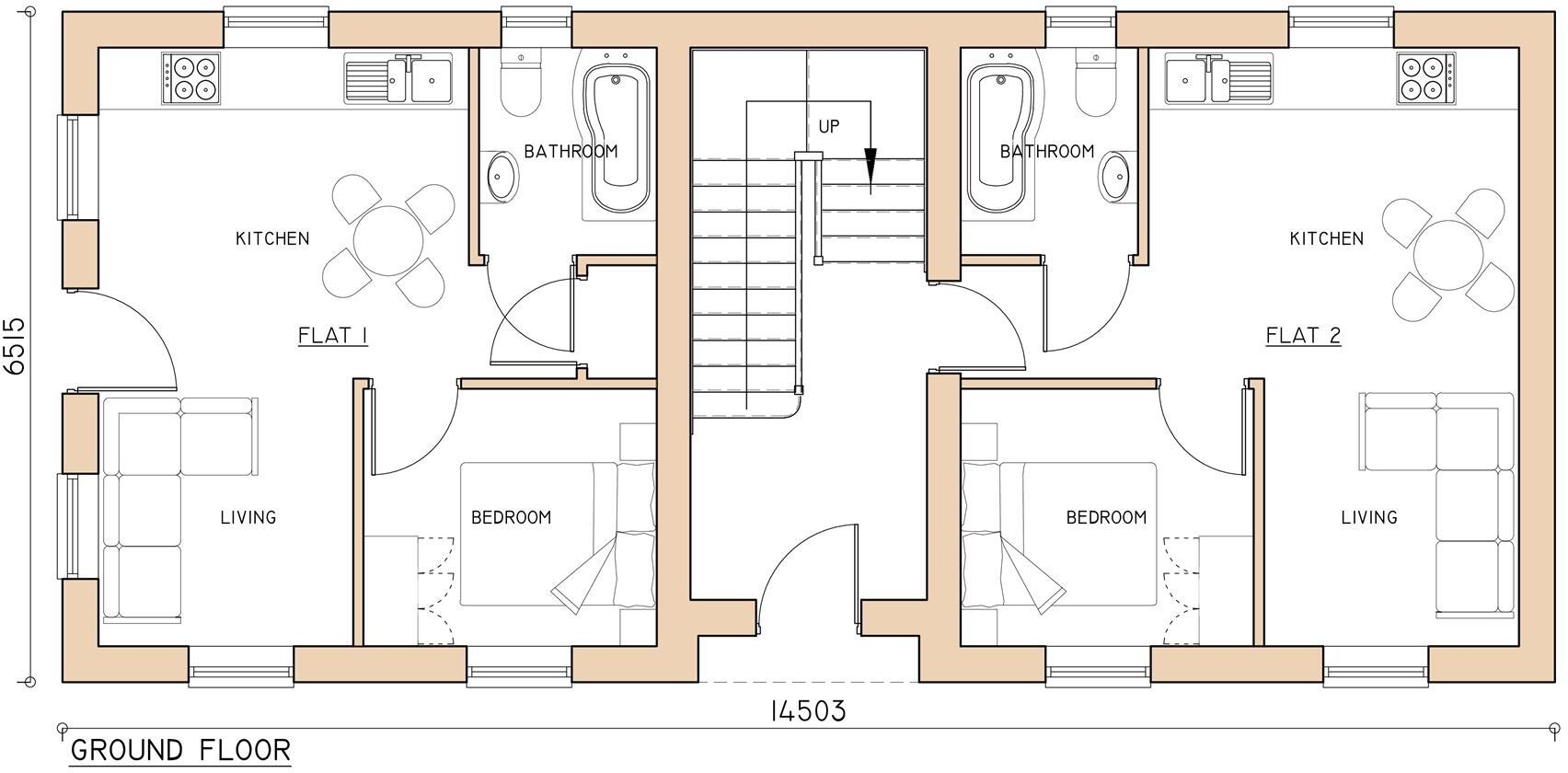
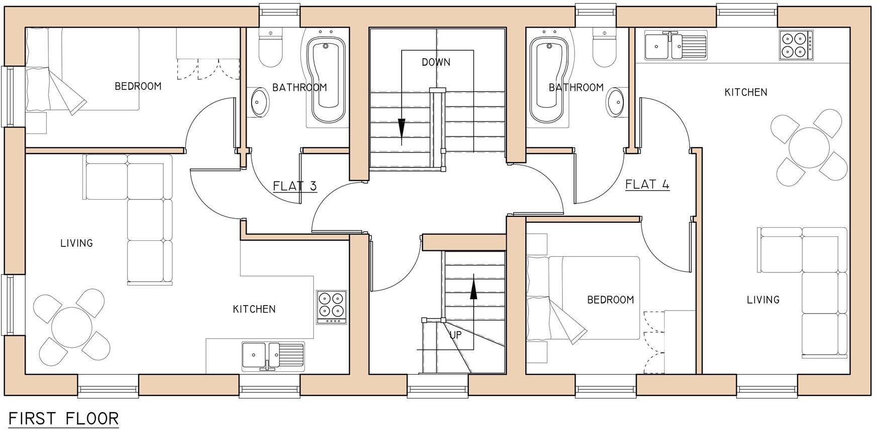
A rare opportunity to purchase a parcel of development land with planning permission passed for a three storey, five bedroom apartment scheme. Once built, this will be ideal for long term investment potential or open market sales to FTB and downsize market. Full planning permission passed. Cli...
Property Oracle says ..
This property is a large plot of land (14,503 sqft) located in Kimberley, Nottingham. The plot is significantly larger than average for the area. The location is good, close to local amenities and transportation. The list price of £100,000 is reasonable considering the size and potential for development, but the lack of existing buildings is a factor to consider. The site plan shows potential for a multi-unit development.
Therefore, we give this property 8 / 10. *Disclaimer: This is our option and does constitute a recommendation or financial advice. Do your own research. *
- Price
- 7
- Condition
- 0
- Location
- 8
- Land
- 10
- Bedrooms
- 0
- Bathrooms
- 0
- Lot (est)
- 14,503.00
The heatmap indicates the level of crime in the area. The color of the heatmap indicates the crime severity and recency.
Metrics Year-on-Year
- Average area value
- 291,000.00 £Increased by 17.15 %
- Average area rental value
- 834.00 £/moDecreased by 5.23 %
- Est rental Yield
- 3.44 %Decreased by 19.06 %
- Crime Rate
- 16.00 %Unchanged by 0.00 %
Agent Activity
Robert Ellis created the listing.
Nearby Schools
| Name | Type | Ofsted | Distance |
|---|---|---|---|
| Hollywell Primary School | Academy Converter | 0.65 KM | |
| The Kimberley School | Academy Converter | Good | 0.75 KM |
| Kimberley Primary School | Academy Converter | 0.95 KM | |
| Larkfields Junior School | Foundation School | Good | 1.76 KM |
| Gilthill Primary School | Academy Converter | 1.80 KM |
Images
Nearby Streets
| Name | Average Price | Average Sqft | Distance |
|---|---|---|---|
| Chapel Street | £ 0 | 0 | 0.00 KM |
| Station Road | £ 236,000 | 0 | 0.00 KM |
| Langley Close | £ 282,500 | 0 | 0.00 KM |
| Nettleship Road | £ 0 | 0 | 0.00 KM |
| Greens Lane | £ 0 | 0 | 0.00 KM |
Nearby Transport
| Name | NLC | TLC | Distance |
|---|---|---|---|
| Ilkeston | 7783 | ILN | 4.48 KM |
| Bulwell | 1865 | BLW | 6.95 KM |
| Langley Mill | 1761 | LGM | 8.28 KM |
| Hucknall | 1862 | HKN | 8.29 KM |
| Newstead | 1863 | NSD | 8.98 KM |
Nearby Listings
| Address | Price | Type | Score | Distance |
|---|---|---|---|---|
| Main Street, Kimberley, Nottingham | £ 100,000 | BUY | 8 / 10 | 0.00 KM |
| 1A Station Road, Kimberley , Nottingham, NG16 | £ 100,000 | BUY | 4 / 10 | 0.05 KM |
| Former Brewery Tower, Old Brewery Yard, Kimberley NG16 2YS | £ 50,000 | BUY | 5 / 10 | 0.06 KM |
| Station Road, Kimberley, Nottingham | £ 255,000 | BUY | 6 / 10 | 0.08 KM |
| Station Road Kimberley Nottinghamshire NG16 2NR | £ 265,000 | BUY | 7 / 10 | 0.08 KM |
Nearby Properties
| Address | Price | Distance |
|---|---|---|
| 10b Station Road | £ 120,000 | 0.07 KM |
| 18 Station Road | £ 141,000 | 0.07 KM |
| 5 Station Road | £ 150,000 | 0.07 KM |
| 3 Station Road | £ 190,000 | 0.07 KM |
| 8 Rock Side | £ 121,500 | 0.07 KM |