Chancellors says ..
Sold with no onward chain and situated in central Headington is this three bedroom home. The property offers well proportioned bedrooms, two reception rooms, driveway parking and a good size private rear garden with garage all whilst being situated just a 0.2 mile walk to Headington's amenities.
Property Oracle says ..
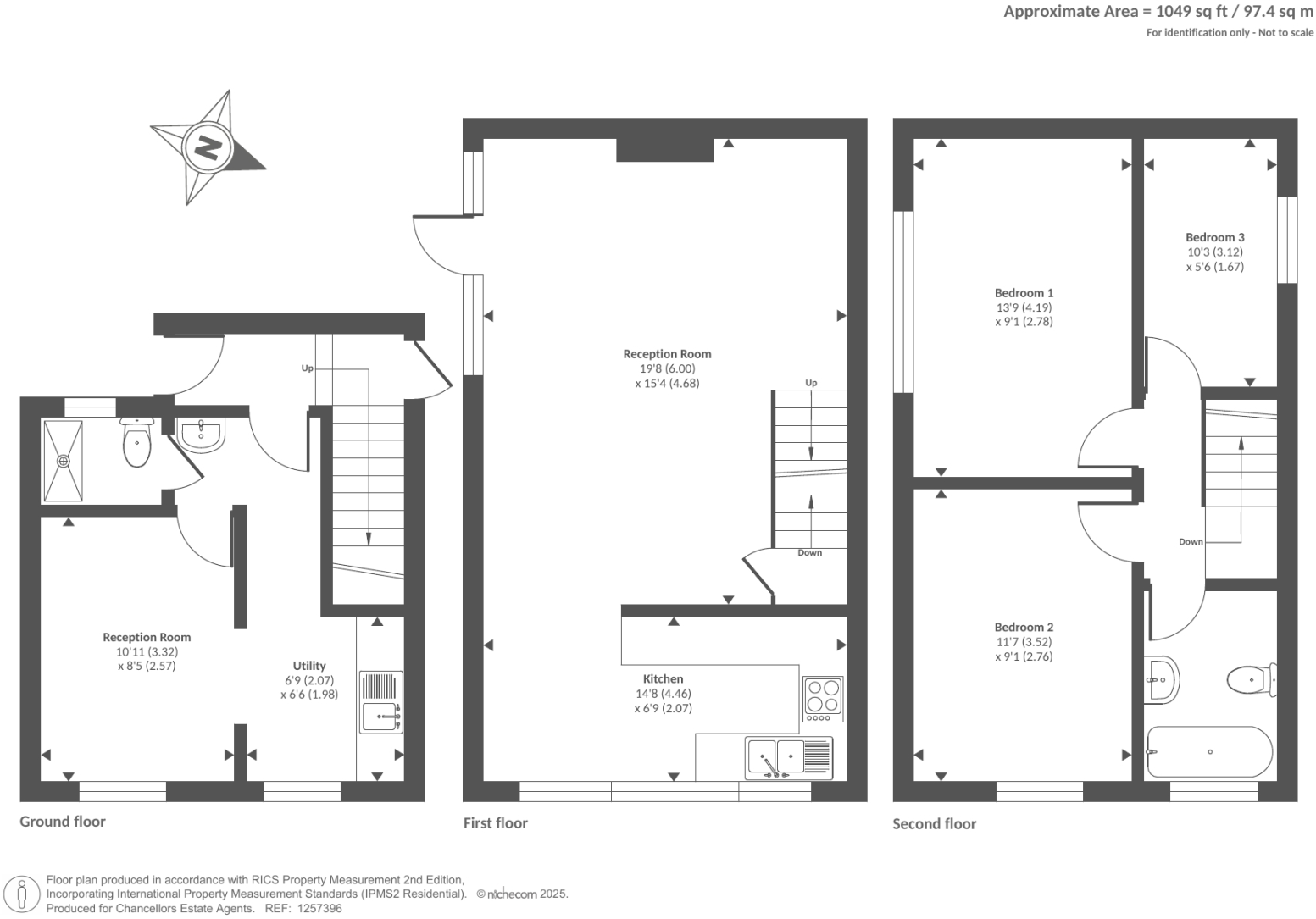
The property is a 3-bedroom, 2-bathroom end-of-terrace house located in Headington, Oxford, with a list price of £550,000. The property has a total area of 984.08 sqft and sits on a plot of 1,049 sqft.
The location in Headington, Oxford, benefits from its proximity to several schools, including St Andrew’s Church of England Primary School (Good Ofsted rating) and Windmill Primary School (Outstanding Ofsted rating), both within a kilometer. Oxford Brookes University is also relatively close, making the property potentially attractive to students or university staff. Several train stations are within a reasonable distance, providing good transport links.
Based on the provided images, the property appears to be in need of significant renovation. The interior shows outdated fixtures, worn flooring, and requires a complete redecoration. The kitchen and bathrooms are particularly dated and in need of modernisation. The garden is overgrown and requires attention.
The property’s list price of £550,000 is slightly above the average house price in the area (£536,963). However, the average house size in the area is significantly larger (1,489 sqft compared to 984.08 sqft). Considering the property’s condition and the need for extensive renovation, the price may be considered reasonable, although a lower price might be more appropriate given the required works. Further analysis of comparable properties in similar condition and size would be needed to confirm this.
Considering the above, the property is reasonably priced for the area, but requires significant renovation. The location is convenient due to nearby schools and transport links. The small garden is included in the sale.
Therefore, we give this property 5 / 10. *Disclaimer: This is our option and does constitute a recommendation or financial advice. Do your own research. *
- Price
- 6
- Condition
- 3
- Location
- 8
- Land
- 4
- Bedrooms
- 3
- Bathrooms
- 2
- Sqft (est)
- 984.08
- Lot (est)
- 1,049.00
The heatmap indicates the level of crime in the area. The color of the heatmap indicates the crime severity and recency.
Metrics Year-on-Year
- Average area value
- 830,000.00 £Increased by 35.78 %
- Est sale value
- 811,866.00 £Increased by 59.57 %
- Average area rental value
- 2,009.00 £/moIncreased by 17.62 %
- Est letting value
- 984.08 £/moUnchanged by 0.00 %
- Est rental Yield
- 2.90 %Decreased by 13.43 %
- Crime Rate
- 18.00 %Unchanged by 0.00 %
Agent Activity
Chancellors marked this listing as sold.
Chancellors created the listing.
Nearby Schools
| Name | Type | Ofsted | Distance |
|---|---|---|---|
| St Andrew'S Church Of England Primary School | Voluntary Controlled School | Good | 0.66 KM |
| Ruskin College | Further Education | Good | 0.72 KM |
| Headington School | Other Independent School | 0.75 KM | |
| Windmill Primary School | Community School | Outstanding | 0.97 KM |
| Oxford Brookes University | Higher Education Institutions | Good | 1.06 KM |
Images
Nearby Streets
| Name | Average Price | Average Sqft | Distance |
|---|---|---|---|
| Ingle Close | £ 775,000 | 0 | 0.00 KM |
| North Way | £ 0 | 0 | 0.00 KM |
| Brookside | £ 0 | 0 | 0.00 KM |
| Cecil Sharp Place | £ 0 | 0 | 0.00 KM |
| Old Road | £ 850,000 | 0 | 0.00 KM |
Nearby Transport
| Name | NLC | TLC | Distance |
|---|---|---|---|
| Oxford | 3115 | OXF | 6.12 KM |
| Islip | 3110 | ISP | 7.79 KM |
| Oxford Parkway | 3121 | OXP | 8.22 KM |
| Radley | 3118 | RAD | 8.63 KM |
Nearby Listings
| Address | Price | Type | Score | Distance |
|---|---|---|---|---|
| Headington, Oxford, OX3 | £ 550,000 | BUY | 5 / 10 | 0.00 KM |
| Horwood Close, Headington, OX3 | £ 585,000 | BUY | 6 / 10 | 0.05 KM |
| Central Headington, Oxford, OX3 | £ 450,000 | BUY | Unknown | 0.05 KM |
| Blackburn Close, Oxford, ox3 | £ 88,750 | BUY | 6 / 10 | 0.05 KM |
| Horwood Close, Headington, OX3 | £ 400,000 | BUY | 7 / 10 | 0.11 KM |
Nearby Properties
| Address | Price | Distance |
|---|---|---|
| 27 Horwood Close | £ 575,000 | 0.07 KM |
| 35 Horwood Close | £ 565,000 | 0.07 KM |
| 14 Horwood Close | £ 207,000 | 0.07 KM |
| 33 Horwood Close | £ 270,000 | 0.07 KM |
| 22 Horwood Close | £ 331,000 | 0.07 KM |