Gunnislake, Cornwall
KI

Gunnislake, Cornwall

By Kirby Estate Agents

£ 210,000

Reviews

2 out of 5 stars

Kirby Estate Agents says ..

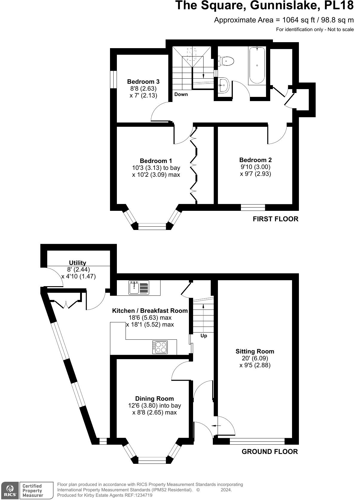
Quirky CHARACTER cottage in the heart of GUNNISLAKE, Cornwall with a BESPOKE hand-built kitchen/diner, 2 RECEPTION rooms, 3 BEDROOMS and separate utility room.

Property Oracle says ..

This three-bedroom property in Gunnislake, Cornwall, presents a charming and well-maintained interior. The renovations are visible throughout the house, particularly in the kitchen and bathroom. These spaces feature modern appliances and updated finishes. The inclusion of two wood-burning stoves is a plus.

However, the lack of a garden is a significant drawback. The plot size is listed as zero. For families or those seeking outdoor space, this may be a major consideration. The property is within walking distance of Gunnislake Primary Academy, but it’s crucial to note that the school is rated as ‘Requires Improvement’ according to the provided Ofsted rating. Gunnislake railway station is relatively close, offering transport links.

Overall, the property offers a comfortable interior with modern upgrades, but the lack of outdoor space and the school’s Ofsted rating should be carefully evaluated by potential buyers. The price seems fairly reasonable in the context of the market, but more local data is needed for a truly accurate assessment. The picturesque setting of Gunnislake in Cornwall adds to the property’s appeal, however, buyers must weigh this against the small plot size.

Therefore, we give this property 5 / 10. *Disclaimer: This is our option and does constitute a recommendation or financial advice. Do your own research. *

Price
7
Condition
7
Location
6
Land
1
Bedrooms
3
Bathrooms
1
Sqft (est)
1,064.00

The heatmap indicates the level of crime in the area. The color of the heatmap indicates the crime severity and recency.

Metrics Year-on-Year

Average area value
330,631.00 £
Decreased by 2.23 %
from 338,171.00 £
Est sale value
307,496.00 £
Increased by 27.88 %
from 240,464.00 £
Average area rental value
934.00 £/mo
Increased by 5.90 %
from 882.00 £/mo
Est letting value
0.00 £/mo
from 0.00 £/mo
Est rental Yield
3.39 %
Increased by 8.31 %
from 3.13 %
Crime Rate
55.00 %
Unchanged by 0.00 %
from 55.00 %

Agent Activity

  • Kirby Estate Agents created the listing.

Nearby Schools

NameTypeOfstedDistance
Gunnislake Primary AcademyAcademy ConverterRequires improvement0.08 KM
The Lowen SchoolOther Independent Special School0.54 KM
Delaware Children'S CentreChildren's Centre Linked Site1.63 KM
Delaware Primary AcademyAcademy Sponsor LedGood1.63 KM
Gulworthy Primary SchoolCommunity SchoolOutstanding2.66 KM

Images

Front Elevation Cosy Snug Room Cosy Snug Room Sitting Room Bespoke Kitchen Breakfast Room Main Bedroom Bedroom 3 Views to Front Sitting/Dining Room Large Shuttered Window Utility Room Entrance Hall Breakfast Room with Bespoke Cabinetry Kitchen Landing with Sky Light Main Bedroom Bedroom Two Bathroom Side Elevation Neighbouring Properties Wood House Side Wisteria

Nearby Streets

NameAverage PriceAverage SqftDistance
Russell Close £ 000.00 KM
Ivy Cottages £ 000.00 KM
Laurel Cottages £ 000.00 KM
New Bridge £ 625,00000.00 KM
North Dimson Cottages £ 000.00 KM

Nearby Transport

NameNLCTLCDistance
Gunnislake3563GSL1.04 KM
Calstock3562CSK2.92 KM
Bere Alston3549BAS4.49 KM
Bere Ferrers3550BFE8.80 KM

Nearby Listings

AddressPriceTypeScoreDistance
Gunnislake, Cornwall £ 210,000BUY5 / 100.00 KM
The Square, Gunnislake £ 350,000BUY6 / 100.03 KM
Fore Street, Gunnislake, PL18 £ 350,000BUY7 / 100.04 KM
Chapel Court, Chapel Street, Gunnislake, Cornwall £ 170,000BUY7 / 100.05 KM
Starling Lane, St. Anns Chapel, Gunnislake £ 250,000BUY7 / 100.08 KM

Nearby Properties

AddressPriceDistance
1 The Square £ 311,0000.03 KM
Old Bank Cottage £ 84,0000.03 KM
The Cedars £ 359,0000.03 KM
4 The Square £ 80,7500.03 KM
5 The Square £ 145,0000.03 KM