Oak View, Crosbie Road, Harborne, B17 9BE
MC

Oak View, Crosbie Road, Harborne, B17 9BE

By McHugo Homes

£ 925,000

Reviews

3 out of 5 stars

McHugo Homes says ..

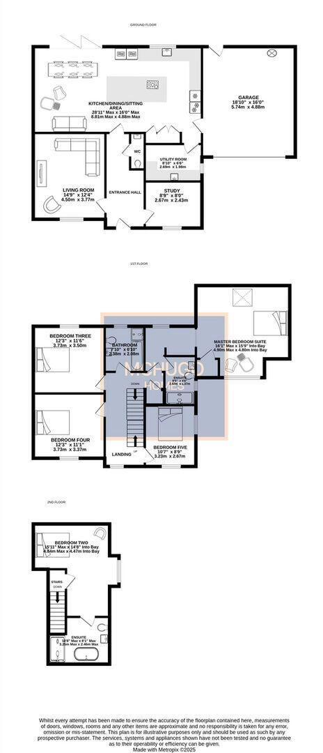
A detached family home in a prime location. Boasting luxurious interiors, high-end bespoke kitchen, three bespoke bathrooms, driveway, and garage.

Property Oracle says ..

This is a modern detached property located on Crosbie Road in Harborne, Birmingham. The house features five bedrooms and three bathrooms, making it suitable for a family. The interior is in excellent condition, with modern fixtures and fittings. The property also benefits from a garden. While the asking price of £925,000 is above the average for the area, the property’s condition and location justify the premium.

Therefore, we give this property 7 / 10. *Disclaimer: This is our option and does constitute a recommendation or financial advice. Do your own research. *

Price
6
Condition
9
Location
8
Land
7
Bedrooms
5
Bathrooms
3
Sqft (est)
494.82

The heatmap indicates the level of crime in the area. The color of the heatmap indicates the crime severity and recency.

Metrics Year-on-Year

Average area value
430,989.00 £
Increased by 6.80 %
from 403,536.00 £
Est sale value
243,946.26 £
Increased by 74.20 %
from 140,034.06 £
Average area rental value
1,439.00 £/mo
Increased by 15.21 %
from 1,249.00 £/mo
Est letting value
494.82 £/mo
from 0.00 £/mo
Est rental Yield
4.01 %
Increased by 8.09 %
from 3.71 %
Crime Rate
1.00 %
Unchanged by 0.00 %
from 1.00 %

Agent Activity

  • McHugo Homes created the listing.

Nearby Schools

NameTypeOfstedDistance
Queen Alexandra CollegeSpecial Post 16 InstitutionGood0.58 KM
Baskerville SchoolFoundation Special SchoolGood0.73 KM
St Peters Cofe Primary SchoolVoluntary Aided SchoolGood0.80 KM
Harborne Primary SchoolCommunity SchoolOutstanding0.85 KM
St Mary'S Catholic Primary SchoolVoluntary Aided SchoolOutstanding0.94 KM

Images

20250212103535.jpg 20250212103548.jpg 20250212103554.jpg 20250212103553.jpg 20250212103550.jpg 20250212103549.jpg 20250212103552.jpg 20250212103551.jpg 20250212103556.jpg 20250212103557.jpg 20250212103544.jpg 20250212103547.jpg 20250212103541.jpg 20250212103539.jpg 20250212103558.jpg 20250212103536.jpg 20250212103632.jpg 20250522093101.jpg 20250901022859.jpg 20250212103540.jpg 20250212103543.jpg 20250212103546.jpg 20250212103537.jpg 20250212103630.jpg 20250212103555.jpg

Nearby Streets

NameAverage PriceAverage SqftDistance
The Square £ 000.00 KM
Wentworth Road £ 000.00 KM
Carless Avenue £ 435,00000.00 KM
Woodville Road £ 980,00000.00 KM
Barons Close £ 159,00000.00 KM

Nearby Transport

NameNLCTLCDistance
University (Birmingham)4504UNI2.85 KM
Selly Oak1105SLY3.46 KM
Smethwick Rolfe Street1150SMR4.07 KM
The Hawthorns4523THW4.92 KM
Smethwick Galton Bridge1114SGB5.03 KM

Nearby Listings

AddressPriceTypeScoreDistance
Oak View, Crosbie Road, Harborne, B17 9BE £ 925,000BUY7 / 100.00 KM
Wentworth Road, Birmingham £ 950,000BUY8 / 100.09 KM
Wentworth Road, Harborne, Birmingham, B17 9SU £ 210,000BUYUnknown0.11 KM
Wentworth Park Avenue, Birmingham, B17 £ 450,000BUY6 / 100.14 KM
Wentworth Park Avenue, Harborne, Birmingham, West Midlands, B17 9QU £ 425,000BUY6 / 100.15 KM

Nearby Properties

AddressPriceDistance
28 Crosbie Road £ 825,0000.07 KM
48 Crosbie Road £ 489,0000.07 KM
20 Crosbie Road £ 420,0000.07 KM
24 Crosbie Road £ 560,0000.07 KM
26 Crosbie Road £ 805,0000.07 KM