The Norfolk Agents says ..
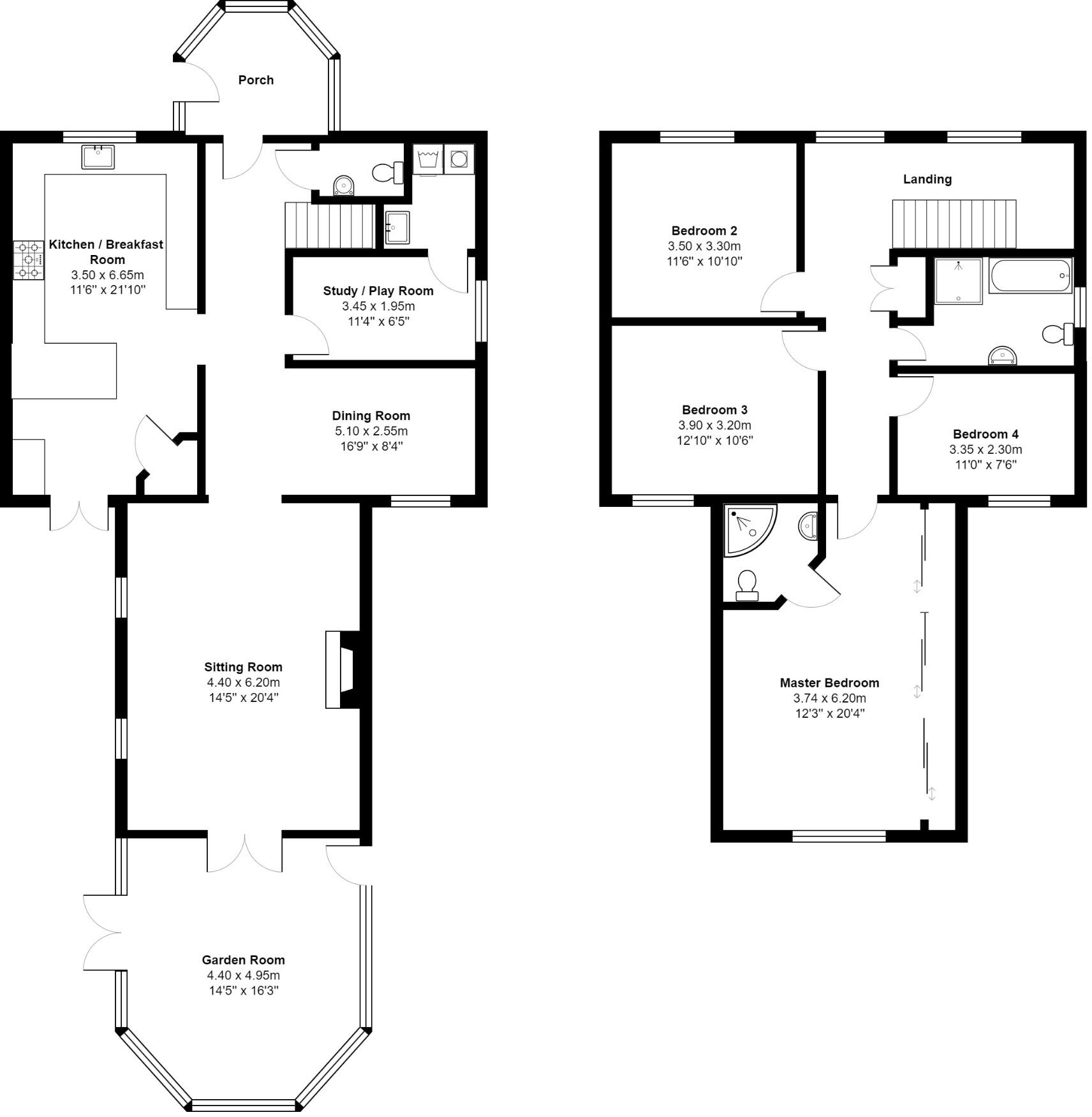
A spacious & extensively refurbished family home, with a private 70ft rear garden, driveway & double garage. Newly fitted & high-quality kitchen, 4 reception rooms & 4 bedrooms with master en-suite.
Property Oracle says ..
This property is a 4 bedroom detached house located in Heacham, Norfolk. It benefits from a modern kitchen and bathrooms, and has been recently renovated to a high standard. The property also includes a large garden with a patio area, hot tub, and pergola. There is also a double garage. Heacham is a popular village with good local amenities and schools, making this an attractive property for families. However, the lack of plot size information makes it difficult to accurately assess the land score. The list price is higher than the average price for the area, but this is expected given the size, condition, and features of the property. Further investigation into comparable properties in the area would be needed to fully assess the price score.
Therefore, we give this property 7 / 10. *Disclaimer: This is our option and does constitute a recommendation or financial advice. Do your own research. *
- Price
- 7
- Condition
- 9
- Location
- 8
- Land
- 7
- Bedrooms
- 4
- Bathrooms
- 2
- Sqft (est)
- 1,583.26
The heatmap indicates the level of crime in the area. The color of the heatmap indicates the crime severity and recency.
Metrics Year-on-Year
- Average area value
- 245,074.00 £Decreased by 15.93 %
- Est sale value
- 372,066.10 £Decreased by 37.50 %
- Average area rental value
- 1,254.00 £/moDecreased by 5.43 %
- Est letting value
- 1,583.26 £/moUnchanged by 0.00 %
- Est rental Yield
- 6.14 %Increased by 12.45 %
- Crime Rate
- 25.00 %Unchanged by 0.00 %
Agent Activity
The Norfolk Agents created the listing.
Nearby Schools
| Name | Type | Ofsted | Distance |
|---|---|---|---|
| Heacham Infant And Nursery School | Academy Converter | Good | 0.45 KM |
| Heacham Junior School | Academy Converter | Good | 0.49 KM |
| Hunstanton Primary School | Foundation School | Good | 2.92 KM |
| Smithdon High School | Academy Sponsor Led | Requires improvement | 3.31 KM |
| Hunstanton Children'S Centre | Children's Centre | 3.38 KM |
Images
Nearby Streets
| Name | Average Price | Average Sqft | Distance |
|---|---|---|---|
| Malthouse Close | £ 0 | 0 | 0.00 KM |
| The Drift | £ 0 | 0 | 0.00 KM |
| Blackthorn Close | £ 0 | 0 | 0.00 KM |
| Butterfield Meadow | £ 485,000 | 0 | 0.00 KM |
Nearby Listings
| Address | Price | Type | Score | Distance |
|---|---|---|---|---|
| Collins Lane, Heacham | £ 550,000 | BUY | 7 / 10 | 0.00 KM |
| Heacham | £ 275,000 | BUY | 7 / 10 | 0.05 KM |
| Malthouse Crescent, Heacham, King's Lynn, Norfolk, PE31 | £ 475,000 | BUY | 7 / 10 | 0.10 KM |
| Lords Lane, Heacham | £ 365,000 | BUY | 8 / 10 | 0.16 KM |
| Heacham | £ 300,000 | BUY | 6 / 10 | 0.18 KM |
Nearby Properties
| Address | Price | Distance |
|---|---|---|
| 11 Malthouse Crescent | £ 150,000 | 0.08 KM |
| 13 Malthouse Crescent | £ 114,950 | 0.08 KM |
| 16 Malthouse Crescent | £ 37,000 | 0.08 KM |
| 3 Cherrytree Close | £ 142,000 | 0.09 KM |
| 5 Cherrytree Close | £ 150,000 | 0.09 KM |