Dartmouth Road, Willesden Green, London, NW2
By Foxtons
£ 1,200,000
Reviews
4 out of 5 stars
Foxtons says ..
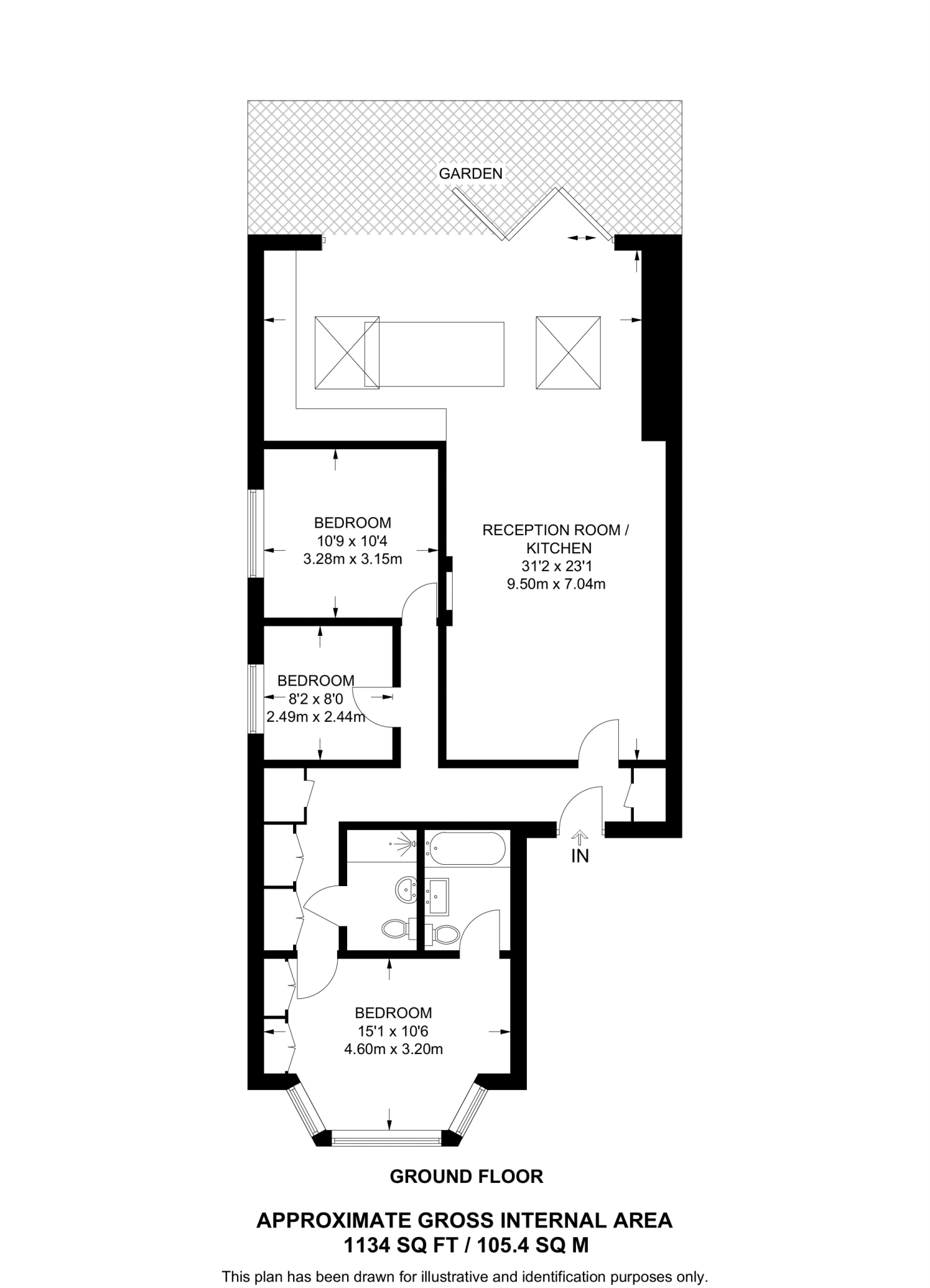
This immaculate 3 bedroom ground floor flat is set within a fabulous period conversion and boasts stunning living space, amazing eat in kitchen with bi folding doors to garden and lovely main bedroom with en suite.
Property Oracle says ..
The property is located on Dartmouth Road, Willesden Green, in the London Borough of Brent. Willesden Green benefits from excellent transport links, with Willesden Green tube station (Jubilee Line) providing easy access to central London. The area also has a good selection of shops, restaurants, and local amenities. Several well-regarded schools are within a reasonable distance, including Anson Primary School and Convent of Jesus and Mary RC Infant School, both rated ‘Good’ or ‘Outstanding’ by Ofsted. This contributes to a positive family-friendly environment.
Based on the provided photographs, the property appears to be in excellent condition. It has undergone a significant extension and modernisation, resulting in a contemporary and well-maintained interior. The kitchen and bathrooms are modern and stylish, and the property benefits from a recently constructed rear extension, creating additional living space. The property’s presentation suggests minimal need for repair or renovation.
The property includes a well-maintained rear garden, adding to its appeal and providing valuable outdoor space. The garden appears to be of a reasonable size for a property in this location.
The list price of £1,200,000 is significantly higher than the average price for the area (£813,722). However, the property is considerably larger than the average property size (1,306.42 sqft vs 1,139 sqft). The average price per square foot in the area is £714, and this property is likely priced above this average due to its superior condition, recent extension and modernisation, and the inclusion of a garden. Nearby comparable properties support this assessment, with similar properties selling for higher prices reflecting the premium commanded by properties in good condition with outdoor space in desirable locations. The price point may be justified by the high standard of finish and the desirable location.
Therefore, we give this property 8 / 10. *Disclaimer: This is our option and does constitute a recommendation or financial advice. Do your own research. *
- Price
- 7
- Condition
- 9
- Location
- 9
- Land
- 7
- Bedrooms
- 3
- Bathrooms
- 2
- Sqft (est)
- 1,306.42
The heatmap indicates the level of crime in the area. The color of the heatmap indicates the crime severity and recency.
Metrics Year-on-Year
- Average area value
- 1,318,000.00 £Increased by 70.66 %
- Est sale value
- 1,926,969.50 £Increased by 119.49 %
- Average area rental value
- 1,474.00 £/moDecreased by 27.60 %
- Est letting value
- 1,306.42 £/moUnchanged by 0.00 %
- Est rental Yield
- 1.34 %Decreased by 57.59 %
- Crime Rate
- 5.00 %Unchanged by 0.00 %
Agent Activity
Foxtons created the listing.
Nearby Schools
| Name | Type | Ofsted | Distance |
|---|---|---|---|
| Anson Primary School | Community School | Good | 0.49 KM |
| Convent Of Jesus And Mary Rc Infant School | Voluntary Aided School | Outstanding | 0.92 KM |
| Malorees Junior School | Foundation School | Good | 0.96 KM |
| Queens Park Community School | Academy Converter | Good | 0.97 KM |
| The Avenue | Free Schools Special | 0.98 KM |
Images
Nearby Streets
| Name | Average Price | Average Sqft | Distance |
|---|---|---|---|
| Clovelly Court | £ 0 | 0 | 0.00 KM |
| Brondesbury Park | £ 2,583,333 | 0 | 0.00 KM |
| Gardiner Avenue | £ 0 | 0 | 0.00 KM |
| Sylvan Grove | £ 0 | 0 | 0.00 KM |
| Staverton Road | £ 0 | 0 | 0.00 KM |
Nearby Transport
| Name | NLC | TLC | Distance |
|---|---|---|---|
| Cricklewood | 1519 | CRI | 1.23 KM |
| Brondesbury Park | 1438 | BSP | 1.37 KM |
| Kensal Rise | 1448 | KNR | 1.64 KM |
| Brondesbury | 1437 | BSY | 1.90 KM |
| Kensal Green | 1447 | KNL | 2.19 KM |
Nearby Listings
| Address | Price | Type | Score | Distance |
|---|---|---|---|---|
| Dartmouth Road, Willesden Green, London, NW2 | £ 1,200,000 | BUY | 8 / 10 | 0.00 KM |
| Dartmouth Road,London,NW2 4EN | £ 999,950 | BUY | Unknown | 0.03 KM |
| Walm Lane, London, NW2 | £ 499,000 | BUY | 5 / 10 | 0.13 KM |
| Chatsworth Road, Mapesbury, NW2 | £ 2,300,000 | BUY | 7 / 10 | 0.15 KM |
| Lydford Road, Mapesbury, NW2 | £ 1,500,000 | BUY | 7 / 10 | 0.15 KM |
Nearby Properties
| Address | Price | Distance |
|---|---|---|
| 143 Dartmouth Road | £ 500,000 | 0.03 KM |
| 94 Dartmouth Road | £ 557,500 | 0.09 KM |
| 110a Dartmouth Road | £ 313,000 | 0.09 KM |
| 118a Dartmouth Road | £ 305,000 | 0.09 KM |
| 94a Dartmouth Road | £ 595,000 | 0.09 KM |