Church Lane, Normanton
By Chris North Properties LTD
£ 195,000
Reviews
2 out of 5 stars
Chris North Properties LTD says ..
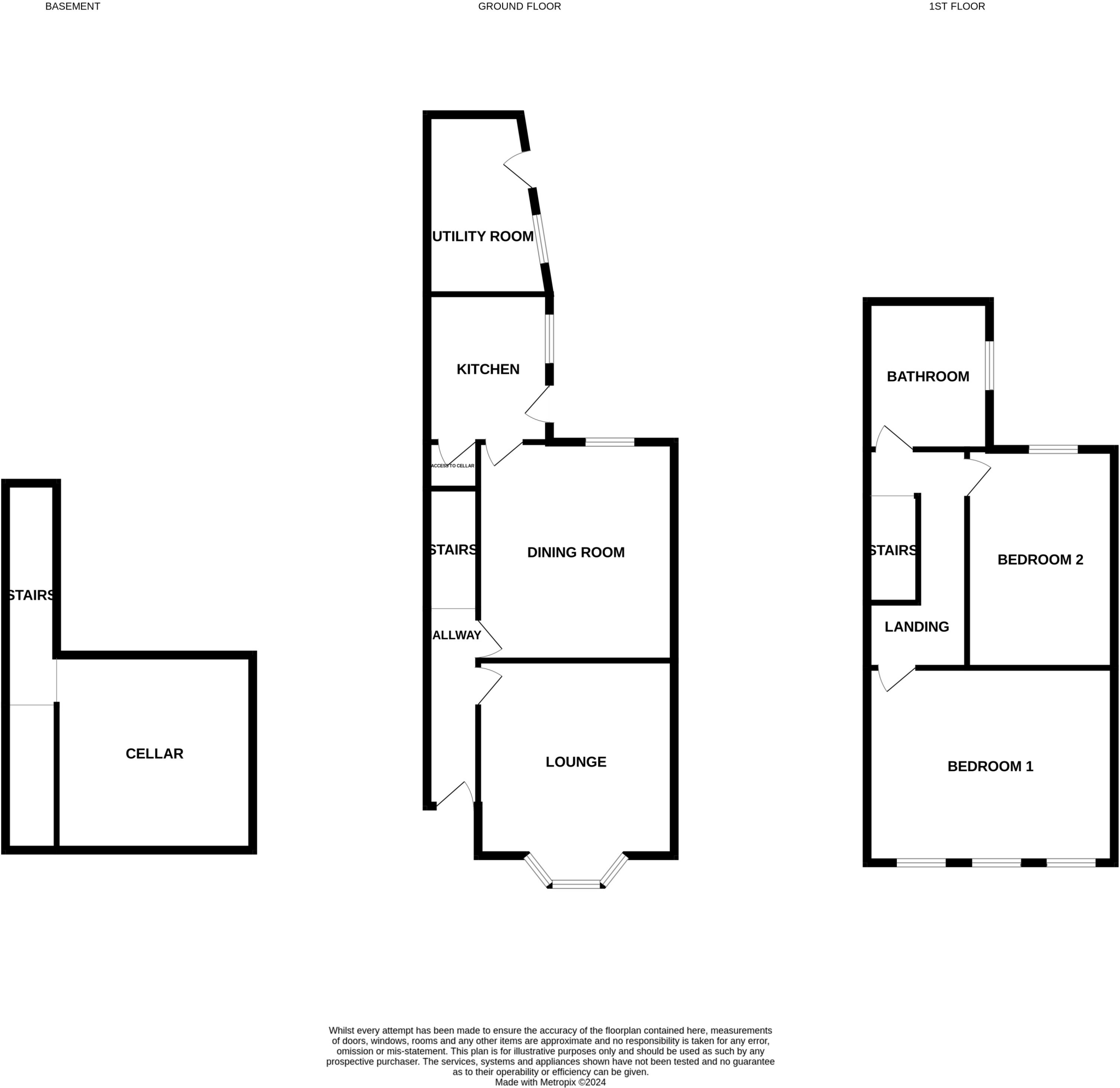
Offered to the market with No Onward Chain is the spacious two double bedroom, (potential three or larger subject to planning permission) mature Semi-Detached property in need of some modernisation and redecoration, having gas central heating and double glazing the property comprises; reception h...
Property Oracle says ..
This semi-detached property located on Church Lane in Normanton, Wakefield offers a convenient location for families and commuters alike. Its proximity to good schools, Normanton train station, and local amenities are key advantages. The interior of the house is presented as being in need of modernization and updating. The existing interior decor appears dated and could benefit from a fresh coat of paint and some upgrading. The kitchen and bathroom would also benefit from renovation. However, the property appears structurally sound. The property also benefits from having a decent-sized rear garden, although it requires some landscaping and maintenance. The listing price of £195,000 appears to be in line with the prices of similar properties in the area, considering the need for modernisation. Overall, this property presents a good opportunity for those looking for a family home in a convenient location willing to undertake some refurbishment work. Potential buyers should factor in the costs associated with updating and modernising the property to reach a fair market value. The property’s lack of a bathroom is a major drawback and needs to be addressed. The absence of accurate square footage data for nearby properties and the subject property hinders a precise comparison of price per square foot.
Therefore, we give this property 5 / 10. *Disclaimer: This is our option and does constitute a recommendation or financial advice. Do your own research. *
- Price
- 7
- Condition
- 5
- Location
- 7
- Land
- 4
- Bedrooms
- 2
- Bathrooms
- 0
- Sqft (est)
- 780.00
The heatmap indicates the level of crime in the area. The color of the heatmap indicates the crime severity and recency.
Metrics Year-on-Year
- Average area value
- 244,615.00 £Decreased by 9.46 %
- Est sale value
- 223,080.00 £Increased by 10.85 %
- Average area rental value
- 854.00 £/moDecreased by 1.50 %
- Est letting value
- 780.00 £/mo
- Est rental Yield
- 4.19 %Increased by 8.83 %
- Crime Rate
- 9.00 %Unchanged by 0.00 %
Agent Activity
Chris North Properties LTD marked this listing as sold.
Chris North Properties LTD created the listing.
Nearby Schools
| Name | Type | Ofsted | Distance |
|---|---|---|---|
| Normanton Junior Academy | Academy Sponsor Led | Good | 0.10 KM |
| Normanton All Saints Cofe Infant School | Voluntary Aided School | Outstanding | 0.32 KM |
| Tlg Wakefield | Other Independent School | Good | 0.41 KM |
| Outwood Academy Freeston | Academy Converter | 0.70 KM | |
| Newlands Primary School | Community School | Good | 0.78 KM |
Images
Nearby Streets
| Name | Average Price | Average Sqft | Distance |
|---|---|---|---|
| King Street Backs | £ 190,000 | 0 | 0.00 KM |
| Dalefield Road Backs | £ 0 | 0 | 0.00 KM |
| Kingfisher Court | £ 279,950 | 0 | 0.00 KM |
| The Paddock | £ 132,500 | 0 | 0.00 KM |
| Sycamore Mews | £ 0 | 0 | 0.00 KM |
Nearby Transport
| Name | NLC | TLC | Distance |
|---|---|---|---|
| Normanton | 8528 | NOR | 0.69 KM |
| Streethouse | 8543 | SHC | 3.12 KM |
| Featherstone | 8544 | FEA | 6.89 KM |
| Woodlesford | 8578 | WDS | 7.11 KM |
| Castleford | 8359 | CFD | 7.56 KM |
Nearby Listings
| Address | Price | Type | Score | Distance |
|---|---|---|---|---|
| Church Lane, Normanton | £ 195,000 | BUY | 5 / 10 | 0.00 KM |
| Cambridge Street, Normanton | £ 220,000 | BUY | 5 / 10 | 0.07 KM |
| King Street, Normanton | £ 175,000 | BUY | 5 / 10 | 0.08 KM |
| Church Lane, Normanton, West Yorkshire | £ 250,000 | BUY | Unknown | 0.09 KM |
| King Street, Normanton | £ 160,000 | BUY | 6 / 10 | 0.12 KM |
Nearby Properties
| Address | Price | Distance |
|---|---|---|
| 46 Church Lane | £ 120,000 | 0.00 KM |
| 48 Church Lane | £ 132,500 | 0.01 KM |
| 38 Church Lane | £ 51,000 | 0.01 KM |
| 44 Church Lane | £ 195,000 | 0.01 KM |
| 36 Church Lane | £ 148,000 | 0.01 KM |